Get discounts,
promos, see our
newest plans
and more!
+ 15% off any plan
See terms opt out anytime


No Thanks

Thanks for
signing up!


Use Code:

SIGNUP15

And save 15% off any plan!

Check your email for details.

CLOSE
Search Plans
Customer Reviews
     
15% Off House Plans Sitewide Ends Sunday

Code: SAVE15
Sale ends midnight 1/11/2026 PST

Sq Ft
1,356 FT²

Beds
3

Baths
2.5

Stories
2

Garage
0

Depth
41'

Width
21'
From
$2,154.00
© copyright by designer
 View All 4 Images | Photographs may reflect modified home
Sq Ft
1,356 FT²
Beds
3
Baths
2.5
Stories
2
Garage
0
Depth
41'
Width
21'
 
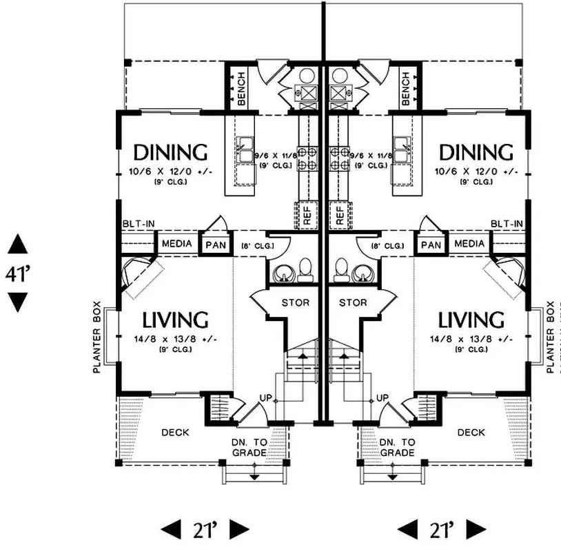
Click to Zoom In on Floor Plan
© copyright by designer
 
 

About This Plan

18th Century brownstone charm pairs with the innovations of modern construction in these sublime and spacious two-story town homes. Closed-in front and back decks create perfect space to enjoy the outdoors year round while vaulted master bedrooms, and two additional bedrooms engender truly exquisite townhouse-style living. 

See All Plan Options
 

FEATURES & DETAILS

Kitchen features
Country Kitchen
Kitchen Island
Walk-in Pantry
Bedroom features
Primary Bdrm Upstairs
Walk-in Closet
Exterior features
Covered Front Porch
Covered Rear Porch
Front Porch
Rear Porch
Foundation Options
Basement
Crawlspace
Slab
Lot Options
Suited for narrow lot
Suited for sloping lot
Additional features
Fireplace
Foyer
Great Room
Laundry 2nd Fl
Open Floor Plan
Garage Location
None
Garage Options
None
2,712 Ft
2
Total Structure
1,356 Ft
2
Unit Heated
695 Ft
2
1st Floor
661 Ft
2
2nd Floor
3
Bedrooms
2.5
Bathrooms
0
Garage
2
Stories
21' 0"
Width
41' 0"
Depth
26' 8"
Height
9' 0"
Main Floor Ceiling
8' 0"
Upper Floor Ceiling
2x6
Framing
Truss
Roof Framing
8/12
Primary Roof Pitch
6/12
Porch Roof Pitch
Duplex
Dwelling Number
None
Bonus Access

Unheated Living Space
97 Ft
2
Porch
Collections
 

Plan Package Options

 Select Plan Package
$2,479
5 Printed Sets + PDF

Includes 5 physical printed blueprints shipped and delivered within 3-5 business days and a copyright release license to construct one home and to make copies. A complimentary PDF plan set is also emailed within 1 business day for easy sharing and local printing. 

$2,479
$2,154
PDF Single Build

Digital plans emailed to you in PDF format that allows for printing copies and sharing electronically with contractors, subs, decorators, and more. This package includes a license to build the home one time.

$2,154
$4,308
CAD + PDF Single Build

This plan package is created in AutoCAD and delivered in .DWG format. CAD files are intended for use by design professionals, structural engineers, and builders to update plans for local building codes or to make revisions based on specific needs, lot requirements, and budget considerations. A complimentary PDF copy is included with this package for reference. CAD packages are delivered within 1 to 2 business days.
 
This package also comes with a copyright release for making revisions and printing unlimited copies.

For details on the specific CAD program used, please refer to the PLAN DETAILS section located above the floor plan on each plan page.

$4,308
 Need To Reverse Plan? (Optional)
$250
Readable Reverse

Reverse house plans with readable text and dimensions 

$250
  Select Foundation Option
  Add-Ons (Optional)
INCLUDED WITH YOUR PURCHASE

Free Ground shipping in the Continental U.S.

FREE

Home Building & Product Ideas Organizer

Sub Total
$0
Free Shipping
QUESTIONS OR NEED HELP ORDERING? LIVE CHAT OR CALL US AT 866-214-2242
Plan Packages

Each set of construction documents includes detailed, dimensioned floor plans, basic electric layouts, cross sections, roof details, cabinet layouts and elevations, as well as general IRC specifications. They contain virtually all of the information required to construct your home. The typical plan set does not include any plumbing, HVAC drawings, or engineering stamps due to the wide variety of specific needs, local codes, and climatic conditions. These details and specifications are easily obtained from your builder, contractors, and/or local engineers.

BEST PRICE GUARANTEE

Find the same house plan (modifications included!) and package for less on another site, show us the URL and we'll give you the difference plus an additional 5% back.

100% SATISFACTION GUARANTEE

We offer a one-time, 30-day exchange policy for unused, printed plan packages in the event you aren't satisfied with your first selection. Exchanges are subject to a 20% restocking fee.

 
 

Plan 8296  Back to plan page

Loading...