Get discounts,
promos, see our
newest plans
and more!
+ 15% off any plan
See terms opt out anytime


No Thanks

Thanks for
signing up!


Use Code:

SIGNUP15

And save 15% off any plan!

Check your email for details.

CLOSE
Search Plans
Customer Reviews
     
20% off ALL House Plans Sitewide
20% off ALL House Plans Sitewide
20% off ALL House Plans Sitewide

Code: HONOR20
Sale ends midnight 5/25/2026 PST

Modern Craftsman with Apartment House, Plan 8316

 
 

Sq Ft
4,144 FT²

Beds
5

Baths
4.5

Stories
3

Garage
2

Depth
69'

Width
35'
On Sale
$1,657.60
$2,072.00
© copyright by designer
 View All 12 Images | Photographs may reflect modified home
Sq Ft
4,144 FT²
Beds
5
Baths
4.5
Stories
3
Garage
2
Depth
69'
Width
35'
 
Click to Zoom In on Floor Plan
© copyright by designer
 
 

About This Plan

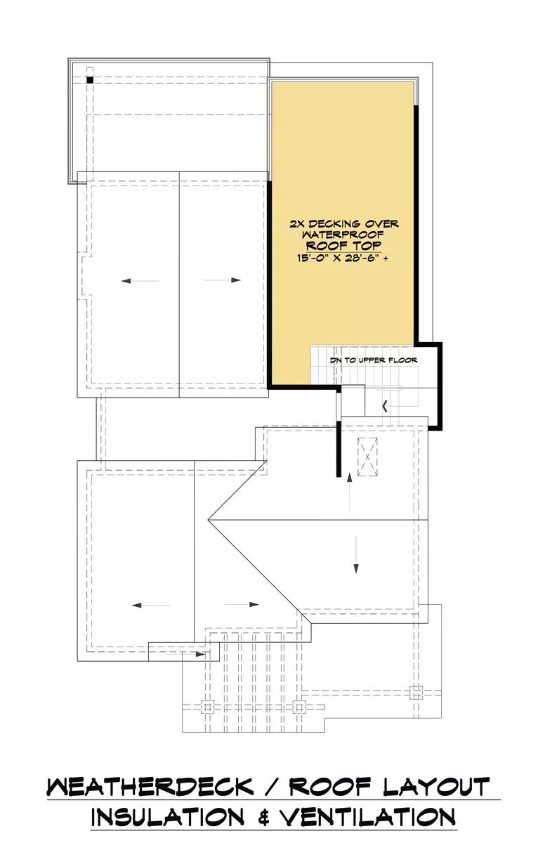
Sleek modern charm meets beautiful traditional farmhouse styles in this one-of-a-kind plan. Specifically designed for a narrow or sloped lot, this 3-story home is full of surprises, beginning with the fact that it comes with a 4,144 square foot layout and inverted living space! This means that your 3 auxiliary bedrooms are conveniently on the main floor, while the master suite and main living spaces soak in all the gorgeous views that the upper level provides. Enter inside this gorgeous home either via the welcoming front porch or the drive-under 2-car garage. The bottom floor also houses a full guest suite apartment, great for guests or potential rental income! The main floor is where you'll find you bedrooms, along with great spaces such as a private office, a rec room, and the convenient addition of the laundry room, making for easy chores. The upper floor is bathed in natural light, revealing an open concept layout which joins the great room with the island kitchen and dining room, before moving out to your covered rear porch. Also upstairs is the master bed and bath, complete with a massive walk-in closet. For a final hidden surprise, move one more level up to discover your very own roof-top deck, great for entertaining or simply enjoying a cool summer's evening. 

See All Plan Options
 

FEATURES & DETAILS

Kitchen features
Kitchen Island
Nook / Breakfast Area
Walk-in Pantry
Bedroom features
2 Primary Suites
Guest Suite
Primary Bdrm Upstairs
Split Bedrooms
Walk-in Closet
Exterior features
Covered Front Porch
Deck
Rear Porch
Foundation Options
Basement
Crawlspace
Slab
Lot Options
Suited for sloping lot
Additional features
Bonus Room
Dining Room
Family Room
Fireplace
Foyer
Home Office
In-law Suite
Inverted Living
Laundry 1st Fl
Library/Media Rm
Open Floor Plan
Garage Location
Rear
Garage Options
Attached
Rear-entry
4,144 Ft
2
Total Heated
1,869 Ft
2
1st Floor
1,555 Ft
2
2nd Floor
690 Ft
2
Lower Floor
274 Ft
2
Balcony
5
Bedrooms
4.5
Bathrooms
2
Garage
3
Stories
35' 0"
Width
69' 0"
Depth
37' 1"
Height
9' 0"
Main Floor Ceiling
9' 0"
Upper Floor Ceiling
2x6
Framing
Truss
Roof Framing
8:12
Primary Roof Pitch
Single
Dwelling Number

Unheated Living Space
568 Ft
2
Garage
188 Ft
2
Porch
439 Ft
2
Deck
 

Plan Package Options

 Select Plan Package
 Need To Reverse Plan? (Optional)
  Select Foundation Option
  Add-Ons (Optional)
INCLUDED WITH YOUR PURCHASE

Free Ground shipping in the U.S.

FREE

Home Building & Product Ideas Organizer

Sub Total
$0
Free Shipping
QUESTIONS OR NEED HELP ORDERING? LIVE CHAT OR CALL US AT 866-214-2242
Plan Packages

Each set of construction documents typically includes detailed, dimensioned floor plans, basic electric layouts, cross sections, roof details, cabinet layouts, and elevations, as well as general IRC specifications. Please refer to the ARCHITECT or DESIGNER’S PLAN DETAILS link above the floor plan on any plan page to determine the specific details for each plan. Our house plans contain virtually all of the information required to construct your home. The typical plan set does not include plumbing, HVAC drawings, or engineering stamps due to the wide variety of specific needs, local codes, and climatic conditions. These details and specifications are easily obtained from your builder, contractors, and/or local engineers.

BEST PRICE GUARANTEE

Find the same house plan (modifications included!) and package for less on another site, show us the URL and we'll give you the difference plus an additional 10% back.

100% SATISFACTION GUARANTEE

We offer a one-time, 30-day exchange policy for unused, printed plan packages in the event you aren't satisfied with your first selection.

 
 

Plan 8316  Back to plan page

Loading...