Get discounts,
promos, see our
newest plans
and more!
+ 15% off any plan
See terms opt out anytime


No Thanks

Thanks for
signing up!


Use Code:

SIGNUP15

And save 15% off any plan!

Check your email for details.

CLOSE
Search Plans
     
20% Off House Plans Sitewide Ends Tuesday
20% Off House Plans Sitewide Ends Tuesday
20% Off House Plans Sitewide Ends Tuesday

Code: VET20
Sale ends midnight 11/11/2025 PST

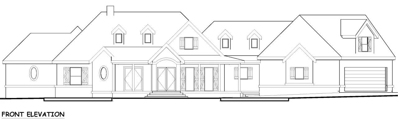
Rustic Open Floor Plan French Country Style House, Plan 1120

 
 

Sq Ft
3,814 FT²

Beds
3

Baths
3.5

Stories
2

Garage
3

Depth
80'

Width
129'
On Sale
$1,032.00
$1,290.00
© copyright by designer
 View All 7 Images | Photographs may reflect modified home
Sq Ft
3,814 FT²
Beds
3
Baths
3.5
Stories
2
Garage
3
Depth
80'
Width
129'
 
Click to Zoom In on Floor Plan
© copyright by designer
 
 

About This Plan

Modeled after a rustic French chateau, this European-style plan is both luxurious and practical. Featuring 3,814 square feet of space largely contained within a single open and accessible level, the 3 bed 3.5 bath layout makes for perfect family living. As you move in past the wraparound covered porch and the dual front doors, take note of all the subtle design elements of stone and wood throughout. Once inside you are greeted by the foyer which is flanked by the dining room. From there the home opens to the large family room and gourmet island kitchen. Beyond the kitchen sits a private guest suite, nestled away and featuring its own walk-in closet and spa bath. Be sure to note the 3-car garage and mud room that are nearby too. Finally, the other bedroom suites are at the opposite end of the home. That includes the master retreat which features a stunningly large spa bath, a huge walk-in closet, and even your own coffee bar! And for an added bonus, check out the upstairs game room and study that are sure to add plenty of extra functionality to this home. 

See All Plan Options
 

FEATURES & DETAILS

Kitchen features
Kitchen Island
U-Shaped
Walk-in Pantry
Bedroom features
Double Vanity Sink
Primary Bdrm Main Floor
Separate Tub and Shower
Sitting Area
Walk-in Closet
Exterior features
Covered Front Porch
Outdoor Kitchen
Outdoor Living Space
Additional features
Dining Room
Family Room
Fireplace
Foyer
Great Room
Home Office
Laundry 1st Fl
Mud Room
Open Floor Plan
Rec Room
Garage Location
Rear
Garage Options
Attached
Rear-entry
Side-entry
5,986 Ft
2
Total Structure
3,814 Ft
2
Total Heated
3,132 Ft
2
1st Floor
682 Ft
2
2nd Floor
3
Bedrooms
3.5
Bathrooms
3
Garage
2
Stories
129' 0"
Width
80' 0"
Depth
29' 0"
Height
11' 0"
Main Floor Ceiling
8' 0"
Upper Floor Ceiling
2x4 or 2x6
Framing
Stick
Roof Framing
12
Primary Roof Pitch
3
Secondary Roof Pitch
Single
Dwelling Number
2nd Floor
Bonus Access

Unheated Living Space
1,138 Ft
2
Garage
521 Ft
2
Porch
367 Ft
2
Deck
 

Plan Package Options

 Select Plan Package
Sale: $1,032
PDF Single Build
$1,290

Digital plans emailed to you in PDF format that allows for printing copies and sharing electronically with contractors, subs, decorators, and more. This package includes a license to build the home one time.

Sale: $1,032
Sale: $1,536
5 Printed Sets
$1,920

Five Printed Sets of Residential Construction Drawings are typically 24” x 36” documents and come with a license to construct a single residence shipped to a physical address. Keep in mind PDF Plan Packages are our most popular choice which allows you to print as many copies as you need and to electronically send files to your builder, subcontractors, etc.

Sale: $1,536
Sale: $1,536
CAD + PDF Single Build
$1,920

CAD files are a complete set of construction drawings delivered electronically. They can be used for any type of modification—including major design changes and engineering—and include a release granting permission to modify the plan. Most CAD plan orders are emailed the same or next business day.
 
This package also comes with a PDF set of plans and a copyright release for making modifications and printing unlimited copies.
 
CAD files are provided in .dwg format. For details on the specific CAD program used, please refer to the PLAN DETAILS section located above the floor plan on each plan’s page.

Sale: $1,536
 Need To Reverse Plan? (Optional)
$200
Readable Reverse

Reverse house plans with readable text and dimensions 

$200
  Select Foundation Option
  Add-Ons (Optional)
INCLUDED WITH YOUR PURCHASE

Free Ground shipping in the Continental U.S.

FREE

Design consultation with the architect or designer to discuss your plan

Home Building & Product Ideas Organizer

Sub Total
$0
Free Shipping
QUESTIONS OR NEED HELP ORDERING? LIVE CHAT OR CALL US AT 866-214-2242
Plan Packages

Each set of construction documents includes detailed, dimensioned floor plans, basic electric layouts, cross sections, roof details, cabinet layouts and elevations, as well as general IRC specifications. They contain virtually all of the information required to construct your home. The typical plan set does not include any plumbing, HVAC drawings, or engineering stamps due to the wide variety of specific needs, local codes, and climatic conditions. These details and specifications are easily obtained from your builder, contractors, and/or local engineers.

BEST PRICE GUARANTEE

find the same house plan (modifications included!) and package for less on another site, show us the URL and we'll give you the difference plus an additional 5% back.

100% SATISFACTION GUARANTEE

We offer a one-time, 30-day exchange policy for unused, non-electronic plan packages in the event you aren't satisfied with your first selection.

 
 

Plan 1120  Back to plan page

Loading...