Get discounts,
promos, see our
newest plans
and more!
+ 15% off any plan
See terms opt out anytime


No Thanks

Thanks for
signing up!


Use Code:

SIGNUP15

And save 15% off any plan!

Check your email for details.

CLOSE
Search Plans
     
20% Off House Plans Sitewide Ends Tuesday
20% Off House Plans Sitewide Ends Tuesday
20% Off House Plans Sitewide Ends Tuesday

Code: VET20
Sale ends midnight 11/11/2025 PST

Jane 3 Bedroom Country Style House, Plan 6975

 
 

Sq Ft
1,680 FT²

Beds
3

Baths
2.5

Stories
2

Garage
0

Depth
42'

Width
20'
On Sale
$748.00
$935.00
© copyright by designer
 View All 11 Images | Photographs may reflect modified home
Sq Ft
1,680 FT²
Beds
3
Baths
2.5
Stories
2
Garage
0
Depth
42'
Width
20'
 
Click to Zoom In on Floor Plan
© copyright by designer
 
 

About This Plan

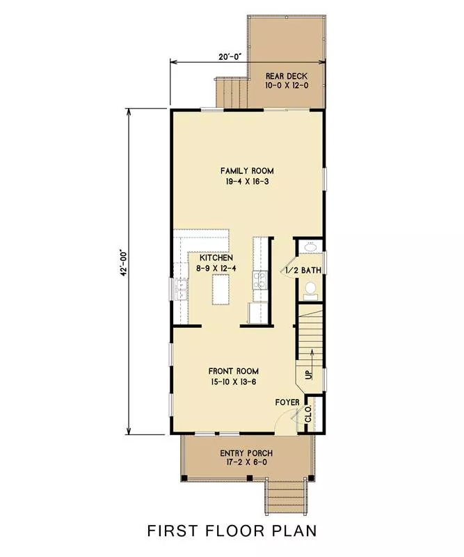
Jane is a model plan that is very popular for its plain open livability, with large living spaces inside a small frame box, just 20-0 wide by 42-0 long, ideal for a small narrow lot in an infill urban property. The three upstairs bedrooms are roomy for a house plan that is economic to build. It has spacious front sitting porch with a central Kitchen located between large gathering rooms in the front and rear of the house providing a totally open floor plan. A detached garage at the rear of the property is an attractive add-on to this in-town lifestyle. 

See All Plan Options
 

FEATURES & DETAILS

Kitchen features
Kitchen Island
Bedroom features
Double Vanity Sink
Primary Bdrm Upstairs
Walk-in Closet
Exterior features
Covered Front Porch
Deck
Front Porch
Foundation Options
Crawlspace
Lot Options
Suited for corner lot
Suited for narrow lot
Suited for sloping lot
Additional features
Dining Room
Fireplace
Formal LR
Laundry 1st Fl
Garage Options
None
1,783 Ft
2
Total Structure
1,680 Ft
2
Total Heated
840 Ft
2
1st Floor
840 Ft
2
2nd Floor
3
Bedrooms
2.5
Bathrooms
0
Garage
2
Stories
20' 0"
Width
42' 0"
Depth
30' 0"
Height
9' 0"
Main Floor Ceiling
8' 0"
Upper Floor Ceiling
2x4
Framing
Stick
Roof Framing
9/12
Primary Roof Pitch
3.5/12
Secondary Roof Pitch
Single
Dwelling Number

Unheated Living Space
103 Ft
2
Porch
120 Ft
2
Deck
 

Plan Package Options

 Select Plan Package
Sale: $160
PDF Bid Set
$200

Home plans stamped "NOT FOR CONSTRUCTION" for cost estimating and bidding purposes only; a minimum 5 set plan package must be purchased within 90 days for a license to build plan set; a credit will be applied towards your house plan upgrade

Sale: $160
Sale: $748
PDF Single Build
$935

Digital plans emailed to you in PDF format that allows for printing copies and sharing electronically with contractors, subs, decorators, and more. This package includes a license to build the home one time.

Sale: $748
Sale: $828
5 Printed Sets
$1,035

Five Printed Sets of Residential Construction Drawings are typically 24” x 36” documents and come with a license to construct a single residence shipped to a physical address. Keep in mind PDF Plan Packages are our most popular choice which allows you to print as many copies as you need and to electronically send files to your builder, subcontractors, etc.

Sale: $828
Sale: $1,208
CAD + PDF Single Build
$1,510

CAD files are a complete set of construction drawings delivered electronically. They can be used for any type of modification—including major design changes and engineering—and include a release granting permission to modify the plan. Most CAD plan orders are emailed the same or next business day.
 
This package also comes with a PDF set of plans and a copyright release for making modifications and printing unlimited copies.
 
CAD files are provided in .dwg format. For details on the specific CAD program used, please refer to the PLAN DETAILS section located above the floor plan on each plan’s page.

Sale: $1,208
  Select Foundation Option
  Add-Ons (Optional)
INCLUDED WITH YOUR PURCHASE

Free Ground shipping in the Continental U.S.

FREE

Design consultation with the architect or designer to discuss your plan

Home Building & Product Ideas Organizer

Sub Total
$0
Free Shipping
QUESTIONS OR NEED HELP ORDERING? LIVE CHAT OR CALL US AT 866-214-2242
Plan Packages

Each set of construction documents includes detailed, dimensioned floor plans, basic electric layouts, cross sections, roof details, cabinet layouts and elevations, as well as general IRC specifications. They contain virtually all of the information required to construct your home. The typical plan set does not include any plumbing, HVAC drawings, or engineering stamps due to the wide variety of specific needs, local codes, and climatic conditions. These details and specifications are easily obtained from your builder, contractors, and/or local engineers.

BEST PRICE GUARANTEE

find the same house plan (modifications included!) and package for less on another site, show us the URL and we'll give you the difference plus an additional 5% back.

100% SATISFACTION GUARANTEE

We offer a one-time, 30-day exchange policy for unused, non-electronic plan packages in the event you aren't satisfied with your first selection.

 
 

Plan 6975  Back to plan page

Loading...