Get discounts,
promos, see our
newest plans
and more!
+ 15% off any plan
See terms opt out anytime


No Thanks

Thanks for
signing up!


Use Code:

SIGNUP15

And save 15% off any plan!

Check your email for details.

CLOSE
Search Plans
Customer Reviews
     
15% off ALL House Plans Sitewide
15% off ALL House Plans Sitewide
15% off ALL House Plans Sitewide

Code: HONOR
Sale ends midnight 5/29/2026 PST

Jacqueline | 3 Bedroom Ranch Style House, Plan 7036

 
 

Sq Ft
1,686 FT²

Beds
3

Baths
2

Stories
1

Garage
2

Depth
69'

Width
43'
On Sale
$1,113.50
$1,310.00
© copyright by designer
 View All 4 Images | Photographs may reflect modified home
Sq Ft
1,686 FT²
Beds
3
Baths
2
Stories
1
Garage
2
Depth
69'
Width
43'
 
Click to Zoom In on Floor Plan
© copyright by designer
 
 

About This Plan

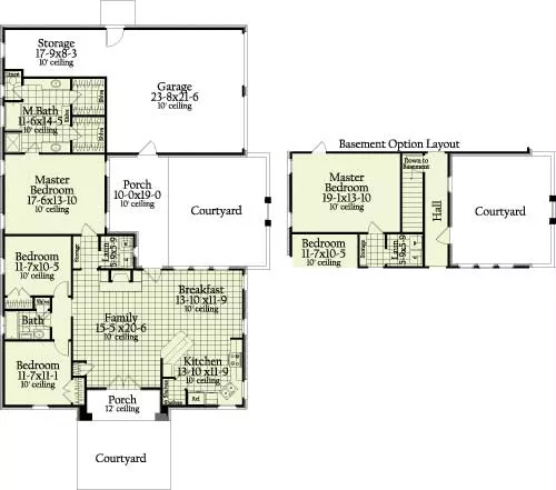
This 1686 square feet, 1 story country home plan offers 3 bedrooms and 2 baths in a thoughtfully designed open floor plan that balances comfort and function. The great room and family room connect seamlessly, anchored by a cozy fireplace that creates a warm gathering space. The kitchen features a peninsula with eating bar, breakfast nook, and walk-in pantry, keeping meals and entertaining easy and efficient. The split bedroom layout enhances privacy, with the primary bedroom located on the main floor and offering his and hers primary closets, a walk-in closet, double vanity sink, and a separate tub and shower. Two secondary bedrooms share a well placed hall bath, ideal for family or guests. First floor laundry and added storage space support smooth daily routines. A charming courtyard along with covered front and rear porches extends living outdoors, while the attached rear entry garage with side access completes this inviting and practical design. 

See All Plan Options
 

FEATURES & DETAILS

Kitchen features
Nook / Breakfast Area
Peninsula / Eating Bar
Walk-in Pantry
Bedroom features
Double Vanity Sink
His and Hers Primary Closets
Primary Bdrm Main Floor
Separate Tub and Shower
Split Bedrooms
Walk-in Closet
Exterior features
Courtyard
Covered Front Porch
Covered Rear Porch
Front Porch
Rear Porch
Foundation Options
Basement
Crawlspace
Slab
Lot Options
Suited for corner lot
Suited for corner lot
Suited for narrow lot
Additional features
Family Room
Fireplace
Great Room
Laundry 1st Fl
Open Floor Plan
Storage Space
Garage Location
Rear
Garage Options
Attached
Side-entry
2,648 Ft
2
Total Structure
1,686 Ft
2
Total Heated
1,686 Ft
2
1st Floor
3
Bedrooms
2
Bathrooms
2
Garage
1
Stories
43' 0"
Width
69' 0"
Depth
21' 0"
Height
10' 0"
Main Floor Ceiling
2x4
Framing
Stick
Roof Framing
10/12
Primary Roof Pitch
Single
Dwelling Number

Unheated Living Space
564 Ft
2
Garage
161 Ft
2
Storage
237 Ft
2
Porch
 

Plan Package Options

 Select Plan Package
 Need To Reverse Plan? (Optional)
  Select Foundation Option
  Add-Ons (Optional)
INCLUDED WITH YOUR PURCHASE

Free Ground shipping in the U.S.

FREE

Home Building & Product Ideas Organizer

Sub Total
$0
Free Shipping
QUESTIONS OR NEED HELP ORDERING? LIVE CHAT OR CALL US AT 866-214-2242
Plan Packages

Each set of construction documents typically includes detailed, dimensioned floor plans, basic electric layouts, cross sections, roof details, cabinet layouts, and elevations, as well as general IRC specifications. Please refer to the ARCHITECT or DESIGNER’S PLAN DETAILS link above the floor plan on any plan page to determine the specific details for each plan. Our house plans contain virtually all of the information required to construct your home. The typical plan set does not include plumbing, HVAC drawings, or engineering stamps due to the wide variety of specific needs, local codes, and climatic conditions. These details and specifications are easily obtained from your builder, contractors, and/or local engineers.

BEST PRICE GUARANTEE

Find the same house plan (modifications included!) and package for less on another site, show us the URL and we'll give you the difference plus an additional 10% back.

100% SATISFACTION GUARANTEE

We offer a one-time, 30-day exchange policy for unused, printed plan packages in the event you aren't satisfied with your first selection.

 
 

Plan 7036  Back to plan page

Loading...