Get discounts,
promos, see our
newest plans
and more!
+ 15% off any plan
See terms opt out anytime


No Thanks

Thanks for
signing up!


Use Code:

SIGNUP15

And save 15% off any plan!

Check your email for details.

CLOSE
Search Plans
Customer Reviews
     
15% Off House Plans Sitewide Ends Sunday

Code: SAVE15
Sale ends midnight 2/8/2026 PST

Sq Ft
2,757 FT²

Beds
4

Baths
4.5

Stories
1.5

Garage
2

Depth
77'

Width
84'
From
$1,295.00
© copyright by designer
 View All 6 Images | Photographs may reflect modified home
Sq Ft
2,757 FT²
Beds
4
Baths
4.5
Stories
1.5
Garage
2
Depth
77'
Width
84'
 
Click to Zoom In on Floor Plan
© copyright by designer
 
 

About This Plan

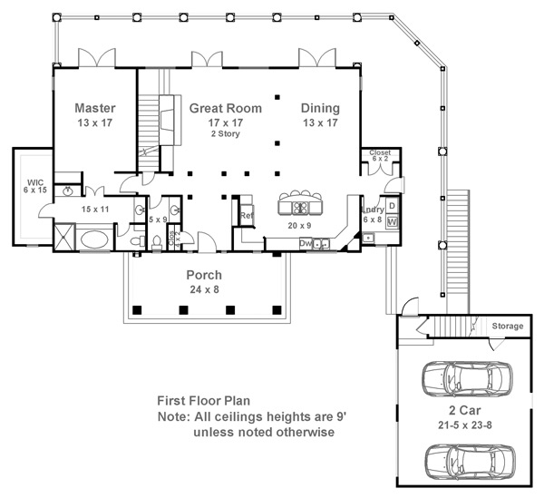
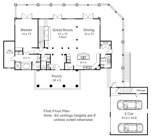
This relaxing retreat focuses on outdoor views and indoor comfort zones. The entry leads to an open interior and views that extend from the foyer to the rear veranda. French doors invite gentle breezes and fresh air to mingle with the warmth of the fireplace in the heart of the home. The central gallery hall connects a spacious master suite with the casual living and dining areas. A gourmet kitchen shares interior vistas with the dining room, and boasts a cooktop island and snack counter. A walk-in pantry and planning desk provide convenience for the homeowners. Upstairs, two secondary suites share a balcony hall that leads to a bonus loft. 

See All Plan Options
 

FEATURES & DETAILS

Kitchen features
Peninsula / Eating Bar
Bedroom features
Primary Bdrm Main Floor
Walk-in Closet
Exterior features
Rear Porch
Foundation Options
Daylight Basement
Walkout Basement
Additional features
Great Room
Laundry 1st Fl
Open Floor Plan
Unfinished Space
Garage Location
Side
Garage Options
Attached
Side-entry
2,757 Ft
2
Total Heated
1,708 Ft
2
1st Floor
1,049 Ft
2
2nd Floor
4
Bedrooms
4.5
Bathrooms
2
Garage
1.5
Stories
84' 0"
Width
77' 0"
Depth
27' 9"
Height
9' 0"
Main Floor Ceiling
8' 0"
Upper Floor Ceiling
2x4
Framing
Stick
Roof Framing
12/12
Primary Roof Pitch
Single
Dwelling Number
2nd Floor
Bonus Access

Unheated Living Space
616 Ft
2
Garage
 

Plan Package Options

 Select Plan Package
 Need To Reverse Plan? (Optional)
  Select Foundation Option
  Add-Ons (Optional)
INCLUDED WITH YOUR PURCHASE

Free Ground shipping in the U.S.

FREE

Home Building & Product Ideas Organizer

Sub Total
$0
Free Shipping
QUESTIONS OR NEED HELP ORDERING? LIVE CHAT OR CALL US AT 866-214-2242
Plan Packages

Each set of construction documents includes detailed, dimensioned floor plans, basic electric layouts, cross sections, roof details, cabinet layouts and elevations, as well as general IRC specifications. They contain virtually all of the information required to construct your home. The typical plan set does not include any plumbing, HVAC drawings, or engineering stamps due to the wide variety of specific needs, local codes, and climatic conditions. These details and specifications are easily obtained from your builder, contractors, and/or local engineers.

BEST PRICE GUARANTEE

Find the same house plan (modifications included!) and package for less on another site, show us the URL and we'll give you the difference plus an additional 10% back.

100% SATISFACTION GUARANTEE

We offer a one-time, 30-day exchange policy for unused, printed plan packages in the event you aren't satisfied with your first selection.

 
 

Plan 7147  Back to plan page

Loading...