Get discounts,
promos, see our
newest plans
and more!
+ 15% off any plan
See terms opt out anytime


No Thanks

Thanks for
signing up!


Use Code:

SIGNUP15

And save 15% off any plan!

Check your email for details.

CLOSE
Search Plans
Customer Reviews
     
20% off ALL House Plans Sitewide
20% off ALL House Plans Sitewide
20% off ALL House Plans Sitewide

Code: HONOR20
Sale ends midnight 5/25/2026 PST

Sq Ft
6,484 FT²

Beds
5

Baths
4.5

Stories
2

Garage
3

Depth
60' 8"

Width
161' 9"
On Sale
$2,723.20
$3,404.00
© copyright by designer
 View All 5 Images | Photographs may reflect modified home
Sq Ft
6,484 FT²
Beds
5
Baths
4.5
Stories
2
Garage
3
Depth
60' 8"
Width
161' 9"
 
Click to Zoom In on Floor Plan
© copyright by designer
 
 

About This Plan

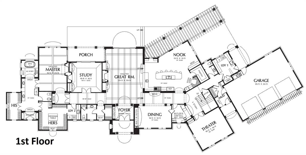
You can almost hear the faint thrum of Spanish guitars echoing around this classic design. Its faade is purely California Mission style designed with stone siding, stucco accents and a tile roof.
The thoroughly modern interior is nearly mansion-sized and designed for luxury living. Some of the many elements youll love about this design include: four family bedrooms (two with private baths), a master suite with his and hers walk-in closets and dressing areas, two laundry areas, a home theater room, a vaulted playroom, and a unique tower room with attached deck.

Choose formal or casual dining spacesthey flank the island kitchen, which also has a walk-in pantry and pizza oven. A butlers pantry and a wet bar add convenience to entertaining. Enjoy the outdoor spaces with three trellised porches at the rear of the plan. A three-car garage accesses the main part of the house via a handy mudroom. Built-ins abound.

Note: This plan is not available in the Portland Tri-County area.
 


See All Plan Options
 

FEATURES & DETAILS

Kitchen features
Butler's Pantry
Kitchen Island
Nook / Breakfast Area
Walk-in Pantry
Bedroom features
Double Vanity Sink
Guest Suite
His and Hers Primary Closets
Primary Bdrm Main Floor
Separate Tub and Shower
Split Bedrooms
Walk-in Closet
Exterior features
Covered Rear Porch
Rear Porch
Foundation Options
Basement
Crawlspace
Slab
Lot Options
Suited for view lot
Additional features
Arches
Bonus Room
Dining Room
Fireplace
Foyer
Great Room
Home Office
Laundry 1st Fl
Library/Media Rm
Mud Room
Open Floor Plan
Rec Room
Storage Space
Vaulted Ceilings
Garage Location
Side
Garage Options
Attached
Side-entry
6,484 Ft
2
Total Heated
4,747 Ft
2
1st Floor
1,737 Ft
2
2nd Floor
196 Ft
2
3rd Floor
5
Bedrooms
4.5
Bathrooms
3
Garage
2
Stories
161' 9"
Width
60' 8"
Depth
32' 4"
Height
Varies' 0"
Main Floor Ceiling
Varies' 0"
Upper Floor Ceiling
2x6
Framing
Truss
Roof Framing
4/12
Primary Roof Pitch
Single
Dwelling Number
1st Floor, 2nd Floor
Bonus Access

Unheated Living Space
908 Ft
2
Garage
160 Ft
2
Porch
 

Plan Package Options

 Select Plan Package
 Need To Reverse Plan? (Optional)
  Select Foundation Option
  Add-Ons (Optional)
INCLUDED WITH YOUR PURCHASE

Free Ground shipping in the U.S.

FREE

Home Building & Product Ideas Organizer

Sub Total
$0
Free Shipping
QUESTIONS OR NEED HELP ORDERING? LIVE CHAT OR CALL US AT 866-214-2242
Plan Packages

Each set of construction documents typically includes detailed, dimensioned floor plans, basic electric layouts, cross sections, roof details, cabinet layouts, and elevations, as well as general IRC specifications. Please refer to the ARCHITECT or DESIGNER’S PLAN DETAILS link above the floor plan on any plan page to determine the specific details for each plan. Our house plans contain virtually all of the information required to construct your home. The typical plan set does not include plumbing, HVAC drawings, or engineering stamps due to the wide variety of specific needs, local codes, and climatic conditions. These details and specifications are easily obtained from your builder, contractors, and/or local engineers.

BEST PRICE GUARANTEE

Find the same house plan (modifications included!) and package for less on another site, show us the URL and we'll give you the difference plus an additional 10% back.

100% SATISFACTION GUARANTEE

We offer a one-time, 30-day exchange policy for unused, printed plan packages in the event you aren't satisfied with your first selection.

 
 

Plan 6835  Back to plan page

Loading...