Get discounts,
promos, see our
newest plans
and more!
+ 15% off any plan
See terms opt out anytime


No Thanks

Thanks for
signing up!


Use Code:

SIGNUP15

And save 15% off any plan!

Check your email for details.

CLOSE
Search Plans
Customer Reviews
     
15% off ALL House Plans Sitewide
15% off ALL House Plans Sitewide
15% off ALL House Plans Sitewide

Code: HONOR
Sale ends midnight 5/31/2026 PST

Halifax Affordable Cottage Style House, Plan 5189

 
 

Sq Ft
1,912 FT²

Beds
4

Baths
2.5

Stories
2

Garage
2

Depth
47'

Width
40'
On Sale
$1,345.55
$1,583.00
© copyright by designer
 View All 9 Images | Photographs may reflect modified home
Sq Ft
1,912 FT²
Beds
4
Baths
2.5
Stories
2
Garage
2
Depth
47'
Width
40'
 
Click to Zoom In on Floor Plan
© copyright by designer
 
 

About This Plan

If you’ve been in search of a charming Craftsman Cottage, this 2 story 3-4 bedroom design will be moved to the top of your dream board quickly - especially if your keyword searches have included “master down.”

You’ll love driving up to your home seeing its wood shakes mixed with stone and the classic tapered posts of the craftsman design style. Entering the foyer, you’ll find a front to back layout with the kitchen in the front of the home providing views to the front yard from the kitchen sink.

The entire space is open and airiness is provided with the vaulted ceilings in the great room. Sliding glass doors provide natural light and access to the quaint covered porch. A gas fireplace provides immediate ambiance for family movie nights. There is storage space underneath the stairwell that is buttressed against the powder bath. The laundry of the home is convenient to the vaulted master bedroom. The ensuite has a large shower as well as a walk-in closet.

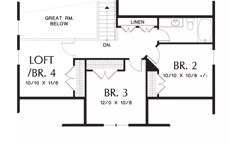
Up the stairs, you’ll find the additional full bathroom as well as bedrooms 2-4. You can choose to use the 4th bedroom as a loft area for your gamers or little ones that need a space for playtime with their Lincoln logs and blocks.  

See All Plan Options
 

FEATURES & DETAILS

Kitchen features
Country Kitchen
Peninsula / Eating Bar
Bedroom features
Double Vanity Sink
Primary Bdrm Main Floor
Split Bedrooms
Walk-in Closet
Exterior features
Covered Front Porch
Rear Porch
Foundation Options
Basement
Crawlspace
Slab
Lot Options
Suited for narrow lot
Additional features
Fireplace
Foyer
Great Room
Laundry 1st Fl
Loft / Balcony
Open Floor Plan
Vaulted Ceilings
Garage Location
Front
Garage Options
Attached
Front-entry
1,912 Ft
2
Total Heated
1,255 Ft
2
1st Floor
657 Ft
2
2nd Floor
4
Bedrooms
2.5
Bathrooms
2
Garage
2
Stories
40' 0"
Width
47' 0"
Depth
26' 8"
Height
Varies' 0"
Main Floor Ceiling
8'' 0"
Upper Floor Ceiling
2x6
Framing
Truss
Roof Framing
10/12
Primary Roof Pitch
5/12
Porch Roof Pitch
Single
Dwelling Number
None
Bonus Access

Unheated Living Space
384 Ft
2
Garage
149 Ft
2
Porch
 

Plan Package Options

 Select Plan Package
 Need To Reverse Plan? (Optional)
  Select Foundation Option
  Add-Ons (Optional)
INCLUDED WITH YOUR PURCHASE

Free Ground shipping in the U.S.

FREE

Home Building & Product Ideas Organizer

Sub Total
$0
Free Shipping
QUESTIONS OR NEED HELP ORDERING? LIVE CHAT OR CALL US AT 866-214-2242
Plan Packages

Each set of construction documents typically includes detailed, dimensioned floor plans, basic electric layouts, cross sections, roof details, cabinet layouts, and elevations, as well as general IRC specifications. Please refer to the ARCHITECT or DESIGNER’S PLAN DETAILS link above the floor plan on any plan page to determine the specific details for each plan. Our house plans contain virtually all of the information required to construct your home. The typical plan set does not include plumbing, HVAC drawings, or engineering stamps due to the wide variety of specific needs, local codes, and climatic conditions. These details and specifications are easily obtained from your builder, contractors, and/or local engineers.

BEST PRICE GUARANTEE

Find the same house plan (modifications included!) and package for less on another site, show us the URL and we'll give you the difference plus an additional 10% back.

100% SATISFACTION GUARANTEE

We offer a one-time, 30-day exchange policy for unused, printed plan packages in the event you aren't satisfied with your first selection.

 
 

Plan 5189  Back to plan page

Loading...