Get discounts,
promos, see our
newest plans
and more!
+ 15% off any plan
See terms opt out anytime


No Thanks

Thanks for
signing up!


Use Code:

SIGNUP15

And save 15% off any plan!

Check your email for details.

CLOSE
Search Plans
Customer Reviews
     
20% off ALL House Plans Sitewide
20% off ALL House Plans Sitewide
20% off ALL House Plans Sitewide

Code: SAVE20
Sale ends midnight 5/13/2026 PST

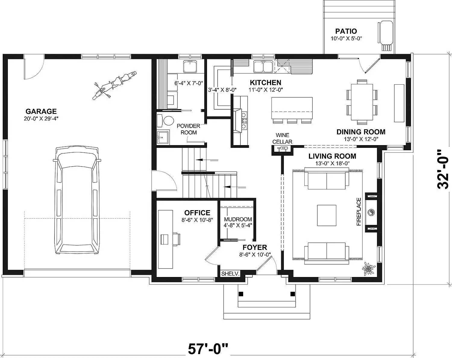
Gloria Family Traditional Style House, Plan 6343

 
 

Sq Ft
2,574 FT²

Beds
4

Baths
2.5

Stories
2

Garage
2

Depth
32'

Width
57'
On Sale
$1,576.00
$1,970.00
© copyright by designer
 View All 13 Images | Photographs may reflect modified home
Sq Ft
2,574 FT²
Beds
4
Baths
2.5
Stories
2
Garage
2
Depth
32'
Width
57'
 
Click to Zoom In on Floor Plan
© copyright by designer
 
 

About This Plan

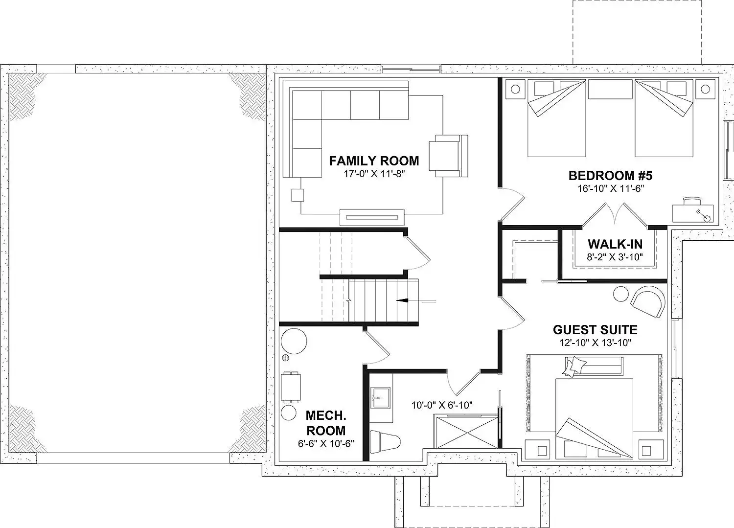
Modern meets traditional in this sleek 4 bedroom traditional style plan. A 2-story, 2,574 square foot floorplan means that you’ll have ample space, ensuring that this home can grow with you and your family. The front entryway finds a private home office to your left, and the spacious living room to your right. From there, the main level flows into the kitchen and dining room, which even provides backyard access. Around the corner from the kitchen is a powder room and the laundry room, as well as access to the attached 2-car garage. The second floor is where you’ll find the four bedrooms, including the master and its en-suite and walk-in closet. The other 3 bedrooms share a full bath. As an added bonus, this floor offers an impressive bonus room, great for you and your family to put your unique touch on this home. From a game room to a rec space or even a home gym, the choice is yours! And if you need even more space for your growing family, just look to the basement where you'll find two more bedrooms, a full bath, and a family room. You can finish it when you build or leave it for the future!

  

See All Plan Options
 

FEATURES & DETAILS

Kitchen features
Kitchen Island
Walk-in Pantry
Bedroom features
Double Vanity Sink
Family Style
Primary Bdrm Upstairs
Separate Tub and Shower
Walk-in Closet
Exterior features
Front Porch
Rear Porch
Foundation Options
Basement
Crawlspace
Slab
Lot Options
Suited for sloping lot
Additional features
Dining Room
Family Room
Fireplace
Home Office
Laundry 1st Fl
Open Floor Plan
Unfinished Space
Wine Cellar
Garage Location
Side
Garage Options
Attached
Front-entry
4,298 Ft
2
Total Structure
2,574 Ft
2
Total Heated
1,084 Ft
2
1st Floor
1,490 Ft
2
2nd Floor
1,084 Ft
2
Lower Floor
4
Bedrooms
2.5
Bathrooms
2
Garage
2
Stories
57' 0"
Width
32' 0"
Depth
32' 11"
Height
8' 10"
Main Floor Ceiling
8' 0"
Upper Floor Ceiling
8' 10"
Living/Great Room Ceiling
8' 0"
Primary Ceiling
2x6
Framing
Truss
Roof Framing
Single
Dwelling Number

Unheated Living Space
640 Ft
2
Garage
 

Plan Package Options

 Select Plan Package
 Need To Reverse Plan? (Optional)
  Select Foundation Option
  Add-Ons (Optional)
INCLUDED WITH YOUR PURCHASE

Free Ground shipping in the U.S.

FREE

Home Building & Product Ideas Organizer

Sub Total
$0
Free Shipping
Please allow 3-5 business days for delivery of this plan Please check our PDFs NOW collection for plans that can be downloaded and received immediately or live chat us to help you find a similar plan available now.
QUESTIONS OR NEED HELP ORDERING? LIVE CHAT OR CALL US AT 866-214-2242
Plan Packages

Each set of construction documents typically includes detailed, dimensioned floor plans, basic electric layouts, cross sections, roof details, cabinet layouts, and elevations, as well as general IRC specifications. Please refer to the ARCHITECT or DESIGNER’S PLAN DETAILS link above the floor plan on any plan page to determine the specific details for each plan. Our house plans contain virtually all of the information required to construct your home. The typical plan set does not include plumbing, HVAC drawings, or engineering stamps due to the wide variety of specific needs, local codes, and climatic conditions. These details and specifications are easily obtained from your builder, contractors, and/or local engineers.

BEST PRICE GUARANTEE

Find the same house plan (modifications included!) and package for less on another site, show us the URL and we'll give you the difference plus an additional 10% back.

100% SATISFACTION GUARANTEE

We offer a one-time, 30-day exchange policy for unused, printed plan packages in the event you aren't satisfied with your first selection.

 
 

Plan 6343  Back to plan page

Loading...