Get discounts,
promos, see our
newest plans
and more!
+ 15% off any plan
See terms opt out anytime


No Thanks

Thanks for
signing up!


Use Code:

SIGNUP15

And save 15% off any plan!

Check your email for details.

CLOSE
Search Plans
Customer Reviews
     
20% off ALL House Plans Sitewide
20% off ALL House Plans Sitewide
20% off ALL House Plans Sitewide

Code: SAVE20
Sale ends midnight 3/22/2026 PST

Florence 2 Charming Cottage Style House, Plan 9837

 
 

Sq Ft
1,857 FT²

Beds
4

Baths
3.5

Stories
2

Garage
0

Depth
42'

Width
32'
On Sale
$1,324.00
$1,655.00
© copyright by designer
 View All 4 Images | Photographs may reflect modified home
Sq Ft
1,857 FT²
Beds
4
Baths
3.5
Stories
2
Garage
0
Depth
42'
Width
32'
 
Click to Zoom In on Floor Plan
© copyright by designer
 
 

About This Plan

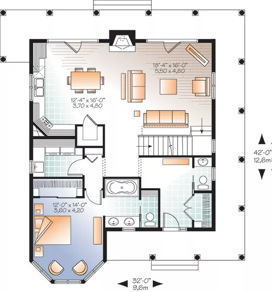
Simplicity is key with this adorable yet impressive Cape Cod style cottage. An understated front façade is dominated by a wonderful covered porch that wraps around ¾ of the entire house. The front door enters in to the foyer, passing a coat closet and half bathroom before finding yourself by the master suite. Complete with a large closet and full bathroom, the master features front facing windows and a unique curved sitting area. Further inside, the bottom level offers an open layout, combining the living room, dining room, and sprawling kitchen, making for great and easy entertaining. Moving up the stairs that are found off of the living room, you enter on to a landing which is the central area to the second floor. Three bedrooms complete the level, including one which has its own private bathroom, great for guests or a secondary master suite if needed. These bedrooms can also function as a home office or work space if all of the sleeping area isn’t necessary, while a full hallway bathroom is nearby for convenient access. 

See All Plan Options
 

FEATURES & DETAILS

Kitchen features
Walk-in Pantry
Bedroom features
2 Primary Suites
Double Vanity Sink
Guest Suite
His and Hers Primary Closets
Primary Bdrm Main Floor
Primary Bdrm Upstairs
Separate Tub and Shower
Sitting Area
Walk-in Closet
Exterior features
Covered Front Porch
Covered Rear Porch
Deck
Front Porch
Rear Porch
Wraparound Porch
Foundation Options
Basement
Crawlspace
Slab
Lot Options
Suited for narrow lot
Suited for view lot
Additional features
Family Room
Fireplace
Formal LR
Foyer
Great Room
Laundry 1st Fl
Open Floor Plan
Storage Space
Unfinished Space
Garage Location
None
Garage Options
None
1,857 Ft
2
Total Heated
1,161 Ft
2
1st Floor
696 Ft
2
2nd Floor
4
Bedrooms
3.5
Bathrooms
0
Garage
2
Stories
32' 0"
Width
42' 0"
Depth
24' 9"
Height
8' 0"
Main Floor Ceiling
8' 0"
Upper Floor Ceiling
2x6
Framing
Truss
Roof Framing
Single
Dwelling Number
None
Bonus Access

Unheated Living Space
 

Plan Package Options

 Select Plan Package
 Need To Reverse Plan? (Optional)
  Select Foundation Option
  Add-Ons (Optional)
INCLUDED WITH YOUR PURCHASE

Free Ground shipping in the U.S.

FREE

Home Building & Product Ideas Organizer

Sub Total
$0
Free Shipping
Please allow 3-5 business days for delivery of this plan Please check our PDFs NOW collection for plans that can be downloaded and received immediately or live chat us to help you find a similar plan available now.
QUESTIONS OR NEED HELP ORDERING? LIVE CHAT OR CALL US AT 866-214-2242
Plan Packages

Each set of construction documents includes detailed, dimensioned floor plans, basic electric layouts, cross sections, roof details, cabinet layouts and elevations, as well as general IRC specifications. They contain virtually all of the information required to construct your home. The typical plan set does not include any plumbing, HVAC drawings, or engineering stamps due to the wide variety of specific needs, local codes, and climatic conditions. These details and specifications are easily obtained from your builder, contractors, and/or local engineers.

BEST PRICE GUARANTEE

Find the same house plan (modifications included!) and package for less on another site, show us the URL and we'll give you the difference plus an additional 10% back.

100% SATISFACTION GUARANTEE

We offer a one-time, 30-day exchange policy for unused, printed plan packages in the event you aren't satisfied with your first selection.

 
 

Plan 9837  Back to plan page

Loading...