Get discounts,
promos, see our
newest plans
and more!
+ 15% off any plan
See terms opt out anytime


No Thanks

Thanks for
signing up!


Use Code:

SIGNUP15

And save 15% off any plan!

Check your email for details.

CLOSE
Search Plans
     
20% Off House Plans Sitewide Ends Tuesday
20% Off House Plans Sitewide Ends Tuesday
20% Off House Plans Sitewide Ends Tuesday

Code: VET20
Sale ends midnight 11/11/2025 PST

Sq Ft
2,032 FT²

Beds
3

Baths
2.5

Stories
1.5

Garage
2

Depth
56'

Width
40'
On Sale
$1,244.00
$1,555.00
© copyright by designer
 View All 7 Images | Photographs may reflect modified home
Sq Ft
2,032 FT²
Beds
3
Baths
2.5
Stories
1.5
Garage
2
Depth
56'
Width
40'
 
Click to Zoom In on Floor Plan
© copyright by designer
 
 

About This Plan

Captivating and just the right size, this striking home is sided in a pleasing mix of materials: cedar shingles, lap siding, cedar battens and stone. A dormer window over the garage complements the charming exterior. A covered entry gives way to a center hallway leading to main-level accommodations. To the left of the hall is a versatile home office with built-ins and a storage area.
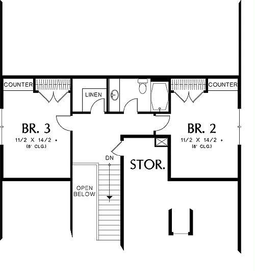
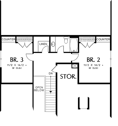
The stairway climbs to an upper level that holds two bedrooms with built-in counters. A shared hall bath has the use of a huge walk-in linen closet. The living and dining areas are to the back of the main level and are spacious and open.

Nice touches in the living room include a vaulted ceiling, a fireplace and a built-in media center. The dining room has a recessed niche for a hutch. The master suite is also on the main level. Its special appointments? A vaulted salon, a bath with spa tub and separate shower, and a massive walk-in closet. Look for a laundry room and half-bath nearby.
 


See All Plan Options
 

FEATURES & DETAILS

Kitchen features
Country Kitchen
Kitchen Island
Walk-in Pantry
Bedroom features
Double Vanity Sink
Primary Bdrm Main Floor
Separate Tub and Shower
Split Bedrooms
Walk-in Closet
Exterior features
Covered Front Porch
Front Porch
Foundation Options
Basement
Crawlspace
Slab
Lot Options
Suited for narrow lot
Additional features
2 Story Volume
Fireplace
Foyer
Great Room
Home Office
Laundry 1st Fl
Open Floor Plan
Storage Space
Vaulted Ceilings
Garage Location
Front
Garage Options
Attached
Front-entry
2,032 Ft
2
Total Heated
1,407 Ft
2
1st Floor
625 Ft
2
2nd Floor
3
Bedrooms
2.5
Bathrooms
2
Garage
1.5
Stories
40' 0"
Width
56' 0"
Depth
25' 5"
Height
varies' 0"
Main Floor Ceiling
8' 0"
Upper Floor Ceiling
2x6
Framing
Truss
Roof Framing
14/12
Primary Roof Pitch
9/12
Secondary Roof Pitch
Single
Dwelling Number
None
Bonus Access

Unheated Living Space
440 Ft
2
Garage
40 Ft
2
Porch
 

Plan Package Options

 Select Plan Package
Sale: $1,244
PDF Single Build
$1,555

Digital plans emailed to you in PDF format that allows for printing copies and sharing electronically with contractors, subs, decorators, and more. This package includes a license to build the home one time.

Sale: $1,244
Sale: $1,484
5 Printed Sets + PDF
$1,855

Digital plan emailed to you in PDF format that allows for printing copies on a home printer or local print shop and sharing with contractors, subs, decorators, and more. PLUS five printed sets shipped and delivered 3-5 business days.

Sale: $1,484
Sale: $2,488
CAD + PDF Single Build
$3,110

CAD files are a complete set of construction drawings delivered electronically. They can be used for any type of modification—including major design changes and engineering—and include a release granting permission to modify the plan. Most CAD plan orders are emailed the same or next business day.
 
This package also comes with a PDF set of plans and a copyright release for making modifications and printing unlimited copies.
 
CAD files are provided in .dwg format. For details on the specific CAD program used, please refer to the PLAN DETAILS section located above the floor plan on each plan’s page.

Sale: $2,488
 Need To Reverse Plan? (Optional)
$250
Readable Reverse

Reverse house plans with readable text and dimensions 

$250
  Select Foundation Option
  Add-Ons (Optional)
INCLUDED WITH YOUR PURCHASE

Free Ground shipping in the Continental U.S.

FREE

Design consultation with the architect or designer to discuss your plan

Home Building & Product Ideas Organizer

Sub Total
$0
Free Shipping
QUESTIONS OR NEED HELP ORDERING? LIVE CHAT OR CALL US AT 866-214-2242
Plan Packages

Each set of construction documents includes detailed, dimensioned floor plans, basic electric layouts, cross sections, roof details, cabinet layouts and elevations, as well as general IRC specifications. They contain virtually all of the information required to construct your home. The typical plan set does not include any plumbing, HVAC drawings, or engineering stamps due to the wide variety of specific needs, local codes, and climatic conditions. These details and specifications are easily obtained from your builder, contractors, and/or local engineers.

BEST PRICE GUARANTEE

find the same house plan (modifications included!) and package for less on another site, show us the URL and we'll give you the difference plus an additional 5% back.

100% SATISFACTION GUARANTEE

We offer a one-time, 30-day exchange policy for unused, non-electronic plan packages in the event you aren't satisfied with your first selection.

 
 

Plan 5240  Back to plan page

Loading...