Get discounts,
promos, see our
newest plans
and more!
+ 15% off any plan
See terms opt out anytime


No Thanks

Thanks for
signing up!


Use Code:

SIGNUP15

And save 15% off any plan!

Check your email for details.

CLOSE
Search Plans
Customer Reviews
     
15% off ALL House Plans Sitewide
15% off ALL House Plans Sitewide
15% off ALL House Plans Sitewide

Code: HONOR
Sale ends midnight 5/31/2026 PST

Sq Ft
2,411 FT²

Beds
3

Baths
2

Stories
1

Garage
2

Depth
63' 2"

Width
67' 4"
On Sale
$956.25
$1,125.00
© copyright by designer
 View All 7 Images | Photographs may reflect modified home
Sq Ft
2,411 FT²
Beds
3
Baths
2
Stories
1
Garage
2
Depth
63' 2"
Width
67' 4"
 
Click to Zoom In on Floor Plan
© copyright by designer
 
 

About This Plan

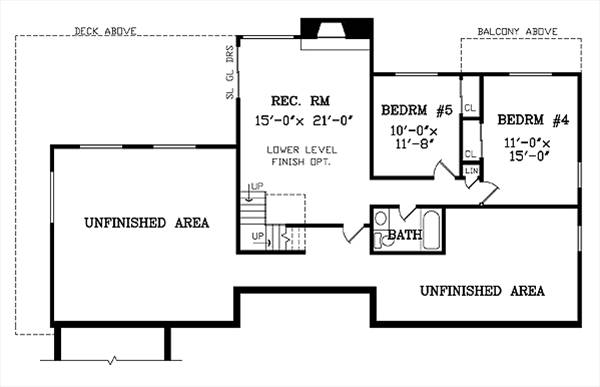
This home is designed especially for a walk-out basement condition, although it could be built as a conventional ranch, as well. An optional solar greenhouse and expansive backyard deck are sure to charm the outdoor enthusiast. All major rooms orient to this beautiful rear, including the great/living room, formal dining room and spacious eat-in kitchen. The handsome vaulted living room boasts a rustic fireplace with a slate hearth. The l-shaped garage enables ease of placement on sloping lots, while creating an attractive motor court. The master bedroom features a private balcony and a nifty window seat. The lower level, which is included within the 2411 sq.ft shown, can be finished later if desired. needed. 

See All Plan Options
 

FEATURES & DETAILS

Kitchen features
Country Kitchen
Kitchen Island
Nook / Breakfast Area
Walk-in Pantry
Bedroom features
Primary Bdrm Main Floor
Walk-in Closet
Exterior features
Deck
Front Porch
Rear Porch
Foundation Options
Daylight Basement
Walkout Basement
Lot Options
Suited for sloping lot
Suited for view lot
Additional features
Dining Room
Fireplace
Foyer
Great Room
Laundry 1st Fl
Mud Room
Rec Room
Vaulted Ceilings
Garage Location
Side
Garage Options
Attached
2,411 Ft
2
Total Heated
1,647 Ft
2
1st Floor
764 Ft
2
Lower Floor
3
Bedrooms
2
Bathrooms
2
Garage
1
Stories
67' 4"
Width
63' 2"
Depth
26' 10"
Height
8'-1"' 0"
Main Floor Ceiling
10/12
Primary Roof Pitch
7: 12
Secondary Roof Pitch
Single
Dwelling Number

Unheated Living Space
 

Plan Package Options

 Select Plan Package
  Select Foundation Option
  Add-Ons (Optional)
INCLUDED WITH YOUR PURCHASE

Free Ground shipping in the U.S.

FREE

Home Building & Product Ideas Organizer

Sub Total
$0
Free Shipping
QUESTIONS OR NEED HELP ORDERING? LIVE CHAT OR CALL US AT 866-214-2242
Plan Packages

Each set of construction documents typically includes detailed, dimensioned floor plans, basic electric layouts, cross sections, roof details, cabinet layouts, and elevations, as well as general IRC specifications. Please refer to the ARCHITECT or DESIGNER’S PLAN DETAILS link above the floor plan on any plan page to determine the specific details for each plan. Our house plans contain virtually all of the information required to construct your home. The typical plan set does not include plumbing, HVAC drawings, or engineering stamps due to the wide variety of specific needs, local codes, and climatic conditions. These details and specifications are easily obtained from your builder, contractors, and/or local engineers.

BEST PRICE GUARANTEE

Find the same house plan (modifications included!) and package for less on another site, show us the URL and we'll give you the difference plus an additional 10% back.

100% SATISFACTION GUARANTEE

We offer a one-time, 30-day exchange policy for unused, printed plan packages in the event you aren't satisfied with your first selection.

 
 

Plan 3437  Back to plan page

Loading...