Get discounts,
promos, see our
newest plans
and more!
+ 15% off any plan
See terms opt out anytime


No Thanks

Thanks for
signing up!


Use Code:

SIGNUP15

And save 15% off any plan!

Check your email for details.

CLOSE
Search Plans
     
20% Off House Plans Sitewide Ends Tuesday
20% Off House Plans Sitewide Ends Tuesday
20% Off House Plans Sitewide Ends Tuesday

Code: VET20
Sale ends midnight 11/11/2025 PST

Ferguson 2 Bedroom Craftsman Style House, Plan 7347

 
 

Sq Ft
1,125 FT²

Beds
2

Baths
2

Stories
1

Garage
0

Depth
52'

Width
50'
On Sale
$1,620.00
$2,025.00
© copyright by designer
 View All 6 Images | Photographs may reflect modified home
Sq Ft
1,125 FT²
Beds
2
Baths
2
Stories
1
Garage
0
Depth
52'
Width
50'
 
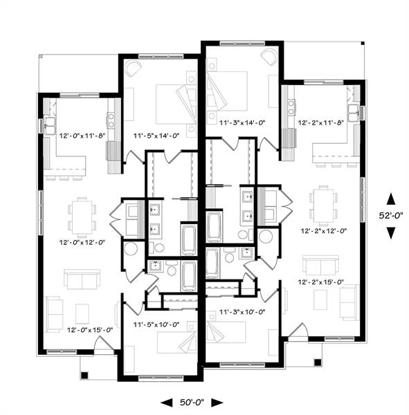
Click to Zoom In on Floor Plan
© copyright by designer
 
 

About This Plan

The duplex home plan is designed with the outward appearance of a single-family dwelling, yet feature two-distinct entries. These type of homes are popular among customers in densely populated areas such as cities where there is demand for housing but limited space. This plan features 1,125 square feet per unit and was designed for a couple or a family wishing to have no basement which allowed us to use the space that would have been reserved for a staircase (leading to the basement) and maximize the overall square footage. It should be noted that the ceiling height of the entire main floor is 9 feet high, which gives significant amplitude to the rooms. The kitchen is good in size and features a lunch counter, convenient for chatting with guests while preparing meals. In addition, a covered balcony is accessible from the kitchen making it easy to access a BBQ, for example. The dining room area and living room (lounge) are very open. The space is large enough to accommodate a table of 6 to 8 people and good size living room furniture. The master bedroom suite receives natural light from a large window overlooking the back yard. There is also a large walk-in wardrobe. A private bathroom with shower and double vanity, as well as a linen room.  A secondary bedroom is located on the front of the house and is adjacent to a full bathroom. This room could easily convert into a home office or home gym.



 

See All Plan Options
 

FEATURES & DETAILS

Kitchen features
Country Kitchen
Peninsula / Eating Bar
Bedroom features
Double Vanity Sink
His and Hers Primary Closets
Primary Bdrm Main Floor
Sitting Area
Split Bedrooms
Walk-in Closet
Exterior features
Covered Front Porch
Covered Rear Porch
Foundation Options
Basement
Crawlspace
Slab
Walkout Basement
Additional features
Dining Room
Family Room
In-law Suite
Laundry 1st Fl
Open Floor Plan
Storage Space
Garage Location
None
Garage Options
None
2,252 Ft
2
Total Structure
1,125 Ft
2
Unit Heated
2
Bedrooms
2
Bathrooms
0
Garage
1
Stories
50' 0"
Width
52' 0"
Depth
17' 6"
Height
9' 0"
Main Floor Ceiling
2x6
Framing
Truss
Roof Framing
4/12
Primary Roof Pitch
Multi-Family
Dwelling Number

Unheated Living Space
 

Plan Package Options

 Select Plan Package
Sale: $1,620
PDF Single Build
$2,025

Digital plans emailed to you in PDF format that allows for printing copies and sharing electronically with contractors, subs, decorators, and more. This package includes a license to build the home one time.

Sale: $1,620
Sale: $1,732
3 sets + PDF
$2,165
Please allow 3-5 days for delivery
Sale: $1,732
Sale: $2,820
CAD + PDF Single Build
$3,525

CAD files are a complete set of construction drawings delivered electronically. They can be used for any type of modification—including major design changes and engineering—and include a release granting permission to modify the plan. Most CAD plan orders are emailed the same or next business day.
 
This package also comes with a PDF set of plans and a copyright release for making modifications and printing unlimited copies.
 
CAD files are provided in .dwg format. For details on the specific CAD program used, please refer to the PLAN DETAILS section located above the floor plan on each plan’s page.

Sale: $2,820
 Need To Reverse Plan? (Optional)
$250
Readable Reverse

Reverse house plans with readable text and dimensions 

$250
  Select Foundation Option
  Add-Ons (Optional)
INCLUDED WITH YOUR PURCHASE

Free Ground shipping in the Continental U.S.

FREE

Design consultation with the architect or designer to discuss your plan

Home Building & Product Ideas Organizer

Sub Total
$0
Free Shipping
Please allow 3-5 business days for delivery of this plan Please check our PDFs NOW collection for plans that can be downloaded and received immediately or live chat us to help you find a similar plan available now.
QUESTIONS OR NEED HELP ORDERING? LIVE CHAT OR CALL US AT 866-214-2242
Plan Packages

Each set of construction documents includes detailed, dimensioned floor plans, basic electric layouts, cross sections, roof details, cabinet layouts and elevations, as well as general IRC specifications. They contain virtually all of the information required to construct your home. The typical plan set does not include any plumbing, HVAC drawings, or engineering stamps due to the wide variety of specific needs, local codes, and climatic conditions. These details and specifications are easily obtained from your builder, contractors, and/or local engineers.

BEST PRICE GUARANTEE

find the same house plan (modifications included!) and package for less on another site, show us the URL and we'll give you the difference plus an additional 5% back.

100% SATISFACTION GUARANTEE

We offer a one-time, 30-day exchange policy for unused, non-electronic plan packages in the event you aren't satisfied with your first selection.

 
 

Plan 7347  Back to plan page

Loading...