Get discounts,
promos, see our
newest plans
and more!
+ 15% off any plan
See terms opt out anytime


No Thanks

Thanks for
signing up!


Use Code:

SIGNUP15

And save 15% off any plan!

Check your email for details.

CLOSE
Search Plans
Customer Reviews
     

Sq Ft
2,606 FT²

Beds
4

Baths
2.5

Stories
2

Garage
2

Depth
42'

Width
50'
From
$1,892.00
© copyright by designer
 View All 24 Images | Photographs may reflect modified home
Sq Ft
2,606 FT²
Beds
4
Baths
2.5
Stories
2
Garage
2
Depth
42'
Width
50'
 
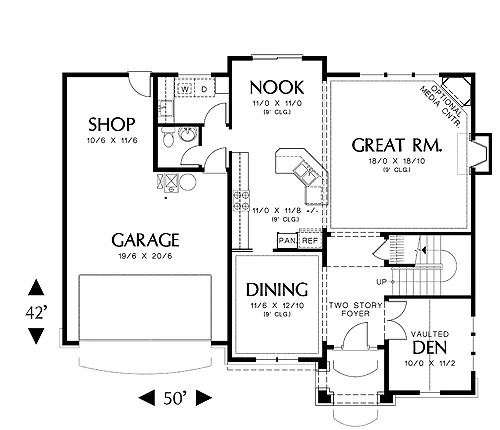
Click to Zoom In on Floor Plan
© copyright by designer
 
 

About This Plan

Little things mean a lotand in this plan, its the little details that add up to a marvelous plan. Exterior elements, for example, lend curb appeal to the two-story layout. Stone accents, lap siding and a dormer window signal the fine attention that went into exterior planning.
The floor plan has specially selected components as well. Both formal and casual dining spaces are included and flank an open kitchen that overlooks the great room. If you like, you might include a corner media center in the great room to complement the fireplace. A vaulted den lies just off the entry and opens through double doors. At the back of the plan, near a service entry to the double garage, are a laundry room and half bath.

Sleeping quarters are upstairs and include three family bedrooms and a master suite. Look for a spa tub, separate shower, dual sinks and a walk-in closet in the master bath. Family bedrooms share a full bath with double sinks. 


See All Plan Options
 

FEATURES & DETAILS

Kitchen features
Nook / Breakfast Area
Peninsula / Eating Bar
Bedroom features
Double Vanity Sink
Primary Bdrm Upstairs
Separate Tub and Shower
Split Bedrooms
Walk-in Closet
Exterior features
No Porch
Foundation Options
Basement
Crawlspace
Slab
Lot Options
Suited for narrow lot
Additional features
2 Story Volume
Dining Room
Fireplace
Foyer
Great Room
Home Office
Laundry 1st Fl
Open Floor Plan
Workshop
Garage Location
Front
Garage Options
Attached
Front-entry
Oversized
2,608 Ft
2
Total Structure
2,606 Ft
2
Total Heated
1,216 Ft
2
1st Floor
1,390 Ft
2
2nd Floor
4
Bedrooms
2.5
Bathrooms
2
Garage
2
Stories
50' 0"
Width
42' 0"
Depth
30' 0"
Height
9' 1"' 0"
Main Floor Ceiling
9' 1"' 0"
Upper Floor Ceiling
2x6
Framing
Truss
Roof Framing
9/12
Primary Roof Pitch
12/12
Secondary Roof Pitch
Single
Dwelling Number
None
Bonus Access

Unheated Living Space
552 Ft
2
Garage
 

Plan Package Options

 Select Plan Package
$2,217
5 Printed Sets + PDF

Includes 5 physical printed blueprints shipped and delivered within 3-5 business days and a copyright release license to construct one home and to make copies. A complimentary PDF plan set is also emailed within 1 business day for easy sharing and local printing. 

$2,217
$1,892
PDF Single Build

Digital plans emailed to you in PDF format that allows for printing copies and sharing electronically with contractors, subs, decorators, and more. This package includes a license to build the home one time.

$1,892
$3,784
CAD + PDF Single Build

This plan package is created in AutoCAD and delivered in .DWG format. CAD files are intended for use by design professionals, structural engineers, and builders to update plans for local building codes or to make revisions based on specific needs, lot requirements, and budget considerations. A complimentary PDF copy is included with this package for reference. CAD packages are delivered within 1 to 2 business days.
 
This package also comes with a copyright release for making revisions and printing unlimited copies.

For details on the specific CAD program used, please refer to the PLAN DETAILS section located above the floor plan on each plan page.

$3,784
 Need To Reverse Plan? (Optional)
$250
Readable Reverse

Reverse house plans with readable text and dimensions 

$250
  Select Foundation Option
  Add-Ons (Optional)
INCLUDED WITH YOUR PURCHASE

Free Ground shipping in the Continental U.S.

FREE

Home Building & Product Ideas Organizer

Sub Total
$0
Free Shipping
QUESTIONS OR NEED HELP ORDERING? LIVE CHAT OR CALL US AT 866-214-2242
Plan Packages

Each set of construction documents includes detailed, dimensioned floor plans, basic electric layouts, cross sections, roof details, cabinet layouts and elevations, as well as general IRC specifications. They contain virtually all of the information required to construct your home. The typical plan set does not include any plumbing, HVAC drawings, or engineering stamps due to the wide variety of specific needs, local codes, and climatic conditions. These details and specifications are easily obtained from your builder, contractors, and/or local engineers.

BEST PRICE GUARANTEE

Find the same house plan (modifications included!) and package for less on another site, show us the URL and we'll give you the difference plus an additional 5% back.

100% SATISFACTION GUARANTEE

We offer a one-time, 30-day exchange policy for unused, printed plan packages in the event you aren't satisfied with your first selection. Exchanges are subject to a 20% restocking fee.

 
 

Plan 5604  Back to plan page

Loading...