Get discounts,
promos, see our
newest plans
and more!
+ 15% off any plan
See terms opt out anytime


No Thanks

Thanks for
signing up!


Use Code:

SIGNUP15

And save 15% off any plan!

Check your email for details.

CLOSE
Search Plans
Customer Reviews
     
15% off ALL House Plans Sitewide
15% off ALL House Plans Sitewide
15% off ALL House Plans Sitewide

Code: HONOR
Sale ends midnight 5/31/2026 PST

Sq Ft
4,320 FT²

Beds
4

Baths
2.5

Stories
2

Garage
3

Depth
91' 4"

Width
68'
On Sale
$2,082.50
$2,450.00
© copyright by designer
 View All 4 Images | Photographs may reflect modified home
Sq Ft
4,320 FT²
Beds
4
Baths
2.5
Stories
2
Garage
3
Depth
91' 4"
Width
68'
 
Click to Zoom In on Floor Plan
© copyright by designer
 
 

About This Plan

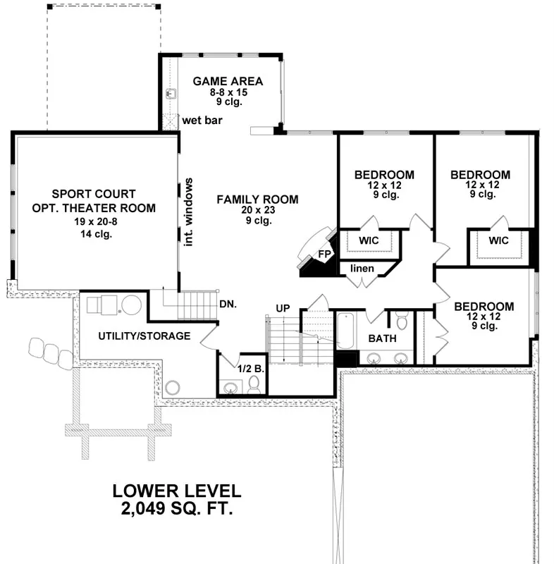
This four-bedroom traditional design includes a main-floor master suite; the other bedrooms are found on the finished basement level. The gourmet kitchen serves the dining room and great room with ease. A cathedral ceiling tops the screen porch, where you will enjoy good conversation with friends. Downstairs, the family room is enhanced by a corner fireplace. An exciting sport court is a few more steps down, since it needs a high ceiling. 

See All Plan Options
 

FEATURES & DETAILS

Kitchen features
Kitchen Island
Walk-in Pantry
Bedroom features
Primary Bdrm Main Floor
Walk-in Closet
Exterior features
Screened Porch/Sunroom
Foundation Options
Daylight Basement
Walkout Basement
Additional features
Dining Room
Exercise Room
Family Room
Fireplace
Great Room
Inverted Living
Mud Room
Rec Room
Storage Space
Vaulted Ceilings
Garage Location
Front
Garage Options
Attached
Side-entry
4,320 Ft
2
Total Heated
2,271 Ft
2
1st Floor
2,049 Ft
2
Lower Floor
4
Bedrooms
2.5
Bathrooms
3
Garage
2
Stories
68' 0"
Width
91' 4"
Depth
30' 0"
Height
9' 0"
Main Floor Ceiling
2x6
Framing
Truss
Roof Framing
12/12
Primary Roof Pitch
Single
Dwelling Number

Unheated Living Space
1,075 Ft
2
Garage
 

Plan Package Options

 Select Plan Package
 Need To Reverse Plan? (Optional)
  Select Foundation Option
  Add-Ons (Optional)
INCLUDED WITH YOUR PURCHASE

Free Ground shipping in the U.S.

FREE

Home Building & Product Ideas Organizer

Sub Total
$0
Free Shipping
QUESTIONS OR NEED HELP ORDERING? LIVE CHAT OR CALL US AT 866-214-2242
Plan Packages

Each set of construction documents typically includes detailed, dimensioned floor plans, basic electric layouts, cross sections, roof details, cabinet layouts, and elevations, as well as general IRC specifications. Please refer to the ARCHITECT or DESIGNER’S PLAN DETAILS link above the floor plan on any plan page to determine the specific details for each plan. Our house plans contain virtually all of the information required to construct your home. The typical plan set does not include plumbing, HVAC drawings, or engineering stamps due to the wide variety of specific needs, local codes, and climatic conditions. These details and specifications are easily obtained from your builder, contractors, and/or local engineers.

BEST PRICE GUARANTEE

Find the same house plan (modifications included!) and package for less on another site, show us the URL and we'll give you the difference plus an additional 10% back.

100% SATISFACTION GUARANTEE

We offer a one-time, 30-day exchange policy for unused, printed plan packages in the event you aren't satisfied with your first selection.

 
 

Plan 9682  Back to plan page

Loading...