Get discounts,
promos, see our
newest plans
and more!
+ 15% off any plan
See terms opt out anytime


No Thanks

Thanks for
signing up!


Use Code:

SIGNUP15

And save 15% off any plan!

Check your email for details.

CLOSE
Search Plans
Customer Reviews
     
15% off ALL House Plans Sitewide
15% off ALL House Plans Sitewide
15% off ALL House Plans Sitewide

Code: HONOR
Sale ends midnight 5/31/2026 PST

3 Bedroom Craftsman Style House, Plan 4983

 
 

Sq Ft
1,993 FT²

Beds
3

Baths
2

Stories
1

Garage
3

Depth
59' 6"

Width
62'
On Sale
$1,487.50
$1,750.00
© copyright by designer
 View All 30 Images | Photographs may reflect modified home
Sq Ft
1,993 FT²
Beds
3
Baths
2
Stories
1
Garage
3
Depth
59' 6"
Width
62'
 
Click to Zoom In on Floor Plan
© copyright by designer
 
 

About This Plan

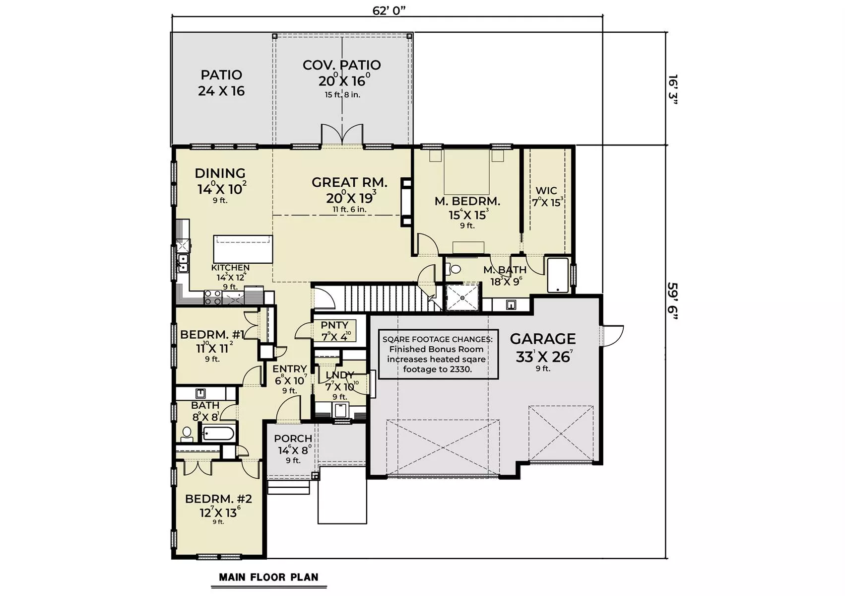
A marvelously versatile design gives this traditional Craftsman ranch a universal appeal. And now, you can see exactly what the amazing spaces will look like thanks to the inclusion of tons of real-life photos provided courtesy of a happy customer. Explore all that the 2,230 square foot layout has to offer. From the open main level with its 3 bedrooms and 3 bathrooms, to the bonus room that sits atop the attached garage and awaits your customization, there is so much to love. Also on the main level is your great room and island kitchen, as well as the covered patio and even the master suite. Auxiliary bedrooms can double as an office or playroom if you don’t need all the sleeping space. 

See All Plan Options
 

FEATURES & DETAILS

Kitchen features
L-Shaped
Pantry
Peninsula / Eating Bar
Walk-in Pantry
Bedroom features
Primary Bdrm Main Floor
Separate Tub and Shower
Split Bedrooms
Walk-in Closet
Exterior features
Covered Front Porch
Front Porch
Additional features
Bonus Room
Dining Room
Fireplace
Great Room
Laundry 1st Fl
Open Floor Plan
Vaulted Ceilings
Vaulted Great Room/Living
Garage Location
Front
Garage Options
Attached
Front-entry
Oversized
3,126 Ft
2
Total Structure
1,993 Ft
2
Total Heated
1,993 Ft
2
1st Floor
3
Bedrooms
2
Bathrooms
3
Garage
1
Stories
62' 0"
Width
59' 6"
Depth
22' 8"
Height
9' 0"
Main Floor Ceiling
8' 10"
Upper Floor Ceiling
11' 6"
Living/Great Room Ceiling
11' 0"
Primary Ceiling
2x6
Framing
Truss
Roof Framing
6/12
Primary Roof Pitch
12/12
Secondary Roof Pitch
Single
Dwelling Number
2nd Floor
Bonus Access

Unheated Living Space
796 Ft
2
Garage
320 Ft
2
Patio
337 Ft
2
Bonus Room
 

Plan Package Options

 Select Plan Package
 Need To Reverse Plan? (Optional)
  Select Foundation Option
  Add-Ons (Optional)
INCLUDED WITH YOUR PURCHASE

Free Ground shipping in the U.S.

FREE

Home Building & Product Ideas Organizer

Sub Total
$0
Free Shipping
QUESTIONS OR NEED HELP ORDERING? LIVE CHAT OR CALL US AT 866-214-2242
Plan Packages

Each set of construction documents typically includes detailed, dimensioned floor plans, basic electric layouts, cross sections, roof details, cabinet layouts, and elevations, as well as general IRC specifications. Please refer to the ARCHITECT or DESIGNER’S PLAN DETAILS link above the floor plan on any plan page to determine the specific details for each plan. Our house plans contain virtually all of the information required to construct your home. The typical plan set does not include plumbing, HVAC drawings, or engineering stamps due to the wide variety of specific needs, local codes, and climatic conditions. These details and specifications are easily obtained from your builder, contractors, and/or local engineers.

BEST PRICE GUARANTEE

Find the same house plan (modifications included!) and package for less on another site, show us the URL and we'll give you the difference plus an additional 10% back.

100% SATISFACTION GUARANTEE

We offer a one-time, 30-day exchange policy for unused, printed plan packages in the event you aren't satisfied with your first selection.

 
 

Plan 4983  Back to plan page

Loading...