Get discounts,
promos, see our
newest plans
and more!
+ 15% off any plan
See terms opt out anytime


No Thanks

Thanks for
signing up!


Use Code:

SIGNUP15

And save 15% off any plan!

Check your email for details.

CLOSE
Search Plans
Customer Reviews
     
15% off ALL House Plans Sitewide
15% off ALL House Plans Sitewide
15% off ALL House Plans Sitewide

Code: HONOR
Sale ends midnight 5/31/2026 PST

Contemporary Farm House Style House, Plan 7447

 
 

Sq Ft
2,329 FT²

Beds
3

Baths
2.5

Stories
2

Garage
2

Depth
34'

Width
78'
On Sale
$1,487.50
$1,750.00
© copyright by designer
 View All 7 Images | Photographs may reflect modified home
Sq Ft
2,329 FT²
Beds
3
Baths
2.5
Stories
2
Garage
2
Depth
34'
Width
78'
 
Click to Zoom In on Floor Plan
© copyright by designer
 
 

About This Plan

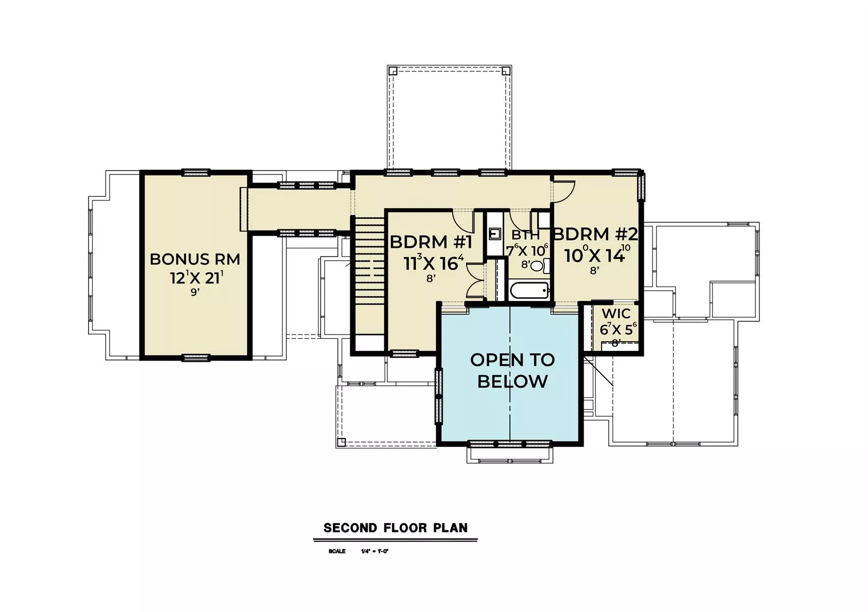
Sleek and stylish with a bit of old time charm, this 2-story farm house style plan is both unique and highly functional. Featuring 1,974 square feet of living space, which includes things such as 3 bedrooms and 2.5 bathrooms, this home is a fresh new twist on one of our most popular styles. Park your car in one of the spaces within the large 2-car garage, and head inside to explore all that this fabulous home has to offer. A covered breezeway shields the detached garage from the elements and provides entry in to the first floor laundry and mud room, while a short walkway leads to the covered front porch and entryway. A nearby powder room is easy and convenient for guests, while the entryway then spills in to the wonderful open concept living spaces which includes the massive great room and its fireplace, the dining room, and finally the large gourmet kitchen. A covered patio off of the dining room makes for great outdoor living and entertaining. The first floor is highlighted by its fantastic master suite, a place of true relaxation thanks to its vaulted bedroom, spa style bath with dual vanities, and spacious walk-in closet. Upstairs you will be pleased to find two more full bedrooms which share a hallway bath, a great and private place for growing children. A long hallway is warmed by natural light thanks to its ample windows, leading to an expansive bonus room over the garage with its very own sky walk! With over 350 square feet, this room is perfect to add whatever space(s) that you and your family may need to make this home a dream come true. 

See All Plan Options
 

FEATURES & DETAILS

Kitchen features
Kitchen Island
Peninsula / Eating Bar
Walk-in Pantry
Bedroom features
Double Vanity Sink
Primary Bdrm Main Floor
Separate Tub and Shower
Walk-in Closet
Exterior features
Breezeway
Covered Front Porch
Foundation Options
Crawlspace
Additional features
Bonus Room
Dining Room
Fireplace
Great Room
Laundry 1st Fl
Open Floor Plan
Garage Location
Side
Garage Options
Detached
1,974 Ft
2
Total Structure
2,329 Ft
2
Total Heated
1,400 Ft
2
1st Floor
574 Ft
2
2nd Floor
3
Bedrooms
2.5
Bathrooms
2
Garage
2
Stories
78' 0"
Width
34' 0"
Depth
29' 15"
Height
9' 0"
Main Floor Ceiling
8' 0"
Upper Floor Ceiling
2x6
Framing
Truss
Roof Framing
12 by 12
Primary Roof Pitch
4 by 12
Secondary Roof Pitch
Single
Dwelling Number
2nd Floor
Bonus Access

Unheated Living Space
494 Ft
2
Garage
355 Ft
2
Bonus Room
 

Plan Package Options

 Select Plan Package
 Need To Reverse Plan? (Optional)
  Select Foundation Option
  Add-Ons (Optional)
INCLUDED WITH YOUR PURCHASE

Free Ground shipping in the U.S.

FREE

Home Building & Product Ideas Organizer

Sub Total
$0
Free Shipping
QUESTIONS OR NEED HELP ORDERING? LIVE CHAT OR CALL US AT 866-214-2242
Plan Packages

Each set of construction documents typically includes detailed, dimensioned floor plans, basic electric layouts, cross sections, roof details, cabinet layouts, and elevations, as well as general IRC specifications. Please refer to the ARCHITECT or DESIGNER’S PLAN DETAILS link above the floor plan on any plan page to determine the specific details for each plan. Our house plans contain virtually all of the information required to construct your home. The typical plan set does not include plumbing, HVAC drawings, or engineering stamps due to the wide variety of specific needs, local codes, and climatic conditions. These details and specifications are easily obtained from your builder, contractors, and/or local engineers.

BEST PRICE GUARANTEE

Find the same house plan (modifications included!) and package for less on another site, show us the URL and we'll give you the difference plus an additional 10% back.

100% SATISFACTION GUARANTEE

We offer a one-time, 30-day exchange policy for unused, printed plan packages in the event you aren't satisfied with your first selection.

 
 

Plan 7447  Back to plan page

Loading...