Get discounts,
promos, see our
newest plans
and more!
+ 15% off any plan
See terms opt out anytime


No Thanks

Thanks for
signing up!


Use Code:

SIGNUP15

And save 15% off any plan!

Check your email for details.

CLOSE
Search Plans
Customer Reviews
     
20% off ALL House Plans Sitewide
20% off ALL House Plans Sitewide
20% off ALL House Plans Sitewide

Code: SAVE20
Sale ends midnight 5/13/2026 PST

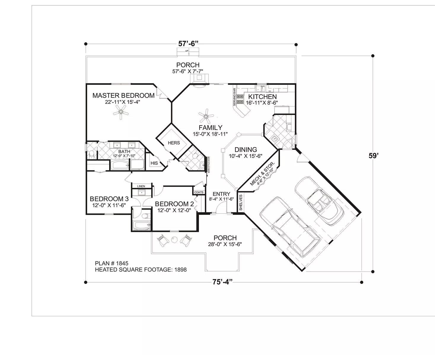
Cobblestone Glen 3 Bedroom Craftsman Style House, Plan 7274

 
 

Sq Ft
1,989 FT²

Beds
3

Baths
2.5

Stories
1

Garage
2

Depth
59'

Width
75' 4"
On Sale
$1,036.00
$1,295.00
© copyright by designer
 View All 5 Images | Photographs may reflect modified home
Sq Ft
1,989 FT²
Beds
3
Baths
2.5
Stories
1
Garage
2
Depth
59'
Width
75' 4"
 
Click to Zoom In on Floor Plan
© copyright by designer
 
 

About This Plan

Part of our popular Arts and Crafts Series, this cottage style plan features timeless Craftsman styling, including many popular and requested features. The use of sharp angles and sloping lines throughout, combines with a spacious open layout to provide an uncommon mix of drama and warmth. The captivating full front porch is highlighted by the steep vaulted entryway, creating a welcoming focal point that draws you in to this 1,989 square foot home. As you enter, you are greeted by a vast open layout which includes the kitchen, dining, and family rooms. This plan also includes an optional bonus room on a second floor, as well as access to an unfinished foundation basement that can be modified to fit your specific needs and desires. A uniquely spacious master suite features large His and Hers walk-in closets, and luxurious bath as well direct rear porch access. The other two bedrooms share a Jack and Jill bath, while a half bath is located just down the hallway, easily accessible for guests. This home features an irresistible open kitchen, offering a large bar for entertaining. Accessible from the family room and the master suite, this home provides a full-width rear porch with abundant sitting areas for outdoor enjoyment. Shown in the rear view is an area large enough for a swimming pool, and abundant space for enjoying family time together, or for entertaining outdoors.

 

 

  

See All Plan Options
 

FEATURES & DETAILS

Bedroom features
Double Vanity Sink
His and Hers Primary Closets
Exterior features
Front Porch
Rear Porch
Foundation Options
Basement
Crawlspace
Slab
Additional features
Dining Room
Family Room
Laundry 1st Fl
Open Floor Plan
Garage Location
Side
Garage Options
Attached
Side-entry
1,989 Ft
2
Total Heated
1,989 Ft
2
1st Floor
3
Bedrooms
2.5
Bathrooms
2
Garage
1
Stories
75' 4"
Width
59' 0"
Depth
21' 10"
Height
9' 0"
Main Floor Ceiling
2x6
Framing
Stick
Roof Framing
6/12
Primary Roof Pitch
12/12
Secondary Roof Pitch
Single
Dwelling Number
None
Bonus Access

Unheated Living Space
 

Plan Package Options

 Select Plan Package
 Need To Reverse Plan? (Optional)
  Select Foundation Option
  Add-Ons (Optional)
INCLUDED WITH YOUR PURCHASE

Free Ground shipping in the U.S.

FREE

Home Building & Product Ideas Organizer

Sub Total
$0
Free Shipping
QUESTIONS OR NEED HELP ORDERING? LIVE CHAT OR CALL US AT 866-214-2242
Plan Packages

Each set of construction documents typically includes detailed, dimensioned floor plans, basic electric layouts, cross sections, roof details, cabinet layouts, and elevations, as well as general IRC specifications. Please refer to the ARCHITECT or DESIGNER’S PLAN DETAILS link above the floor plan on any plan page to determine the specific details for each plan. Our house plans contain virtually all of the information required to construct your home. The typical plan set does not include plumbing, HVAC drawings, or engineering stamps due to the wide variety of specific needs, local codes, and climatic conditions. These details and specifications are easily obtained from your builder, contractors, and/or local engineers.

BEST PRICE GUARANTEE

Find the same house plan (modifications included!) and package for less on another site, show us the URL and we'll give you the difference plus an additional 10% back.

100% SATISFACTION GUARANTEE

We offer a one-time, 30-day exchange policy for unused, printed plan packages in the event you aren't satisfied with your first selection.

 
 

Plan 7274  Back to plan page

Loading...