Get discounts,
promos, see our
newest plans
and more!
+ 15% off any plan
See terms opt out anytime


No Thanks

Thanks for
signing up!


Use Code:

SIGNUP15

And save 15% off any plan!

Check your email for details.

CLOSE
Search Plans
Customer Reviews
     
15% off ALL House Plans Sitewide
15% off ALL House Plans Sitewide
15% off ALL House Plans Sitewide

Code: HONOR
Sale ends midnight 5/31/2026 PST

Sq Ft
1,911 FT²

Beds
3

Baths
2.5

Stories
1.5

Garage
2

Depth
34'

Width
41' 1"
On Sale
$884.00
$1,040.00
EXCLUSIVE PLAN
© copyright by architect
 View All 6 Images | Photographs may reflect modified home
Sq Ft
1,911 FT²
Beds
3
Baths
2.5
Stories
1.5
Garage
2
Depth
34'
Width
41' 1"
 
Click to Zoom In on Floor Plan
© copyright by architect
 
 

About This Plan

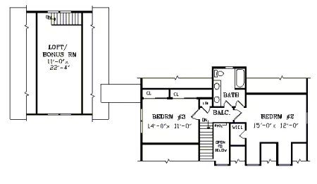
A covered front porch with Victorian trim, triple dormers, and a bay window combine for a pleasing, charming exterior look. The front half of the plan incorporates the formal living and dining rooms for entertaining guests. I designed the dining room with a high tray ceiling. The informal family living area faces the rear patio and includes a spacious kitchen with pantry, a built-in snack bar and a large family room. The main-floor master suite includes a dressing area next to the walk-in closet and a compartmented bath and toilet. There are two additional bedrooms with a full bath upstairs.

The optional garage features a loft/bonus room overhead. 

See All Plan Options
 

FEATURES & DETAILS

Kitchen features
Country Kitchen
Peninsula / Eating Bar
Bedroom features
Primary Bdrm Main Floor
Walk-in Closet
Exterior features
Covered Front Porch
Foundation Options
Basement
Crawlspace
Slab
Lot Options
Suited for narrow lot
Additional features
Bonus Room
Dining Room
Fireplace
Formal LR
Foyer
Laundry 1st Fl
Mud Room
Garage Location
Side
Garage Options
Detached
Front-entry
1,911 Ft
2
Total Heated
1,295 Ft
2
1st Floor
616 Ft
2
2nd Floor
3
Bedrooms
2.5
Bathrooms
2
Garage
1.5
Stories
41' 1"
Width
34' 0"
Depth
8'-1"' 0"
Main Floor Ceiling
8'-1"' 0"
Upper Floor Ceiling
2x4
Framing
Stick
Roof Framing
11/12
Primary Roof Pitch
18/ 12
Secondary Roof Pitch
Single
Dwelling Number
2nd Floor
Bonus Access

Unheated Living Space
537 Ft
2
Garage
303 Ft
2
Bonus Room
 

Plan Package Options

 Select Plan Package
  Select Foundation Option
  Add-Ons (Optional)
INCLUDED WITH YOUR PURCHASE

Free Ground shipping in the U.S.

FREE

Home Building & Product Ideas Organizer

Sub Total
$0
Free Shipping
QUESTIONS OR NEED HELP ORDERING? LIVE CHAT OR CALL US AT 866-214-2242
Plan Packages

Each set of construction documents typically includes detailed, dimensioned floor plans, basic electric layouts, cross sections, roof details, cabinet layouts, and elevations, as well as general IRC specifications. Please refer to the ARCHITECT or DESIGNER’S PLAN DETAILS link above the floor plan on any plan page to determine the specific details for each plan. Our house plans contain virtually all of the information required to construct your home. The typical plan set does not include plumbing, HVAC drawings, or engineering stamps due to the wide variety of specific needs, local codes, and climatic conditions. These details and specifications are easily obtained from your builder, contractors, and/or local engineers.

BEST PRICE GUARANTEE

Find the same house plan (modifications included!) and package for less on another site, show us the URL and we'll give you the difference plus an additional 10% back.

100% SATISFACTION GUARANTEE

We offer a one-time, 30-day exchange policy for unused, printed plan packages in the event you aren't satisfied with your first selection.

 
 

Plan 3771  Back to plan page

Loading...