Get discounts,
promos, see our
newest plans
and more!
+ 15% off any plan
See terms opt out anytime


No Thanks

Thanks for
signing up!


Use Code:

SIGNUP15

And save 15% off any plan!

Check your email for details.

CLOSE
Search Plans
Customer Reviews
     
15% off ALL House Plans Sitewide
15% off ALL House Plans Sitewide
15% off ALL House Plans Sitewide

Code: HONOR
Sale ends midnight 5/29/2026 PST

Sq Ft
1,561 FT²

Beds
2

Baths
2

Stories
1.5

Garage
0

Depth
33' 8"

Width
30'
On Sale
$1,428.00
$1,680.00
© copyright by designer
 View All 4 Images | Photographs may reflect modified home
Sq Ft
1,561 FT²
Beds
2
Baths
2
Stories
1.5
Garage
0
Depth
33' 8"
Width
30'
 
Click to Zoom In on Floor Plan
© copyright by designer
 
 

About This Plan

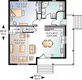
A pillared wrap-around porch dresses up the exterior of this charming country cottage. Inside, a well-designed 1,561 sq. ft. holds a lot of living. Main level showcases cathedral ceilings in the family room and the country kitchen has French doors to the wrap-around porch. A lovely bedroom with shower bath snuggles up to the rear of the home. Upstairs, a bedroom has a walk-in closet and bull bathroom. There is plenty of room in the mezzanine for a third bedroom, a home office or sitting room. An unfinished basement provides space for storage or expanded family living area. 

See All Plan Options
 

FEATURES & DETAILS

Kitchen features
Country Kitchen
Bedroom features
Primary Bdrm Upstairs
Separate Tub and Shower
Walk-in Closet
Exterior features
Covered Front Porch
Wraparound Porch
Foundation Options
Basement
Crawlspace
Daylight Basement
Slab
Lot Options
Suited for corner lot
Additional features
Dining Room
Family Room
Formal LR
Foyer
Laundry 1st Fl
Open Floor Plan
Vaulted Ceilings
Garage Location
None
Garage Options
None
1,561 Ft
2
Total Heated
960 Ft
2
1st Floor
601 Ft
2
2nd Floor
2
Bedrooms
2
Bathrooms
0
Garage
1.5
Stories
30' 0"
Width
33' 8"
Depth
28' 11"
Height
9' 0"
Main Floor Ceiling
8' 0"
Upper Floor Ceiling
2x6
Framing
Truss
Roof Framing
12/12
Primary Roof Pitch
5/12
Porch Roof Pitch
Single
Dwelling Number
None
Bonus Access

Unheated Living Space
 

Plan Package Options

 Select Plan Package
 Need To Reverse Plan? (Optional)
  Select Foundation Option
  Add-Ons (Optional)
INCLUDED WITH YOUR PURCHASE

Free Ground shipping in the U.S.

FREE

Home Building & Product Ideas Organizer

Sub Total
$0
Free Shipping
Please allow 3-5 business days for delivery of this plan Please check our PDFs NOW collection for plans that can be downloaded and received immediately or live chat us to help you find a similar plan available now.
QUESTIONS OR NEED HELP ORDERING? LIVE CHAT OR CALL US AT 866-214-2242
Plan Packages

Each set of construction documents typically includes detailed, dimensioned floor plans, basic electric layouts, cross sections, roof details, cabinet layouts, and elevations, as well as general IRC specifications. Please refer to the ARCHITECT or DESIGNER’S PLAN DETAILS link above the floor plan on any plan page to determine the specific details for each plan. Our house plans contain virtually all of the information required to construct your home. The typical plan set does not include plumbing, HVAC drawings, or engineering stamps due to the wide variety of specific needs, local codes, and climatic conditions. These details and specifications are easily obtained from your builder, contractors, and/or local engineers.

BEST PRICE GUARANTEE

Find the same house plan (modifications included!) and package for less on another site, show us the URL and we'll give you the difference plus an additional 10% back.

100% SATISFACTION GUARANTEE

We offer a one-time, 30-day exchange policy for unused, printed plan packages in the event you aren't satisfied with your first selection.

 
 

Plan 4203  Back to plan page

Loading...