Get discounts,
promos, see our
newest plans
and more!
+ 15% off any plan
See terms opt out anytime


No Thanks

Thanks for
signing up!


Use Code:

SIGNUP15

And save 15% off any plan!

Check your email for details.

CLOSE
Search Plans
Customer Reviews
     
15% off ALL House Plans Sitewide
15% off ALL House Plans Sitewide
15% off ALL House Plans Sitewide

Code: SAVE15
Sale ends midnight 4/19/2026 PST

Sq Ft
2,369 FT²

Beds
3

Baths
3.5

Stories
2

Garage
2

Depth
63' 2"

Width
91'
On Sale
$1,877.65
$2,209.00
© copyright by designer
 View All 4 Images | Photographs may reflect modified home
Sq Ft
2,369 FT²
Beds
3
Baths
3.5
Stories
2
Garage
2
Depth
63' 2"
Width
91'
 
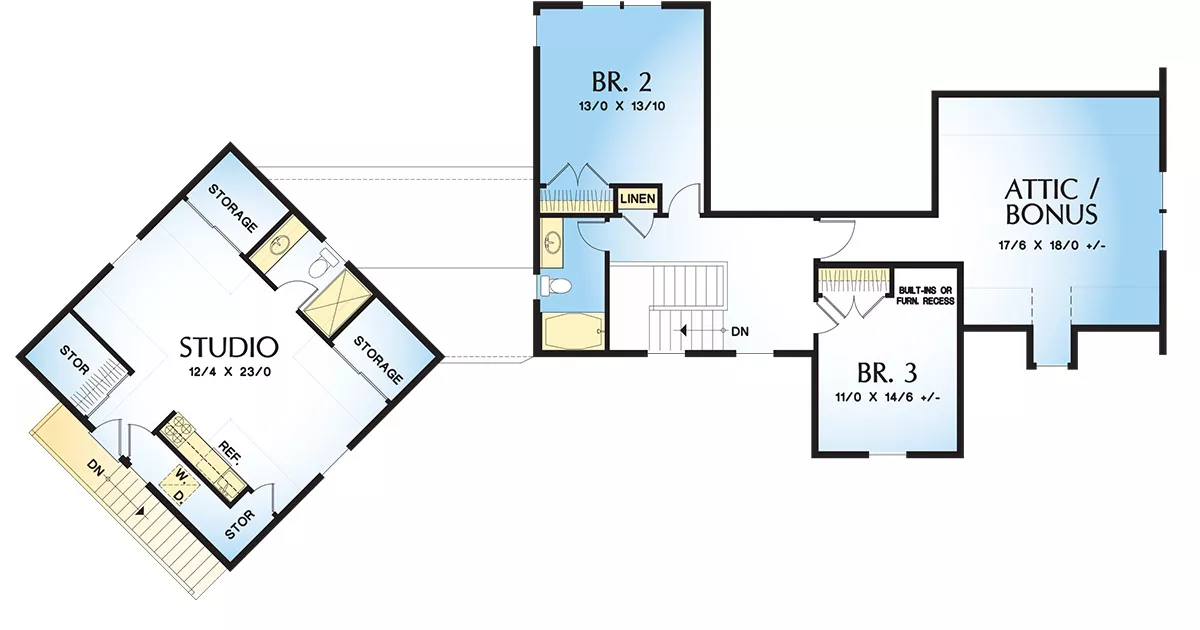
Click to Zoom In on Floor Plan
© copyright by designer
 
 

About This Plan

This traditionally styled home is perfect for an expanded family or entrepreneur. Complete with detached apartment studio, open floor plan, home office, large bonus room, mudroom and spacious master suite, this amenity rich home speaks to those desiring a larger home on a smaller budget.

An open foyer leads past an inviting staircase to a large, open plan layout of great room, dining and kitchen areas. For those working from home, the office is conveniently close by - for those looking for fun, attractive outdoor spaces at front and rear connect homeowners to nature while protecting them from the elements.

A private master suite on the main floor means older homeowners have less trouble with stairs, and bedrooms upstairs provide great space for expanded families.
 

See All Plan Options
 

FEATURES & DETAILS

Kitchen features
Country Kitchen
Kitchen Island
Bedroom features
Double Vanity Sink
Primary Bdrm Main Floor
Separate Tub and Shower
Split Bedrooms
Walk-in Closet
Exterior features
Covered Front Porch
Covered Rear Porch
Foundation Options
Basement
Crawlspace
Slab
Lot Options
Suited for view lot
Additional features
Bonus Room
Fireplace
Foyer
Great Room
Home Office
Laundry 1st Fl
Mud Room
Open Floor Plan
Vaulted Ceilings
Garage Options
Attached
3,215 Ft
2
Total Structure
2,369 Ft
2
Total Heated
1,761 Ft
2
1st Floor
608 Ft
2
2nd Floor
3
Bedrooms
3.5
Bathrooms
2
Garage
2
Stories
91' 0"
Width
63' 2"
Depth
27' 0"
Height
Varies' 0"
Main Floor Ceiling
8'' 0"
Upper Floor Ceiling
2x6
Framing
Truss
Roof Framing
12/12
Primary Roof Pitch
4/12
Porch Roof Pitch
Single
Dwelling Number
2nd Floor
Bonus Access

Unheated Living Space
643 Ft
2
Garage
442 Ft
2
Porch
846 Ft
2
Bonus Room
 

Plan Package Options

 Select Plan Package
 Need To Reverse Plan? (Optional)
  Select Foundation Option
  Add-Ons (Optional)
INCLUDED WITH YOUR PURCHASE

Free Ground shipping in the U.S.

FREE

Home Building & Product Ideas Organizer

Sub Total
$0
Free Shipping
QUESTIONS OR NEED HELP ORDERING? LIVE CHAT OR CALL US AT 866-214-2242
Plan Packages

Each set of construction documents typically includes detailed, dimensioned floor plans, basic electric layouts, cross sections, roof details, cabinet layouts, and elevations, as well as general IRC specifications. Please refer to the ARCHITECT or DESIGNER’S PLAN DETAILS link above the floor plan on any plan page to determine the specific details for each plan. Our house plans contain virtually all of the information required to construct your home. The typical plan set does not include plumbing, HVAC drawings, or engineering stamps due to the wide variety of specific needs, local codes, and climatic conditions. These details and specifications are easily obtained from your builder, contractors, and/or local engineers.

BEST PRICE GUARANTEE

Find the same house plan (modifications included!) and package for less on another site, show us the URL and we'll give you the difference plus an additional 10% back.

100% SATISFACTION GUARANTEE

We offer a one-time, 30-day exchange policy for unused, printed plan packages in the event you aren't satisfied with your first selection.

 
 

Plan 4728  Back to plan page

Loading...