Get discounts,
promos, see our
newest plans
and more!
+ 15% off any plan
See terms opt out anytime


No Thanks

Thanks for
signing up!


Use Code:

SIGNUP15

And save 15% off any plan!

Check your email for details.

CLOSE
Search Plans
Customer Reviews
     
15% off ALL House Plans Sitewide
15% off ALL House Plans Sitewide
15% off ALL House Plans Sitewide

Code: SAVE15
Sale ends midnight 4/22/2026 PST

Sq Ft
2,055 FT²

Beds
3

Baths
2

Stories
1.5

Garage
2

Depth
54' 4"

Width
69' 8"
On Sale
$1,194.25
$1,405.00
© copyright by designer
 View All 6 Images | Photographs may reflect modified home
Sq Ft
2,055 FT²
Beds
3
Baths
2
Stories
1.5
Garage
2
Depth
54' 4"
Width
69' 8"
 
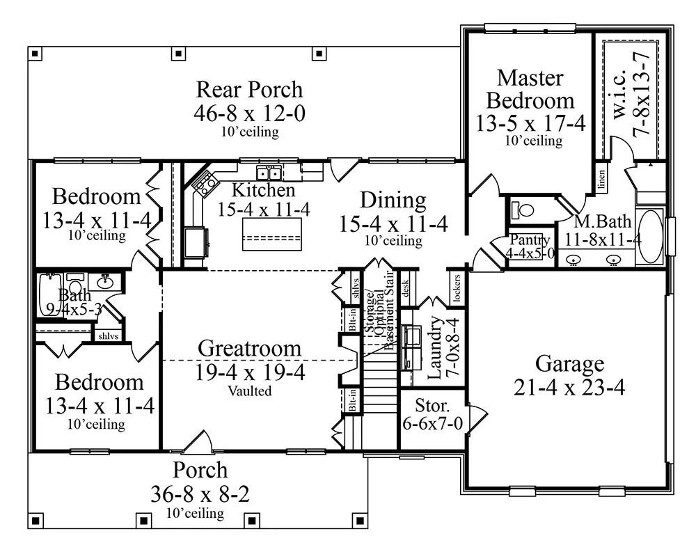
Click to Zoom In on Floor Plan
© copyright by designer
 
 

About This Plan

Introducing the Carson House Plan, which was inspired from one of our most popular plans. Beginning with the popular Sutherlin plan and incorporating the request from homeowners and builders, we have come up with this 2,000 square foot plan that includes additional amenities. These include an optional bonus room upstairs, a catch all space just inside the garage door that includes a desk and lockers, a walk-in pantry and a luxury master bath with an enormous walk-in closet. 

See All Plan Options
 

FEATURES & DETAILS

Kitchen features
Country Kitchen
Kitchen Island
Nook / Breakfast Area
Peninsula / Eating Bar
Walk-in Pantry
Bedroom features
Double Vanity Sink
Primary Bdrm Main Floor
Separate Tub and Shower
Split Bedrooms
Walk-in Closet
Exterior features
Covered Front Porch
Covered Rear Porch
Front Porch
Rear Porch
Foundation Options
Basement
Crawlspace
Slab
Lot Options
Suited for corner lot
Suited for view lot
Additional features
Bonus Room
Fireplace
Great Room
Home Office
Laundry 1st Fl
Mud Room
Open Floor Plan
Storage Space
Unfinished Space
Vaulted Ceilings
Garage Location
Side
Garage Options
Attached
Side-entry
2,055 Ft
2
Total Heated
2,055 Ft
2
1st Floor
3
Bedrooms
2
Bathrooms
2
Garage
1.5
Stories
69' 8"
Width
54' 4"
Depth
26' 8"
Height
10' 0"
Main Floor Ceiling
9' 0"
Upper Floor Ceiling
2x4
Framing
Stick
Roof Framing
10/12
Primary Roof Pitch
Single
Dwelling Number
1st Floor
Bonus Access

Unheated Living Space
539 Ft
2
Garage
54 Ft
2
Storage
812 Ft
2
Porch
577 Ft
2
Bonus Room
 

Plan Package Options

 Select Plan Package
  Select Foundation Option
  Add-Ons (Optional)
INCLUDED WITH YOUR PURCHASE

Free Ground shipping in the U.S.

FREE

Home Building & Product Ideas Organizer

Sub Total
$0
Free Shipping
QUESTIONS OR NEED HELP ORDERING? LIVE CHAT OR CALL US AT 866-214-2242
Plan Packages

Each set of construction documents typically includes detailed, dimensioned floor plans, basic electric layouts, cross sections, roof details, cabinet layouts, and elevations, as well as general IRC specifications. Please refer to the ARCHITECT or DESIGNER’S PLAN DETAILS link above the floor plan on any plan page to determine the specific details for each plan. Our house plans contain virtually all of the information required to construct your home. The typical plan set does not include plumbing, HVAC drawings, or engineering stamps due to the wide variety of specific needs, local codes, and climatic conditions. These details and specifications are easily obtained from your builder, contractors, and/or local engineers.

BEST PRICE GUARANTEE

Find the same house plan (modifications included!) and package for less on another site, show us the URL and we'll give you the difference plus an additional 10% back.

100% SATISFACTION GUARANTEE

We offer a one-time, 30-day exchange policy for unused, printed plan packages in the event you aren't satisfied with your first selection.

 
 

Plan 9787  Back to plan page

Loading...