Get discounts,
promos, see our
newest plans
and more!
+ 15% off any plan
See terms opt out anytime


No Thanks

Thanks for
signing up!


Use Code:

SIGNUP15

And save 15% off any plan!

Check your email for details.

CLOSE
Search Plans
     
20% Off House Plans Sitewide Ends Tuesday
20% Off House Plans Sitewide Ends Tuesday
20% Off House Plans Sitewide Ends Tuesday

Code: VET20
Sale ends midnight 11/11/2025 PST

Cardigan Charming Craftsman Style House, Plan 4517

 
 

Sq Ft
4,629 FT²

Beds
4

Baths
3.5

Stories
2

Garage
3

Depth
72' 5"

Width
114' 8"
On Sale
$2,107.20
$2,634.00
© copyright by designer
 View All 4 Images | Photographs may reflect modified home
Sq Ft
4,629 FT²
Beds
4
Baths
3.5
Stories
2
Garage
3
Depth
72' 5"
Width
114' 8"
 
Click to Zoom In on Floor Plan
© copyright by designer
 
 

About This Plan

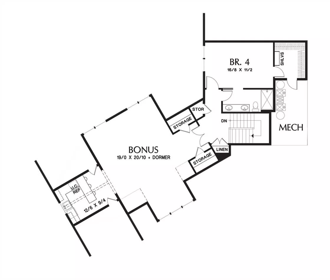
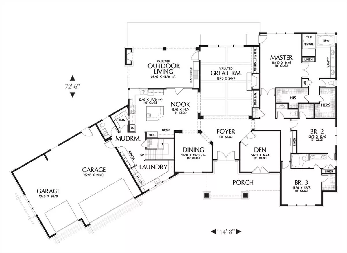
Tapered columns and stone accents dress up this Craftsman-style house plan, with a luxury 4,629 square feet of living space, along with four bedrooms, three full baths and two half-baths. A cathedral ceiling presides over the sizable great room in this home plan, where a fire crackles in the fireplace. You'll love the island kitchen, with its menu desk and pantry. Enjoy formal meals in the dining room, and casual meals in the bright nook. Consider al fresco dining in the vaulted outdoor living area. Beyond double doors, the luxurious master bedroom features direct access to the outdoors. In the personal bath, you'll find a garden spa tub, a tile shower and two sinks. Two walk-in closets keep your clothes organized. Two additional bedrooms share a split bath. On the second level of this home design, a fourth bedroom features a walk-in closet and easy bath access. A large bonus room would make a nice apartment or hobby area. Back on the main level, builders point out the versatile den or study. 

See All Plan Options
 

FEATURES & DETAILS

Kitchen features
Country Kitchen
Kitchen Island
Nook / Breakfast Area
Walk-in Pantry
Bedroom features
Double Vanity Sink
Guest Suite
His and Hers Primary Closets
Primary Bdrm Main Floor
Separate Tub and Shower
Walk-in Closet
Exterior features
Covered Rear Porch
Front Porch
Foundation Options
Basement
Crawlspace
Slab
Lot Options
Suited for sloping lot
Additional features
Bonus Room
Dining Room
Fireplace
Foyer
Great Room
Home Office
Laundry 1st Fl
Mud Room
Open Floor Plan
Storage Space
Vaulted Ceilings
Garage Location
Front
Garage Options
Attached
Front-entry
4,629 Ft
2
Total Heated
3,416 Ft
2
1st Floor
1,213 Ft
2
2nd Floor
4
Bedrooms
3.5
Bathrooms
3
Garage
2
Stories
114' 8"
Width
72' 5"
Depth
29' 10"
Height
Varies' 0"
Main Floor Ceiling
8'' 0"
Upper Floor Ceiling
2x6
Framing
Truss
Roof Framing
10/12
Primary Roof Pitch
4/12
Dormer Roof Pitch
Single
Dwelling Number
2nd Floor
Bonus Access

Unheated Living Space
1,026 Ft
2
Garage
225 Ft
2
Porch
356 Ft
2
Patio
 

Plan Package Options

 Select Plan Package
Sale: $2,107
PDF Single Build
$2,634

Digital plans emailed to you in PDF format that allows for printing copies and sharing electronically with contractors, subs, decorators, and more. This package includes a license to build the home one time.

Sale: $2,107
Sale: $2,347
5 Printed Sets + PDF
$2,934

Digital plan emailed to you in PDF format that allows for printing copies on a home printer or local print shop and sharing with contractors, subs, decorators, and more. PLUS five printed sets shipped and delivered 3-5 business days.

Sale: $2,347
Sale: $4,214
CAD + PDF Single Build
$5,268

CAD files are a complete set of construction drawings delivered electronically. They can be used for any type of modification—including major design changes and engineering—and include a release granting permission to modify the plan. Most CAD plan orders are emailed the same or next business day.
 
This package also comes with a PDF set of plans and a copyright release for making modifications and printing unlimited copies.
 
CAD files are provided in .dwg format. For details on the specific CAD program used, please refer to the PLAN DETAILS section located above the floor plan on each plan’s page.

Sale: $4,214
 Need To Reverse Plan? (Optional)
$250
Readable Reverse

Reverse house plans with readable text and dimensions 

$250
  Select Foundation Option
  Add-Ons (Optional)
INCLUDED WITH YOUR PURCHASE

Free Ground shipping in the Continental U.S.

FREE

Design consultation with the architect or designer to discuss your plan

Home Building & Product Ideas Organizer

Sub Total
$0
Free Shipping
QUESTIONS OR NEED HELP ORDERING? LIVE CHAT OR CALL US AT 866-214-2242
Plan Packages

Each set of construction documents includes detailed, dimensioned floor plans, basic electric layouts, cross sections, roof details, cabinet layouts and elevations, as well as general IRC specifications. They contain virtually all of the information required to construct your home. The typical plan set does not include any plumbing, HVAC drawings, or engineering stamps due to the wide variety of specific needs, local codes, and climatic conditions. These details and specifications are easily obtained from your builder, contractors, and/or local engineers.

BEST PRICE GUARANTEE

find the same house plan (modifications included!) and package for less on another site, show us the URL and we'll give you the difference plus an additional 5% back.

100% SATISFACTION GUARANTEE

We offer a one-time, 30-day exchange policy for unused, non-electronic plan packages in the event you aren't satisfied with your first selection.

 
 

Plan 4517  Back to plan page

Loading...