Get discounts,
promos, see our
newest plans
and more!
+ 15% off any plan
See terms opt out anytime


No Thanks

Thanks for
signing up!


Use Code:

SIGNUP15

And save 15% off any plan!

Check your email for details.

CLOSE
Search Plans
Customer Reviews
     
22% Off House Plans Sitewide Ends Friday

Code: SAVE22
Sale ends midnight 12/5/2025 PST

Sq Ft
2,581 FT²

Beds
4

Baths
2.5

Stories
2

Garage
2

Depth
40' 8"

Width
45' 4"
From
$1,155.00
EXCLUSIVE PLAN
© copyright by architect
 View All 6 Images | Photographs may reflect modified home
Sq Ft
2,581 FT²
Beds
4
Baths
2.5
Stories
2
Garage
2
Depth
40' 8"
Width
45' 4"
 
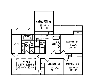
Click to Zoom In on Floor Plan
© copyright by architect
 
 

About This Plan

Beautiful copper-hooded windows, a distinctive covered entry and a stately brick facade give this eye-catching 45 ft. wide home its timeless appeal. The formal areas are situated near the front of the home. The sunken living room is brightened by a boxed-out window, and the bayed dining room lends elegance to any feast. A fireplace and a central skylight illuminate the family room, making this a space to which your loved ones will flock. 

See All Plan Options
 

FEATURES & DETAILS

Kitchen features
Butler's Pantry
Nook / Breakfast Area
Bedroom features
Double Vanity Sink
His and Hers Primary Closets
Primary Bdrm Upstairs
Separate Tub and Shower
Exterior features
Covered Front Porch
Foundation Options
Basement
Lot Options
Suited for corner lot
Suited for narrow lot
Additional features
Dining Room
Family Room
Fireplace
Formal LR
Foyer
Laundry 1st Fl
Mud Room
Rec Room
Unfinished Space
Garage Location
Side
Garage Options
Attached
2,581 Ft
2
Total Heated
1,403 Ft
2
1st Floor
1,178 Ft
2
2nd Floor
4
Bedrooms
2.5
Bathrooms
2
Garage
2
Stories
45' 4"
Width
40' 8"
Depth
27' 8"
Height
8'-1"' 0"
Main Floor Ceiling
8'-1"' 0"
Upper Floor Ceiling
2x4
Framing
Stick
Roof Framing
5-1/2: 12
Primary Roof Pitch
Single
Dwelling Number

Unheated Living Space
379 Ft
2
Garage
186 Ft
2
Bonus Room
 

Plan Package Options

 Select Plan Package
$875
PDF Bid Set
PDFs NOW!™

Home plans stamped "NOT FOR CONSTRUCTION" for cost estimating and bidding purposes only; a minimum 5 set plan package must be purchased within 90 days for a license to build plan set; a credit will be applied towards your house plan upgrade

$875
$1,155
PDF Single Build
PDFs NOW!™

Digital plans emailed to you in PDF format that allows for printing copies and sharing electronically with contractors, subs, decorators, and more. This package includes a license to build the home one time.

$1,155
$1,265
5 Printed Sets

Five Printed Sets of Residential Construction Drawings are typically 24” x 36” documents and come with a license to construct a single residence shipped to a physical address. Keep in mind PDF Plan Packages are our most popular choice which allows you to print as many copies as you need and to electronically send files to your builder, subcontractors, etc.

$1,265
$1,340
8 Printed Sets

Eight Printed Sets of Construction Drawings, typically 24” x 36” documents, with a license to construct a single residence shipped to your physical address. PDF Plan Packages are our most popular choice which allows you to print as many copies as you need and to electronically send files to your builder, subcontractors, bank/mortgage reps, material stores, decorators and more.

$1,340
  Select Foundation Option
  Add-Ons (Optional)
INCLUDED WITH YOUR PURCHASE

Free Ground shipping in the Continental U.S.

FREE

Design consultation with the architect or designer to discuss your plan

Home Building & Product Ideas Organizer

Sub Total
$0
Free Shipping
QUESTIONS OR NEED HELP ORDERING? LIVE CHAT OR CALL US AT 866-214-2242
Plan Packages

Each set of construction documents includes detailed, dimensioned floor plans, basic electric layouts, cross sections, roof details, cabinet layouts and elevations, as well as general IRC specifications. They contain virtually all of the information required to construct your home. The typical plan set does not include any plumbing, HVAC drawings, or engineering stamps due to the wide variety of specific needs, local codes, and climatic conditions. These details and specifications are easily obtained from your builder, contractors, and/or local engineers.

BEST PRICE GUARANTEE

find the same house plan (modifications included!) and package for less on another site, show us the URL and we'll give you the difference plus an additional 5% back.

100% SATISFACTION GUARANTEE

We offer a one-time, 30-day exchange policy for unused, non-electronic plan packages in the event you aren't satisfied with your first selection.

 
 

Plan 3720  Back to plan page

Loading...