Get discounts,
promos, see our
newest plans
and more!
+ 15% off any plan
See terms opt out anytime


No Thanks

Thanks for
signing up!


Use Code:

SIGNUP15

And save 15% off any plan!

Check your email for details.

CLOSE
Search Plans
Customer Reviews
     
15% off ALL House Plans Sitewide
15% off ALL House Plans Sitewide
15% off ALL House Plans Sitewide

Code: HONOR
Sale ends midnight 5/31/2026 PST

Sq Ft
2,929 FT²

Beds
4

Baths
4

Stories
1

Garage
3

Depth
75'

Width
64'
On Sale
$947.75
$1,115.00
© copyright by designer
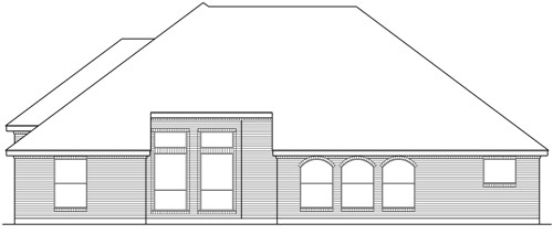
 View All 6 Images | Photographs may reflect modified home
Sq Ft
2,929 FT²
Beds
4
Baths
4
Stories
1
Garage
3
Depth
75'
Width
64'
 
Click to Zoom In on Floor Plan
© copyright by designer
 
 

About This Plan

This luxury house plan brings your dreams to your doorstep. A quiet study with full bath access sits quietly off the foyer. The formal dining room provides large decorative pillars defining the perimeter of the dining room and gallery. Two family bedrooms with ample closets share a Jack and Jill bath. The family room is open to the breakfast area and kitchen and offers built-ins, a fireplace and large windows to allow the sun to shine through. The gourmet kitchen provides a free-standing island and breakfast bar. Another family bedroom with large closet and nearby full bath is situated on the other side of the kitchen. The luxurious master suite boasts a tray ceiling, plus a lavish vaulted master bath with his and hers vanities, separate shower, tub, and large wardrobe. A three-car side-entry garage completes this luxury house plan. 

See All Plan Options
 

FEATURES & DETAILS

Kitchen features
Country Kitchen
Kitchen Island
Nook / Breakfast Area
Bedroom features
Double Vanity Sink
Separate Tub and Shower
Exterior features
Front Porch
Rear Porch
Foundation Options
Slab
Additional features
Dining Room
Family Room
Fireplace
Formal LR
Foyer
Home Office
Laundry 1st Fl
Open Floor Plan
Garage Location
Front
Garage Options
Attached
Side-entry
3,782 Ft
2
Total Structure
2,929 Ft
2
Total Heated
2,929 Ft
2
1st Floor
4
Bedrooms
4
Bathrooms
3
Garage
1
Stories
64' 0"
Width
75' 0"
Depth
28' 0"
Height
9' 0"
Main Floor Ceiling
2x4
Framing
Stick
Roof Framing
Single
Dwelling Number

Unheated Living Space
720 Ft
2
Garage
79 Ft
2
Porch
54 Ft
2
Patio
 

Plan Package Options

 Select Plan Package
 Need To Reverse Plan? (Optional)
  Select Foundation Option
  Add-Ons (Optional)
INCLUDED WITH YOUR PURCHASE

Free Ground shipping in the U.S.

FREE

Home Building & Product Ideas Organizer

Sub Total
$0
Free Shipping
QUESTIONS OR NEED HELP ORDERING? LIVE CHAT OR CALL US AT 866-214-2242
Plan Packages

Each set of construction documents typically includes detailed, dimensioned floor plans, basic electric layouts, cross sections, roof details, cabinet layouts, and elevations, as well as general IRC specifications. Please refer to the ARCHITECT or DESIGNER’S PLAN DETAILS link above the floor plan on any plan page to determine the specific details for each plan. Our house plans contain virtually all of the information required to construct your home. The typical plan set does not include plumbing, HVAC drawings, or engineering stamps due to the wide variety of specific needs, local codes, and climatic conditions. These details and specifications are easily obtained from your builder, contractors, and/or local engineers.

BEST PRICE GUARANTEE

Find the same house plan (modifications included!) and package for less on another site, show us the URL and we'll give you the difference plus an additional 10% back.

100% SATISFACTION GUARANTEE

We offer a one-time, 30-day exchange policy for unused, printed plan packages in the event you aren't satisfied with your first selection.

 
 

Plan 4893  Back to plan page

Loading...