Get discounts,
promos, see our
newest plans
and more!
+ 15% off any plan
See terms opt out anytime


No Thanks

Thanks for
signing up!


Use Code:

SIGNUP15

And save 15% off any plan!

Check your email for details.

CLOSE
Search Plans
     

Sq Ft
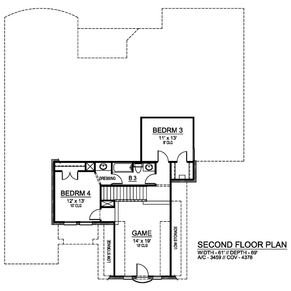
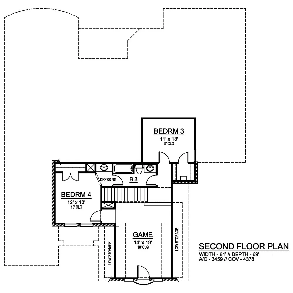
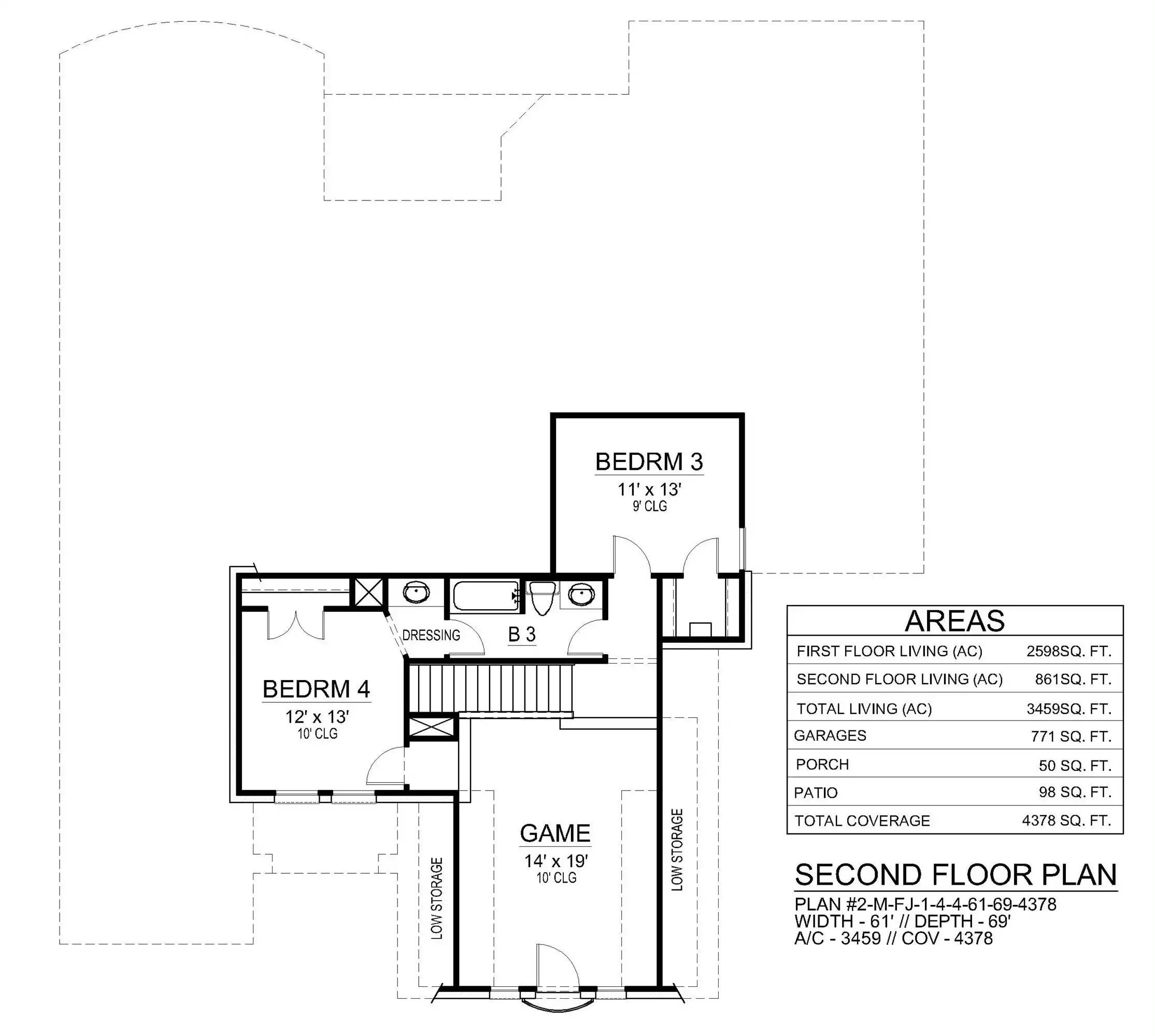
3,459 FT²

Beds
4

Baths
3.5

Stories
2

Garage
3

Depth
69'

Width
61'
From
$1,200.00
© copyright by designer
 View All 13 Images | Photographs may reflect modified home
Sq Ft
3,459 FT²
Beds
4
Baths
3.5
Stories
2
Garage
3
Depth
69'
Width
61'
 
Click to Zoom In on Floor Plan
© copyright by designer
 
 

About This Plan

You'll love this two-story luxury house plan, when you enter the foyer you can see all the way to the patio through the family and dining room. The Study accompanies these rooms and is located to the left of the foyer. To the left of the family room is the Master Suite, which has 12' high trey ceilings and a luxurious master bath that features a spacious wardrobe, a garden tub, a separate shower and his and hers vanities. The kitchen opens to the family room and breakfast nook, separated only by the breakfast bar. The kitchen has easy access to the dining room through the butlery, perfect for serving dinner for family and friends. The family bedroom just off of the breakfast nook would make a perfect in-law suite, guest room or teen suite that is complete with access to a one-car garage. On the second floor is two family bedrooms and the sizable game room, they all share one full bathroom, completing this luxury home. 

See All Plan Options
 

FEATURES & DETAILS

Kitchen features
Butler's Pantry
Kitchen Island
Nook / Breakfast Area
Peninsula / Eating Bar
Bedroom features
Double Vanity Sink
Primary Bdrm Main Floor
Separate Tub and Shower
Split Bedrooms
Walk-in Closet
Exterior features
Covered Front Porch
Covered Rear Porch
Foundation Options
Slab
Additional features
Dining Room
Family Room
Fireplace
Foyer
Home Office
Laundry 1st Fl
Library/Media Rm
Garage Location
Front
Garage Options
Attached
Front-entry
Side-entry
4,378 Ft
2
Total Structure
3,459 Ft
2
Total Heated
2,598 Ft
2
1st Floor
861 Ft
2
2nd Floor
4
Bedrooms
3.5
Bathrooms
3
Garage
2
Stories
61' 0"
Width
69' 0"
Depth
33' 0"
Height
10' 0"
Main Floor Ceiling
9' 0"
Upper Floor Ceiling
2x4
Framing
Stick
Roof Framing
9
Primary Roof Pitch
Single
Dwelling Number

Unheated Living Space
771 Ft
2
Garage
 

Plan Package Options

 Select Plan Package
$1,200
PDF Single Build

Digital plans emailed to you in PDF format that allows for printing copies and sharing electronically with contractors, subs, decorators, and more. This package includes a license to build the home one time.

$1,200
$1,800
5 Printed Sets

Five Printed Sets of Residential Construction Drawings are typically 24” x 36” documents and come with a license to construct a single residence shipped to a physical address. Keep in mind PDF Plan Packages are our most popular choice which allows you to print as many copies as you need and to electronically send files to your builder, subcontractors, etc.

$1,800
$1,800
CAD + PDF Single Build

CAD files are a complete set of construction drawings delivered electronically. They can be used for any type of modification—including major design changes and engineering—and include a release granting permission to modify the plan. Most CAD plan orders are emailed the same or next business day.
 
This package also comes with a PDF set of plans and a copyright release for making modifications and printing unlimited copies.
 
CAD files are provided in .dwg format. For details on the specific CAD program used, please refer to the PLAN DETAILS section located above the floor plan on each plan’s page.

$1,800
 Need To Reverse Plan? (Optional)
$200
Readable Reverse

Reverse house plans with readable text and dimensions 

$200
  Select Foundation Option
  Add-Ons (Optional)
INCLUDED WITH YOUR PURCHASE

Free Ground shipping in the Continental U.S.

FREE

Design consultation with the architect or designer to discuss your plan

Home Building & Product Ideas Organizer

Sub Total
$0
Free Shipping
QUESTIONS OR NEED HELP ORDERING? LIVE CHAT OR CALL US AT 866-214-2242
Plan Packages

Each set of construction documents includes detailed, dimensioned floor plans, basic electric layouts, cross sections, roof details, cabinet layouts and elevations, as well as general IRC specifications. They contain virtually all of the information required to construct your home. The typical plan set does not include any plumbing, HVAC drawings, or engineering stamps due to the wide variety of specific needs, local codes, and climatic conditions. These details and specifications are easily obtained from your builder, contractors, and/or local engineers.

BEST PRICE GUARANTEE

find the same house plan (modifications included!) and package for less on another site, show us the URL and we'll give you the difference plus an additional 5% back.

100% SATISFACTION GUARANTEE

We offer a one-time, 30-day exchange policy for unused, non-electronic plan packages in the event you aren't satisfied with your first selection.

 
 

Plan 6820  Back to plan page

Loading...