Get discounts,
promos, see our
newest plans
and more!
+ 15% off any plan
See terms opt out anytime


No Thanks

Thanks for
signing up!


Use Code:

SIGNUP15

And save 15% off any plan!

Check your email for details.

CLOSE
Search Plans
Customer Reviews
     
15% off ALL House Plans Sitewide
15% off ALL House Plans Sitewide
15% off ALL House Plans Sitewide

Code: SAVE15
Sale ends midnight 4/22/2026 PST

Sq Ft
3,189 FT²

Beds
4

Baths
4.5

Stories
1.5

Garage
3

Depth
53' 8"

Width
69' 2"
On Sale
$1,024.25
$1,205.00
EXCLUSIVE PLAN
© copyright by architect
 View All 5 Images | Photographs may reflect modified home
Sq Ft
3,189 FT²
Beds
4
Baths
4.5
Stories
1.5
Garage
3
Depth
53' 8"
Width
69' 2"
 
Click to Zoom In on Floor Plan
© copyright by architect
 
 

About This Plan

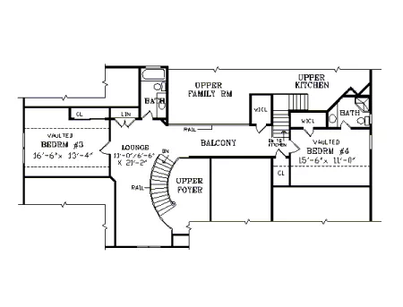
A nostalgic front porch and double doors with gorgeous glass inlays decorate the facade of this luxurious traditionally styled home. The two-story foyer beyond is graced by an elegant curved staircase.

Directly ahead, the spacious family room boasts a rustic fireplace and a soaring 19-ft. vaulted ceiling with two skylights. An open wet bar enhances one corner of the room.

Visible over a half-wall, the island kitchen and the cozy breakfast nook share a 16-ft., 9-in. vaulted ceiling with twin skylights. A stairway provides a second route to the upper level.

Around the corner, a handy serving shelf helps cater to the formal dining room, which sports a 9-ft. tray ceiling.

Across the foyer, the sunken living room is set off with a decorative half-wall and wood columns. Across the hall, the library has its own bath and may 

See All Plan Options
 

FEATURES & DETAILS

Kitchen features
Country Kitchen
Kitchen Island
Nook / Breakfast Area
Bedroom features
Double Vanity Sink
Guest Suite
His and Hers Primary Closets
Primary Bdrm Main Floor
Separate Tub and Shower
Exterior features
Covered Front Porch
Foundation Options
Basement
Crawlspace
Additional features
2 Story Volume
Dining Room
Family Room
Formal LR
In-law Suite
Laundry 1st Fl
Library/Media Rm
Loft / Balcony
Vaulted Ceilings
Garage Location
Side
Garage Options
Attached
3,189 Ft
2
Total Heated
2,195 Ft
2
1st Floor
984 Ft
2
2nd Floor
4
Bedrooms
4.5
Bathrooms
3
Garage
1.5
Stories
69' 2"
Width
53' 8"
Depth
23' 6"
Height
8'-1"' 0"
Main Floor Ceiling
8'-1"' 0"
Upper Floor Ceiling
2x4
Framing
Stick
Roof Framing
12/12
Primary Roof Pitch
Single
Dwelling Number

Unheated Living Space
630 Ft
2
Garage
 

Plan Package Options

 Select Plan Package
  Select Foundation Option
  Add-Ons (Optional)
INCLUDED WITH YOUR PURCHASE

Free Ground shipping in the U.S.

FREE

Home Building & Product Ideas Organizer

Sub Total
$0
Free Shipping
QUESTIONS OR NEED HELP ORDERING? LIVE CHAT OR CALL US AT 866-214-2242
Plan Packages

Each set of construction documents typically includes detailed, dimensioned floor plans, basic electric layouts, cross sections, roof details, cabinet layouts, and elevations, as well as general IRC specifications. Please refer to the ARCHITECT or DESIGNER’S PLAN DETAILS link above the floor plan on any plan page to determine the specific details for each plan. Our house plans contain virtually all of the information required to construct your home. The typical plan set does not include plumbing, HVAC drawings, or engineering stamps due to the wide variety of specific needs, local codes, and climatic conditions. These details and specifications are easily obtained from your builder, contractors, and/or local engineers.

BEST PRICE GUARANTEE

Find the same house plan (modifications included!) and package for less on another site, show us the URL and we'll give you the difference plus an additional 10% back.

100% SATISFACTION GUARANTEE

We offer a one-time, 30-day exchange policy for unused, printed plan packages in the event you aren't satisfied with your first selection.

 
 

Plan 3718  Back to plan page

Loading...