Get discounts,
promos, see our
newest plans
and more!
+ 15% off any plan
See terms opt out anytime


No Thanks

Thanks for
signing up!


Use Code:

SIGNUP15

And save 15% off any plan!

Check your email for details.

CLOSE
Search Plans
Customer Reviews
     
22% Off House Plans Sitewide Ends Sunday

Code: SAVE22
Sale ends midnight 12/7/2025 PST

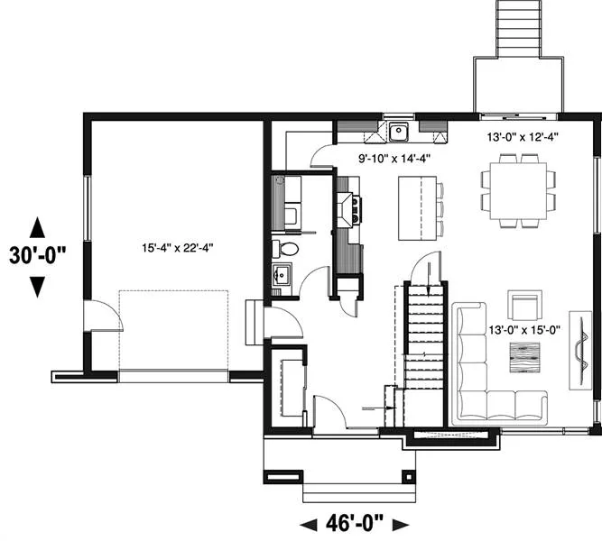
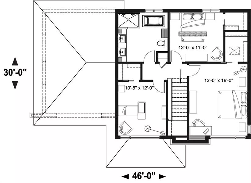
Bellechasse 2 5 Bedroom Modern Style House, Plan 5312

 
 

Sq Ft
2,614 FT²

Beds
5

Baths
2.5

Stories
2

Garage
1

Depth
30'

Width
46'
From
$1,970.00
© copyright by designer
 View All 5 Images | Photographs may reflect modified home
Sq Ft
2,614 FT²
Beds
5
Baths
2.5
Stories
2
Garage
1
Depth
30'
Width
46'
 
Click to Zoom In on Floor Plan
© copyright by designer
 
 

About This Plan

Modern floor plan with 2,614 square feet, 3 to 5 bedrooms, and an open floor concept. The living room is a spacious location for all of your family gatherings. There are many contemporary commodities such as laundry room on main floor, pantry, kitchen island, finished daylight basement with extra bedroom and family or media room, and much more! 

See All Plan Options
 

FEATURES & DETAILS

Kitchen features
Kitchen Island
Walk-in Pantry
Bedroom features
His and Hers Primary Closets
Primary Bdrm Upstairs
Nursery Room
Walk-in Closet
Exterior features
Covered Front Porch
Deck
Foundation Options
Basement
Crawlspace
Daylight Basement
Slab
Additional features
Dining Room
Family Room
Formal LR
Foyer
Great Room
Laundry 1st Fl
Mud Room
Garage Options
Attached
2,614 Ft
2
Total Heated
875 Ft
2
1st Floor
875 Ft
2
2nd Floor
875 Ft
2
Lower Floor
5
Bedrooms
2.5
Bathrooms
1
Garage
2
Stories
46' 0"
Width
30' 0"
Depth
25' 11"
Height
8' 0"
Main Floor Ceiling
8' 0"
Upper Floor Ceiling
2x6
Framing
Truss
Roof Framing
Single
Dwelling Number

Unheated Living Space
384 Ft
2
Garage
47 Ft
2
Patio
 

Plan Package Options

 Select Plan Package
$1,970
PDF Single Build

Digital plans emailed to you in PDF format that allows for printing copies and sharing electronically with contractors, subs, decorators, and more. This package includes a license to build the home one time.

$1,970
$2,110
3 sets + PDF
Please allow 3-5 days for delivery
$2,110
$2,970
CAD + PDF Single Build

CAD files are a complete set of construction drawings delivered electronically. They can be used for any type of modification—including major design changes and engineering—and include a release granting permission to modify the plan. Most CAD plan orders are emailed the same or next business day.
 
This package also comes with a PDF set of plans and a copyright release for making modifications and printing unlimited copies.
 
CAD files are provided in .dwg format. For details on the specific CAD program used, please refer to the PLAN DETAILS section located above the floor plan on each plan’s page.

$2,970
 Need To Reverse Plan? (Optional)
$265
Readable Reverse

Reverse house plans with readable text and dimensions 

$265
  Select Foundation Option
  Add-Ons (Optional)
INCLUDED WITH YOUR PURCHASE

Free Ground shipping in the Continental U.S.

FREE

Design consultation with the architect or designer to discuss your plan

Home Building & Product Ideas Organizer

Sub Total
$0
Free Shipping
Please allow 3-5 business days for delivery of this plan Please check our PDFs NOW collection for plans that can be downloaded and received immediately or live chat us to help you find a similar plan available now.
QUESTIONS OR NEED HELP ORDERING? LIVE CHAT OR CALL US AT 866-214-2242
Plan Packages

Each set of construction documents includes detailed, dimensioned floor plans, basic electric layouts, cross sections, roof details, cabinet layouts and elevations, as well as general IRC specifications. They contain virtually all of the information required to construct your home. The typical plan set does not include any plumbing, HVAC drawings, or engineering stamps due to the wide variety of specific needs, local codes, and climatic conditions. These details and specifications are easily obtained from your builder, contractors, and/or local engineers.

BEST PRICE GUARANTEE

find the same house plan (modifications included!) and package for less on another site, show us the URL and we'll give you the difference plus an additional 5% back.

100% SATISFACTION GUARANTEE

We offer a one-time, 30-day exchange policy for unused, non-electronic plan packages in the event you aren't satisfied with your first selection.

 
 

Plan 5312  Back to plan page

Loading...