Get discounts,
promos, see our
newest plans
and more!
+ 15% off any plan
See terms opt out anytime


No Thanks

Thanks for
signing up!


Use Code:

SIGNUP15

And save 15% off any plan!

Check your email for details.

CLOSE
Search Plans
Customer Reviews
     
America’s Top Home Plans
Trusted House Plans From America's Leading Architects & Designers

Aniston II 3 Bedroom Contemporary Style House, Plan 3307

 
 

Sq Ft
1,852 FT²

Beds
3

Baths
1.5

Stories
2

Garage
1

Depth
36'

Width
42'
From
$1,655.00
© copyright by designer
 View All 13 Images | Photographs may reflect modified home
Sq Ft
1,852 FT²
Beds
3
Baths
1.5
Stories
2
Garage
1
Depth
36'
Width
42'
 
Click to Zoom In on Floor Plan
© copyright by designer
 
 

About This Plan

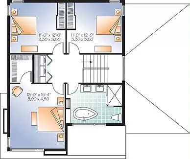
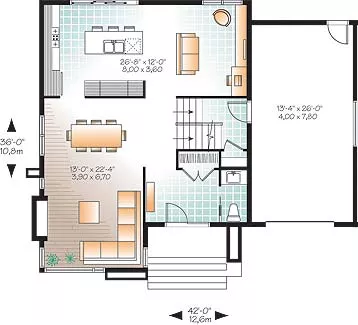
A modifiable work of modern architecture, this stunning contemporary style plan utilizes strong contrasts and sharp geometric lines to provide a home like no other. Once inside past the covered front porch and deep attached garage, this 1,852 square foot home offers modern amenities at every turn. 3 bedrooms and 1.5 bathrooms offer plenty of living space for a family, while features such as the large open kitchen and open living room and dining room, enhance the experience of this home. A secondary seating area as well as an office nook attached to the kitchen makes it easy to supervise homework or school projects while cooking dinner for the family. The second level of this plan houses all 3 bedrooms as well as a shared full bathroom. Second-floor laundry makes chores easy and convenient, while spacious walk-in closets ensure ample storage throughout the home.  Stunning windows are found on virtually every wall of this home, creating an array of views and natural lighting that highlights the modern masterpiece that is this plan. 

See All Plan Options
 

FEATURES & DETAILS

Kitchen features
Country Kitchen
Kitchen Island
Bedroom features
Double Vanity Sink
Separate Tub and Shower
Sitting Area
Exterior features
Covered Front Porch
Foundation Options
Basement
Crawlspace
Daylight Basement
Additional features
Family Room
Garage Location
Side
1,852 Ft
2
Total Heated
926 Ft
2
1st Floor
926 Ft
2
2nd Floor
3
Bedrooms
1.5
Bathrooms
1
Garage
2
Stories
42' 0"
Width
36' 0"
Depth
26' 7"
Height
9' 0"
Main Floor Ceiling
8' 0"
Upper Floor Ceiling
2x6
Framing
Truss
Roof Framing
4/12
Primary Roof Pitch
Single
Dwelling Number
None
Bonus Access

Unheated Living Space
383 Ft
2
Garage
 

Plan Package Options

 Select Plan Package
 Need To Reverse Plan? (Optional)
  Select Foundation Option
  Add-Ons (Optional)
INCLUDED WITH YOUR PURCHASE

Free Ground shipping in the U.S.

FREE

Home Building & Product Ideas Organizer

Sub Total
$0
Free Shipping
Please allow 3-5 business days for delivery of this plan Please check our PDFs NOW collection for plans that can be downloaded and received immediately or live chat us to help you find a similar plan available now.
QUESTIONS OR NEED HELP ORDERING? LIVE CHAT OR CALL US AT 866-214-2242
Plan Packages

Each set of construction documents typically includes detailed, dimensioned floor plans, basic electric layouts, cross sections, roof details, cabinet layouts, and elevations, as well as general IRC specifications. Please refer to the ARCHITECT or DESIGNER’S PLAN DETAILS link above the floor plan on any plan page to determine the specific details for each plan. Our house plans contain virtually all of the information required to construct your home. The typical plan set does not include plumbing, HVAC drawings, or engineering stamps due to the wide variety of specific needs, local codes, and climatic conditions. These details and specifications are easily obtained from your builder, contractors, and/or local engineers.

BEST PRICE GUARANTEE

Find the same house plan (modifications included!) and package for less on another site, show us the URL and we'll give you the difference plus an additional 10% back.

100% SATISFACTION GUARANTEE

We offer a one-time, 30-day exchange policy for unused, printed plan packages in the event you aren't satisfied with your first selection.

 
 

Plan 3307  Back to plan page

Loading...