Get discounts,
promos, see our
newest plans
and more!
+ 15% off any plan
See terms opt out anytime


No Thanks

Thanks for
signing up!


Use Code:

SIGNUP15

And save 15% off any plan!

Check your email for details.

CLOSE
Search Plans
     
20% Off House Plans Sitewide Ends Tuesday
20% Off House Plans Sitewide Ends Tuesday
20% Off House Plans Sitewide Ends Tuesday

Code: VET20
Sale ends midnight 11/11/2025 PST

Sq Ft
1,854 FT²

Beds
3

Baths
2.5

Stories
2

Garage
2

Depth
40'

Width
46'
On Sale
$1,324.00
$1,655.00
© copyright by designer
 View All 4 Images | Photographs may reflect modified home
Sq Ft
1,854 FT²
Beds
3
Baths
2.5
Stories
2
Garage
2
Depth
40'
Width
46'
 
Click to Zoom In on Floor Plan
© copyright by designer
 
 

About This Plan

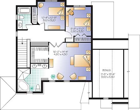
Inspired by east-coast traditional homes, this two-story haven has room for all! A large, covered porch ensures a welcoming entrance. The presence of the garage is concealed by forward-facing windows and gable detail, and discreet side doors. On the main level, we find a spacious living room. The eye is drawn beyond to the dining room with triple garden doors. The kitchen is positioned to easily liaise with either space. Also located on the main level are a half-bath and laundry room. On the upper level, we find the master retreat, complete with spacious master bath and walk-in closet. In addition, we find two secondary bedrooms and a hall bath. A bonus room above the garage gives plenty of storage space. 

See All Plan Options
 

FEATURES & DETAILS

Kitchen features
Country Kitchen
Kitchen Island
Peninsula / Eating Bar
Bedroom features
Double Vanity Sink
Guest Suite
Primary Bdrm Upstairs
Separate Tub and Shower
Sitting Area
Walk-in Closet
Exterior features
Covered Front Porch
Covered Rear Porch
Front Porch
Rear Porch
Wraparound Porch
Foundation Options
Basement
Daylight Basement
Lot Options
Suited for corner lot
Suited for narrow lot
Additional features
Bonus Room
Dining Room
Fireplace
Formal LR
Foyer
Great Room
Home Office
Laundry 1st Fl
Open Floor Plan
Storage Space
Unfinished Space
Garage Location
Side
Garage Options
Attached
Side-entry
1,854 Ft
2
Total Heated
931 Ft
2
1st Floor
923 Ft
2
2nd Floor
3
Bedrooms
2.5
Bathrooms
2
Garage
2
Stories
46' 0"
Width
40' 0"
Depth
31' 4"
Height
8' 0"
Main Floor Ceiling
8' 0"
Upper Floor Ceiling
2x6
Framing
Truss
Roof Framing
7/12
Primary Roof Pitch
12/12
Secondary Roof Pitch
3/12
Porch Roof Pitch
Single
Dwelling Number
2nd Floor
Bonus Access

Unheated Living Space
553 Ft
2
Garage
226 Ft
2
Bonus Room
 

Plan Package Options

 Select Plan Package
Sale: $1,324
PDF Single Build
$1,655

Digital plans emailed to you in PDF format that allows for printing copies and sharing electronically with contractors, subs, decorators, and more. This package includes a license to build the home one time.

Sale: $1,324
Sale: $1,436
3 sets + PDF
$1,795
Please allow 3-5 days for delivery
Sale: $1,436
Sale: $2,124
CAD + PDF Single Build
$2,655

CAD files are a complete set of construction drawings delivered electronically. They can be used for any type of modification—including major design changes and engineering—and include a release granting permission to modify the plan. Most CAD plan orders are emailed the same or next business day.
 
This package also comes with a PDF set of plans and a copyright release for making modifications and printing unlimited copies.
 
CAD files are provided in .dwg format. For details on the specific CAD program used, please refer to the PLAN DETAILS section located above the floor plan on each plan’s page.

Sale: $2,124
 Need To Reverse Plan? (Optional)
$250
Readable Reverse

Reverse house plans with readable text and dimensions 

$250
  Select Foundation Option
  Add-Ons (Optional)
INCLUDED WITH YOUR PURCHASE

Free Ground shipping in the Continental U.S.

FREE

Design consultation with the architect or designer to discuss your plan

Home Building & Product Ideas Organizer

Sub Total
$0
Free Shipping
Please allow 3-5 business days for delivery of this plan Please check our PDFs NOW collection for plans that can be downloaded and received immediately or live chat us to help you find a similar plan available now.
QUESTIONS OR NEED HELP ORDERING? LIVE CHAT OR CALL US AT 866-214-2242
Plan Packages

Each set of construction documents includes detailed, dimensioned floor plans, basic electric layouts, cross sections, roof details, cabinet layouts and elevations, as well as general IRC specifications. They contain virtually all of the information required to construct your home. The typical plan set does not include any plumbing, HVAC drawings, or engineering stamps due to the wide variety of specific needs, local codes, and climatic conditions. These details and specifications are easily obtained from your builder, contractors, and/or local engineers.

BEST PRICE GUARANTEE

find the same house plan (modifications included!) and package for less on another site, show us the URL and we'll give you the difference plus an additional 5% back.

100% SATISFACTION GUARANTEE

We offer a one-time, 30-day exchange policy for unused, non-electronic plan packages in the event you aren't satisfied with your first selection.

 
 

Plan 4646  Back to plan page

Loading...