Get discounts,
promos, see our
newest plans
and more!
+ 15% off any plan
See terms opt out anytime


No Thanks

Thanks for
signing up!


Use Code:

SIGNUP15

And save 15% off any plan!

Check your email for details.

CLOSE
Search Plans
Customer Reviews
     
15% off ALL House Plans Sitewide
15% off ALL House Plans Sitewide
15% off ALL House Plans Sitewide

Code: HONOR
Sale ends midnight 5/31/2026 PST

Sq Ft
3,296 FT²

Beds
3

Baths
3.5

Stories
2

Garage
3

Depth
84'

Width
50'
On Sale
$1,020.00
$1,200.00
© copyright by designer
 View All 7 Images | Photographs may reflect modified home
Sq Ft
3,296 FT²
Beds
3
Baths
3.5
Stories
2
Garage
3
Depth
84'
Width
50'
 
Click to Zoom In on Floor Plan
© copyright by designer
 
 

About This Plan

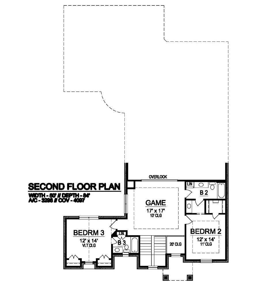
As you enter the two story foyer you'll notice the very quiet living room with its cozy fireplace and 19' high ceiling. To the left of the living room is the study, which could be transformed into a family bedroom with its two closets and access to a full bathroom. To the right of the foyer and living room is the formal dining room, that has easy access to the kitchen. The kitchen island is a welcoming additional counter space as well as the peninsula bar that separates the kitchen from the breakfast nook and family room. Just beyond the breakfast nook is the utility room and the three car garage, consisting of a two car garage and a one car garage. The master suite completes the first floor and offers a sitting area, trey ceilings, a luxurious master bathroom with a vaulted ceiling and his and hers walk-in closets. Upstairs you'll find two family bedrooms, separated by the game room and its overlook of the family room. Both bedrooms feature full bathrooms and private closets, completing this luxurious Texas-inspired home. 

See All Plan Options
 

FEATURES & DETAILS

Kitchen features
Kitchen Island
Nook / Breakfast Area
Peninsula / Eating Bar
Bedroom features
Double Vanity Sink
His and Hers Primary Closets
Primary Bdrm Main Floor
Separate Tub and Shower
Sitting Area
Walk-in Closet
Exterior features
Covered Front Porch
Front Porch
Foundation Options
Slab
Lot Options
Suited for corner lot
Additional features
2 Story Volume
Dining Room
Family Room
Fireplace
Formal LR
Foyer
Home Office
Laundry 1st Fl
Garage Location
Rear
Garage Options
Attached
Rear-entry
Side-entry
4,097 Ft
2
Total Structure
3,296 Ft
2
Total Heated
2,357 Ft
2
1st Floor
939 Ft
2
2nd Floor
3
Bedrooms
3.5
Bathrooms
3
Garage
2
Stories
50' 0"
Width
84' 0"
Depth
32' 0"
Height
10' 0"
Main Floor Ceiling
9' 0"
Upper Floor Ceiling
2x4
Framing
Stick
Roof Framing
10
Primary Roof Pitch
Single
Dwelling Number

Unheated Living Space
682 Ft
2
Garage
 

Plan Package Options

 Select Plan Package
 Need To Reverse Plan? (Optional)
  Select Foundation Option
  Add-Ons (Optional)
INCLUDED WITH YOUR PURCHASE

Free Ground shipping in the U.S.

FREE

Home Building & Product Ideas Organizer

Sub Total
$0
Free Shipping
QUESTIONS OR NEED HELP ORDERING? LIVE CHAT OR CALL US AT 866-214-2242
Plan Packages

Each set of construction documents typically includes detailed, dimensioned floor plans, basic electric layouts, cross sections, roof details, cabinet layouts, and elevations, as well as general IRC specifications. Please refer to the ARCHITECT or DESIGNER’S PLAN DETAILS link above the floor plan on any plan page to determine the specific details for each plan. Our house plans contain virtually all of the information required to construct your home. The typical plan set does not include plumbing, HVAC drawings, or engineering stamps due to the wide variety of specific needs, local codes, and climatic conditions. These details and specifications are easily obtained from your builder, contractors, and/or local engineers.

BEST PRICE GUARANTEE

Find the same house plan (modifications included!) and package for less on another site, show us the URL and we'll give you the difference plus an additional 10% back.

100% SATISFACTION GUARANTEE

We offer a one-time, 30-day exchange policy for unused, printed plan packages in the event you aren't satisfied with your first selection.

 
 

Plan 6833  Back to plan page

Loading...