Get discounts,
promos, see our
newest plans
and more!
+ 15% off any plan
See terms opt out anytime


No Thanks

Thanks for
signing up!


Use Code:

SIGNUP15

And save 15% off any plan!

Check your email for details.

CLOSE
Search Plans
Customer Reviews
     
15% off ALL House Plans Sitewide
15% off ALL House Plans Sitewide
15% off ALL House Plans Sitewide

Code: HONOR
Sale ends midnight 5/31/2026 PST

Beausejour 3 Charming Country Style House, Plan 6093

 
 

Sq Ft
1,772 FT²

Beds
3

Baths
1.5

Stories
2

Garage
0

Depth
28'

Width
36'
On Sale
$1,428.00
$1,680.00
© copyright by designer
 View All 6 Images | Photographs may reflect modified home
Sq Ft
1,772 FT²
Beds
3
Baths
1.5
Stories
2
Garage
0
Depth
28'
Width
36'
 
Click to Zoom In on Floor Plan
© copyright by designer
 
 

About This Plan

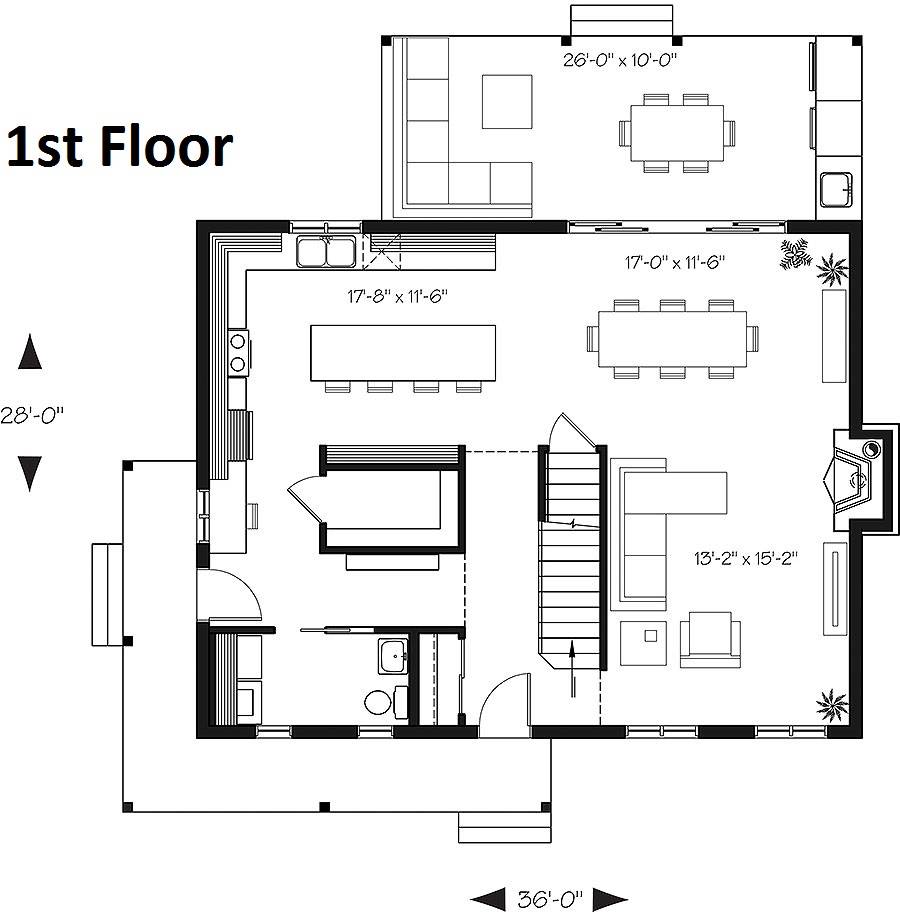
New Country House Plan with Modern Amenities! This new country house plan offers a multitude of covered  balconies, a traditional and beautiful red brick exterior chimney, a very trendy dark metal roof as well as popular shades this year which are dark gray amalgamated with shades of white and wood. Also there is a large covered patio at the back, large enough to receive an outdoor kitchen, a table and 6 chairs as well as a lounge area allowing you to appreciate your backyard while being comfortably sheltered from the elements. The ground floor has a two floor entrance with coat closet and a skylight offering lots of natural light. The open concept living room and dining room share a fireplace. The kitchen is also open to the dining room. The latter receives the light from an oversize patio door overlooking the rear balcony where it will be possible to arrange an outdoor kitchen as well as a dining area and lounge area. The kitchen island can easily accommodates 4 guests, and the kitchen also includes a large pantry and a planning desk. A half bathroom with washer / dryer is conveniently located not far from the kitchen. Upstairs and next to the family bathroom, the good size master bedroom (13'2 '' x 18 ') has a fireplace, a sloped ceiling and a large walk-in closet. The family bathroom offers a double vanity and an attached linen storage space. The toilet and the shower bath are separated from the two sinks allowing a better circulation in this room.New Country House Plan with Modern Amenities! This new country house plan offers a multitude of covered  balconies, a traditional and beautiful red brick exterior chimney, a very trendy dark metal roof as well as popular shades this year which are dark gray amalgamated with shades of white and wood. Also there is a large covered patio at the back, large enough to receive an outdoor kitchen, a table and 6 chairs as well as a lounge area allowing you to appreciate your backyard while being comfortably sheltered from the elements. The ground floor has a two floor entrance with coat closet and a skylight offering lots of natural light. The open concept living room and dining room share a fireplace. The kitchen is also open to the dining room. The latter receives the light from an oversize patio door overlooking the rear balcony where it will be possible to arrange an outdoor kitchen as well as a dining area and lounge area. The kitchen island can easily accommodates 4 guests, and the kitchen also includes a large pantry and a planning desk. A half bathroom with washer / dryer is conveniently located not far from the kitchen. Upstairs and next to the family bathroom, the good size master bedroom (13'2 '' x 18 ') has a fireplace, a sloped ceiling and a large walk-in closet. The family bathroom offers a double vanity and an attached linen storage space. The toilet and the shower bath are separated from the two sinks allowing a better circulation in this room. 

See All Plan Options
 

FEATURES & DETAILS

Kitchen features
Kitchen Island
Walk-in Pantry
Bedroom features
Primary Bdrm Upstairs
Sitting Area
Walk-in Closet
Exterior features
Covered Front Porch
Covered Rear Porch
Wraparound Porch
Foundation Options
Basement
Crawlspace
Slab
Additional features
2 Story Volume
Dining Room
Family Room
Fireplace
Laundry 1st Fl
Open Floor Plan
Unfinished Space
Garage Options
None
1,772 Ft
2
Total Heated
1,020 Ft
2
1st Floor
752 Ft
2
2nd Floor
1,020 Ft
2
Basement
3
Bedrooms
1.5
Bathrooms
0
Garage
2
Stories
36' 0"
Width
28' 0"
Depth
27' 4"
Height
8' 0"
Main Floor Ceiling
8' 0"
Upper Floor Ceiling
2x6
Framing
Truss
Roof Framing
12/12
Primary Roof Pitch
Single
Dwelling Number

Unheated Living Space
153 Ft
2
Porch
 

Plan Package Options

 Select Plan Package
 Need To Reverse Plan? (Optional)
  Select Foundation Option
  Add-Ons (Optional)
INCLUDED WITH YOUR PURCHASE

Free Ground shipping in the U.S.

FREE

Home Building & Product Ideas Organizer

Sub Total
$0
Free Shipping
Please allow 3-5 business days for delivery of this plan Please check our PDFs NOW collection for plans that can be downloaded and received immediately or live chat us to help you find a similar plan available now.
QUESTIONS OR NEED HELP ORDERING? LIVE CHAT OR CALL US AT 866-214-2242
Plan Packages

Each set of construction documents typically includes detailed, dimensioned floor plans, basic electric layouts, cross sections, roof details, cabinet layouts, and elevations, as well as general IRC specifications. Please refer to the ARCHITECT or DESIGNER’S PLAN DETAILS link above the floor plan on any plan page to determine the specific details for each plan. Our house plans contain virtually all of the information required to construct your home. The typical plan set does not include plumbing, HVAC drawings, or engineering stamps due to the wide variety of specific needs, local codes, and climatic conditions. These details and specifications are easily obtained from your builder, contractors, and/or local engineers.

BEST PRICE GUARANTEE

Find the same house plan (modifications included!) and package for less on another site, show us the URL and we'll give you the difference plus an additional 10% back.

100% SATISFACTION GUARANTEE

We offer a one-time, 30-day exchange policy for unused, printed plan packages in the event you aren't satisfied with your first selection.

 
 

Plan 6093  Back to plan page

Loading...