Get discounts,
promos, see our
newest plans
and more!
+ 15% off any plan
See terms opt out anytime


No Thanks

Thanks for
signing up!


Use Code:

SIGNUP15

And save 15% off any plan!

Check your email for details.

CLOSE
Search Plans
     
15% Off House Plans Sitewide Ends Sunday
15% Off House Plans Sitewide Ends Sunday
15% Off House Plans Sitewide Ends Sunday

Code: SAVE15
Sale ends midnight 11/16/2025 PST

Sq Ft
2,062 FT²

Beds
3

Baths
2

Stories
1

Garage
2

Depth
81' 8"

Width
64' 2"
On Sale
$1,156.00
$1,360.00
© copyright by designer
 View All 9 Images | Photographs may reflect modified home
Sq Ft
2,062 FT²
Beds
3
Baths
2
Stories
1
Garage
2
Depth
81' 8"
Width
64' 2"
 
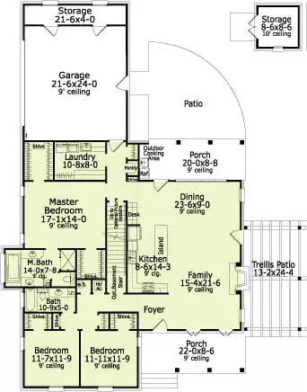
Click to Zoom In on Floor Plan
© copyright by designer
 
 

About This Plan

A charming arbor invites you outdoors as well as the outdoor kitchen incorporated in the rear porch. The very open floor plan is great for entertaining or enjoying family time. Great storage is provided throughout with walk-in closets and spacious laundry room. The future space offers an additional 1346 square feet for expansion. 

See All Plan Options
 

FEATURES & DETAILS

Kitchen features
Country Kitchen
Kitchen Island
Walk-in Pantry
Bedroom features
Double Vanity Sink
His and Hers Primary Closets
Primary Bdrm Main Floor
Split Bedrooms
Walk-in Closet
Exterior features
Covered Front Porch
Covered Rear Porch
Front Porch
Rear Porch
Foundation Options
Basement
Crawlspace
Slab
Lot Options
Suited for corner lot
Additional features
Bonus Room
Family Room
Fireplace
Foyer
Great Room
Home Office
Laundry 1st Fl
Mud Room
Open Floor Plan
Storage Space
Unfinished Space
Garage Location
Rear
Garage Options
Attached
Side-entry
2,062 Ft
2
Total Heated
3
Bedrooms
2
Bathrooms
2
Garage
1
Stories
64' 2"
Width
81' 8"
Depth
23' 0"
Height
9' 0"
Main Floor Ceiling
8' 0"
Upper Floor Ceiling
2x4
Framing
Stick
Roof Framing
8/12
Primary Roof Pitch
11/12
Gable Roof Pitch
12/4.5
Porch Roof Pitch
Single
Dwelling Number
1st Floor
Bonus Access

Unheated Living Space
560 Ft
2
Garage
111 Ft
2
Storage
360 Ft
2
Porch
1,346 Ft
2
Bonus Room
 

Plan Package Options

 Select Plan Package
Sale: $1,156
PDF Single Build
$1,360

PDFs NOW!™

Digital plans emailed to you in PDF format that allows for printing copies and sharing electronically with contractors, subs, decorators, and more. This package includes a license to build the home one time.

Sale: $1,156
Sale: $1,449
5 Printed Sets
$1,705

Five Printed Sets of Residential Construction Drawings are typically 24” x 36” documents and come with a license to construct a single residence shipped to a physical address. Keep in mind PDF Plan Packages are our most popular choice which allows you to print as many copies as you need and to electronically send files to your builder, subcontractors, etc.

Sale: $1,449
Sale: $1,598
5 Printed Sets + PDF
$1,880

PDFs NOW!™

Digital plan emailed to you in PDF format that allows for printing copies on a home printer or local print shop and sharing with contractors, subs, decorators, and more. PLUS five printed sets shipped and delivered 3-5 business days.

Sale: $1,598
Sale: $1,968
CAD + PDF Single Build
$2,315

CAD files are a complete set of construction drawings delivered electronically. They can be used for any type of modification—including major design changes and engineering—and include a release granting permission to modify the plan. Most CAD plan orders are emailed the same or next business day.
 
This package also comes with a PDF set of plans and a copyright release for making modifications and printing unlimited copies.
 
CAD files are provided in .dwg format. For details on the specific CAD program used, please refer to the PLAN DETAILS section located above the floor plan on each plan’s page.

Sale: $1,968
 Need To Reverse Plan? (Optional)
$300
Readable Reverse
PDFs NOW!™

Reverse house plans with readable text and dimensions 

$300
  Select Foundation Option
  Add-Ons (Optional)
INCLUDED WITH YOUR PURCHASE

Free Ground shipping in the Continental U.S.

FREE

Design consultation with the architect or designer to discuss your plan

Home Building & Product Ideas Organizer

Sub Total
$0
Free Shipping
QUESTIONS OR NEED HELP ORDERING? LIVE CHAT OR CALL US AT 866-214-2242
Plan Packages

Each set of construction documents includes detailed, dimensioned floor plans, basic electric layouts, cross sections, roof details, cabinet layouts and elevations, as well as general IRC specifications. They contain virtually all of the information required to construct your home. The typical plan set does not include any plumbing, HVAC drawings, or engineering stamps due to the wide variety of specific needs, local codes, and climatic conditions. These details and specifications are easily obtained from your builder, contractors, and/or local engineers.

BEST PRICE GUARANTEE

find the same house plan (modifications included!) and package for less on another site, show us the URL and we'll give you the difference plus an additional 5% back.

100% SATISFACTION GUARANTEE

We offer a one-time, 30-day exchange policy for unused, non-electronic plan packages in the event you aren't satisfied with your first selection.

 
 

Plan 5612  Back to plan page

Loading...