Get discounts,
promos, see our
newest plans
and more!
+ 15% off any plan
See terms opt out anytime


No Thanks

Thanks for
signing up!


Use Code:

SIGNUP15

And save 15% off any plan!

Check your email for details.

CLOSE
Search Plans
Customer Reviews
     
15% off ALL House Plans Sitewide
15% off ALL House Plans Sitewide
15% off ALL House Plans Sitewide

Code: HONOR
Sale ends midnight 5/29/2026 PST

Arwyn 4 Bedroom Contemporary Style House, Plan 9789

 
 

Sq Ft
2,244 FT²

Beds
4

Baths
2.5

Stories
2

Garage
3

Depth
63'

Width
42'
On Sale
$1,503.65
$1,769.00
© copyright by designer
 View All 9 Images | Photographs may reflect modified home
Sq Ft
2,244 FT²
Beds
4
Baths
2.5
Stories
2
Garage
3
Depth
63'
Width
42'
 
Click to Zoom In on Floor Plan
© copyright by designer
 
 

About This Plan

The Arwyn is a contemporary masterpiece that seamlessly blends modern aesthetics with practical design. Its striking exterior features a mix of stone and wood, creating a clean, sophisticated look. Inside, the open-concept layout includes a spacious L-shaped kitchen with a central island, flowing into a dining room with backyard views and a cozy living area anchored by a fireplace. The floor plan offers optimal privacy, with a guest bedroom on the first floor and the primary suite, along with two additional bedrooms, on the second floor. A large covered patio enhances outdoor living, while the two-car garage with an extra tandem space provides ample room for vehicles and storage.  

See All Plan Options
 

FEATURES & DETAILS

Kitchen features
Kitchen Island
L-Shaped
Walk-in Pantry
Bedroom features
Double Vanity Sink
Primary Bdrm Upstairs
Walk-in Closet
Exterior features
Covered Front Porch
Covered Rear Porch
Outdoor Living Space
Lot Options
Suited for corner lot
Suited for sloping lot
Suited for view lot
Additional features
Dining Room
Fireplace
Foyer
Great Room
Laundry 1st Fl
Mud Room
Open Floor Plan
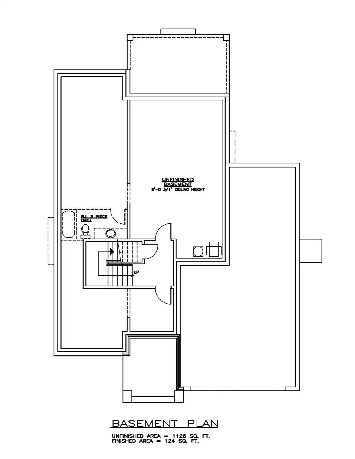
Unfinished Space
Garage Location
Front
Garage Options
Attached
Front-entry
Tandem
4,150 Ft
2
Total Structure
2,244 Ft
2
Total Heated
1,258 Ft
2
1st Floor
986 Ft
2
2nd Floor
1,250 Ft
2
Lower Floor
4
Bedrooms
2.5
Bathrooms
3
Garage
2
Stories
42' 0"
Width
63' 0"
Depth
23' 2"
Height
9' 0"
Main Floor Ceiling
8' 0"
Upper Floor Ceiling
8' 0"
Lower Floor Ceiling
2x6
Framing
Truss
Roof Framing
4/12
Primary Roof Pitch
Single
Dwelling Number
None
Bonus Access

Unheated Living Space
653 Ft
2
Garage
175 Ft
2
Patio
 

Plan Package Options

 Select Plan Package
 Need To Reverse Plan? (Optional)
  Select Foundation Option
  Add-Ons (Optional)
INCLUDED WITH YOUR PURCHASE

Free Ground shipping in the U.S.

FREE

Home Building & Product Ideas Organizer

Sub Total
$0
Free Shipping
QUESTIONS OR NEED HELP ORDERING? LIVE CHAT OR CALL US AT 866-214-2242
Plan Packages

Each set of construction documents typically includes detailed, dimensioned floor plans, basic electric layouts, cross sections, roof details, cabinet layouts, and elevations, as well as general IRC specifications. Please refer to the ARCHITECT or DESIGNER’S PLAN DETAILS link above the floor plan on any plan page to determine the specific details for each plan. Our house plans contain virtually all of the information required to construct your home. The typical plan set does not include plumbing, HVAC drawings, or engineering stamps due to the wide variety of specific needs, local codes, and climatic conditions. These details and specifications are easily obtained from your builder, contractors, and/or local engineers.

BEST PRICE GUARANTEE

Find the same house plan (modifications included!) and package for less on another site, show us the URL and we'll give you the difference plus an additional 10% back.

100% SATISFACTION GUARANTEE

We offer a one-time, 30-day exchange policy for unused, printed plan packages in the event you aren't satisfied with your first selection.

 
 

Plan 9789  Back to plan page

Loading...