Get discounts,
promos, see our
newest plans
and more!
+ 15% off any plan
See terms opt out anytime


No Thanks

Thanks for
signing up!


Use Code:

SIGNUP15

And save 15% off any plan!

Check your email for details.

CLOSE
Search Plans
Customer Reviews
     
15% off ALL House Plans Sitewide
15% off ALL House Plans Sitewide
15% off ALL House Plans Sitewide

Code: HONOR
Sale ends midnight 5/29/2026 PST

Builder Preferred Modern Tri-Plex House, Plan 7667

 
 

Sq Ft
3,555 FT²

Beds
6

Baths
3

Stories
3

Garage
0

Depth
40'

Width
30'
On Sale
$1,525.75
$1,795.00
© copyright by designer
 View All 5 Images | Photographs may reflect modified home
Sq Ft
3,555 FT²
Beds
6
Baths
3
Stories
3
Garage
0
Depth
40'
Width
30'
 
Click to Zoom In on Floor Plan
© copyright by designer
 
 

About This Plan

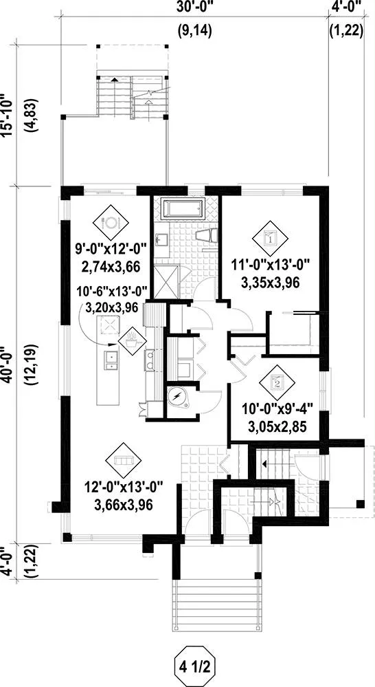
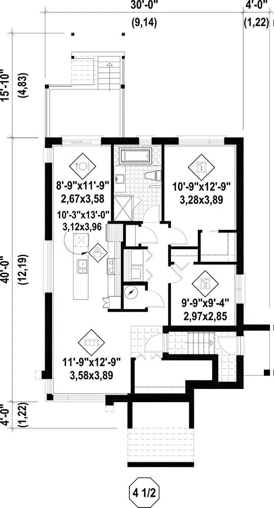
From the outside, this stunning contemporary plan looks like a single family home, but inside you’ll realize that it’s actually a triplex, combining 3 gorgeous homes in to one! Perhaps one of the most unique plans available, this multi-family dwelling has 3 full units, each on its own private floor and with the full range of amenities. Every unit in this modern design has 2 bedrooms, a full spa bath, and 1,185 square feet of comfortable living space. You’ll certainly enjoy the privacy of any of the levels, which are accessible via both front and rear staircases. Along with the bedrooms, every unit in this home also gives you an island kitchen, a beautiful dining room with private balcony access, and a cozy family room. Once inside, you will immediately notice how each room on every level of this plan is painted in glowing natural light, thanks to the addition of large windows, making each unit feel warm and airy, all year long. 

See All Plan Options
 

FEATURES & DETAILS

Kitchen features
Kitchen Island
Nook / Breakfast Area
Bedroom features
Primary Bdrm Main Floor
Separate Tub and Shower
Walk-in Closet
Exterior features
Deck
Lot Options
Suited for view lot
Additional features
Family Room
Laundry 1st Fl
Open Floor Plan
Garage Options
None
3,555 Ft
2
Total Structure
3,555 Ft
2
Unit Heated
1,185 Ft
2
1st Floor
1,185 Ft
2
2nd Floor
1,185 Ft
2
Lower Floor
6
Bedrooms
3
Bathrooms
0
Garage
3
Stories
30' 0"
Width
40' 0"
Depth
23' 0"
Height
8' 0"
Main Floor Ceiling
8' 0"
Upper Floor Ceiling
8' 0"
Lower Floor Ceiling
2x6
Framing
Truss
Roof Framing
Multi-Family
Dwelling Number

Unheated Living Space
 

Plan Package Options

 Select Plan Package
 Need To Reverse Plan? (Optional)
  Select Foundation Option
  Add-Ons (Optional)
INCLUDED WITH YOUR PURCHASE

Free Ground shipping in the U.S.

FREE

Home Building & Product Ideas Organizer

Sub Total
$0
Free Shipping
Provinces of Québec and Ontario only: Purchasable options are 5 printed sets or 8 printed sets. PDF file and CAD file options are unavailable.
QUESTIONS OR NEED HELP ORDERING? LIVE CHAT OR CALL US AT 866-214-2242
Plan Packages

Each set of construction documents typically includes detailed, dimensioned floor plans, basic electric layouts, cross sections, roof details, cabinet layouts, and elevations, as well as general IRC specifications. Please refer to the ARCHITECT or DESIGNER’S PLAN DETAILS link above the floor plan on any plan page to determine the specific details for each plan. Our house plans contain virtually all of the information required to construct your home. The typical plan set does not include plumbing, HVAC drawings, or engineering stamps due to the wide variety of specific needs, local codes, and climatic conditions. These details and specifications are easily obtained from your builder, contractors, and/or local engineers.

BEST PRICE GUARANTEE

Find the same house plan (modifications included!) and package for less on another site, show us the URL and we'll give you the difference plus an additional 10% back.

100% SATISFACTION GUARANTEE

We offer a one-time, 30-day exchange policy for unused, printed plan packages in the event you aren't satisfied with your first selection.

 
 

Plan 7667  Back to plan page

Loading...