Get discounts,
promos, see our
newest plans
and more!
+ 15% off any plan
See terms opt out anytime


No Thanks

Thanks for
signing up!


Use Code:

SIGNUP15

And save 15% off any plan!

Check your email for details.

CLOSE
Search Plans
Customer Reviews
     
15% Off House Plans Sitewide Ends Sunday

Code: SAVE15
Sale ends midnight 1/11/2026 PST

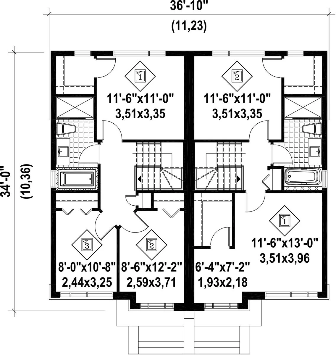
Affordable Contemporary Style Duplex House, Plan 9889

 
 

Sq Ft
1,196 FT²

Beds
3

Baths
1.5

Stories
2

Garage
0

Depth
34'

Width
36' 10"
From
$1,070.00
© copyright by designer
 View All 9 Images | Photographs may reflect modified home
Sq Ft
1,196 FT²
Beds
3
Baths
1.5
Stories
2
Garage
0
Depth
34'
Width
36' 10"
 
Click to Zoom In on Floor Plan
© copyright by designer
 
 

About This Plan

If you are a builder needing a smaller duplex for a tighter lot but still want to maximize rental potential, this two story 1,196 sq. ft. (per unit) 3 bedroom, 1.5 bath duplex would be a perfect addition to your plan collection.

Guests will enter through the emphasized and commanding covered front porch directly into a casual foyer with a coat closet for additional storage. Directly to the left begins the open concept floor plan with the great room claiming the front of the home and the half bath is adjacent. There is a wall fireplace that will add ambiance and charm. Through the “L” shape, the living room is buttressed to the galley kitchen that has an island with the sink and flows immediately into the casual dining space. Natural light bathes the main level through the sliding glass doors that provide access to the small back uncovered deck.

Up the centrally located stairs you will find all 3 bedrooms and the shared full hallway bathroom that has a shower and a tub. The back larger suite has a walk-in closet while the two secondary bedrooms both share the front windows of the home. 

See All Plan Options
 

FEATURES & DETAILS

Kitchen features
Kitchen Island
Nook / Breakfast Area
Bedroom features
Primary Bdrm Upstairs
Walk-in Closet
Exterior features
Covered Front Porch
Additional features
Family Room
Foyer
Laundry 1st Fl
Open Floor Plan
Garage Options
None
2,392 Ft
2
Total Structure
1,196 Ft
2
Unit Heated
1,196 Ft
2
1st Floor
1,196 Ft
2
2nd Floor
3
Bedrooms
1.5
Bathrooms
0
Garage
2
Stories
36' 10"
Width
34' 0"
Depth
29' 8"
Height
8' 0"
Main Floor Ceiling
8' 0"
Upper Floor Ceiling
2x6
Framing
Truss
Roof Framing
5/12
Primary Roof Pitch
Duplex
Dwelling Number

Unheated Living Space
 

Plan Package Options

 Select Plan Package
$1,115
5 Printed Sets

Five Printed Sets of Residential Construction Drawings are typically 24” x 36” documents and come with a license to construct a single residence shipped to a physical address. Keep in mind PDF Plan Packages are our most popular choice which allows you to print as many copies as you need and to electronically send files to your builder, subcontractors, etc.

$1,115
$1,215
5 Printed Sets + PDF

Includes 5 physical printed blueprints shipped and delivered within 3-5 business days and a copyright release license to construct one home and to make copies. A complimentary PDF plan set is also emailed within 1 business day for easy sharing and local printing. 

$1,215
$1,070
PDF Single Build

Digital plans emailed to you in PDF format that allows for printing copies and sharing electronically with contractors, subs, decorators, and more. This package includes a license to build the home one time.

$1,070
$2,090
CAD + PDF Single Build

This plan package is created in AutoCAD and delivered in .DWG format. CAD files are intended for use by design professionals, structural engineers, and builders to update plans for local building codes or to make revisions based on specific needs, lot requirements, and budget considerations. A complimentary PDF copy is included with this package for reference. CAD packages are delivered within 1 to 2 business days.
 
This package also comes with a copyright release for making revisions and printing unlimited copies.

For details on the specific CAD program used, please refer to the PLAN DETAILS section located above the floor plan on each plan page.

$2,090
 Need To Reverse Plan? (Optional)
$150
Readable Reverse

Reverse house plans with readable text and dimensions 

$150
  Select Foundation Option
  Add-Ons (Optional)
INCLUDED WITH YOUR PURCHASE

Free Ground shipping in the Continental U.S.

FREE

Home Building & Product Ideas Organizer

Sub Total
$0
Free Shipping
Provinces of Québec and Ontario only: Purchasable options are 5 printed sets or 8 printed sets. PDF file and CAD file options are unavailable.
QUESTIONS OR NEED HELP ORDERING? LIVE CHAT OR CALL US AT 866-214-2242
Plan Packages

Each set of construction documents includes detailed, dimensioned floor plans, basic electric layouts, cross sections, roof details, cabinet layouts and elevations, as well as general IRC specifications. They contain virtually all of the information required to construct your home. The typical plan set does not include any plumbing, HVAC drawings, or engineering stamps due to the wide variety of specific needs, local codes, and climatic conditions. These details and specifications are easily obtained from your builder, contractors, and/or local engineers.

BEST PRICE GUARANTEE

Find the same house plan (modifications included!) and package for less on another site, show us the URL and we'll give you the difference plus an additional 5% back.

100% SATISFACTION GUARANTEE

We offer a one-time, 30-day exchange policy for unused, printed plan packages in the event you aren't satisfied with your first selection. Exchanges are subject to a 20% restocking fee.

 
 

Plan 9889  Back to plan page

Loading...