Get discounts,
promos, see our
newest plans
and more!
+ 15% off any plan
See terms opt out anytime


No Thanks

Thanks for
signing up!


Use Code:

SIGNUP15

And save 15% off any plan!

Check your email for details.

CLOSE
Search Plans
Customer Reviews
     
15% off ALL House Plans Sitewide
15% off ALL House Plans Sitewide
15% off ALL House Plans Sitewide

Code: HONOR
Sale ends midnight 5/31/2026 PST

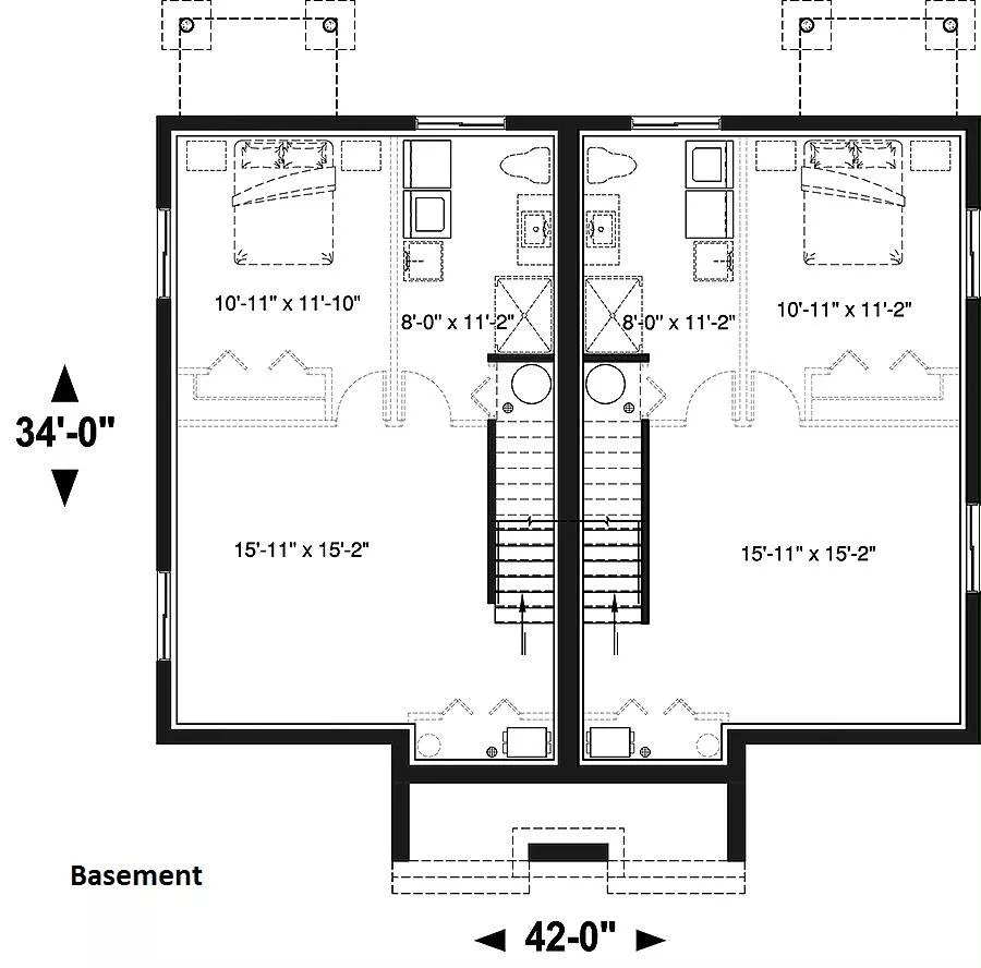
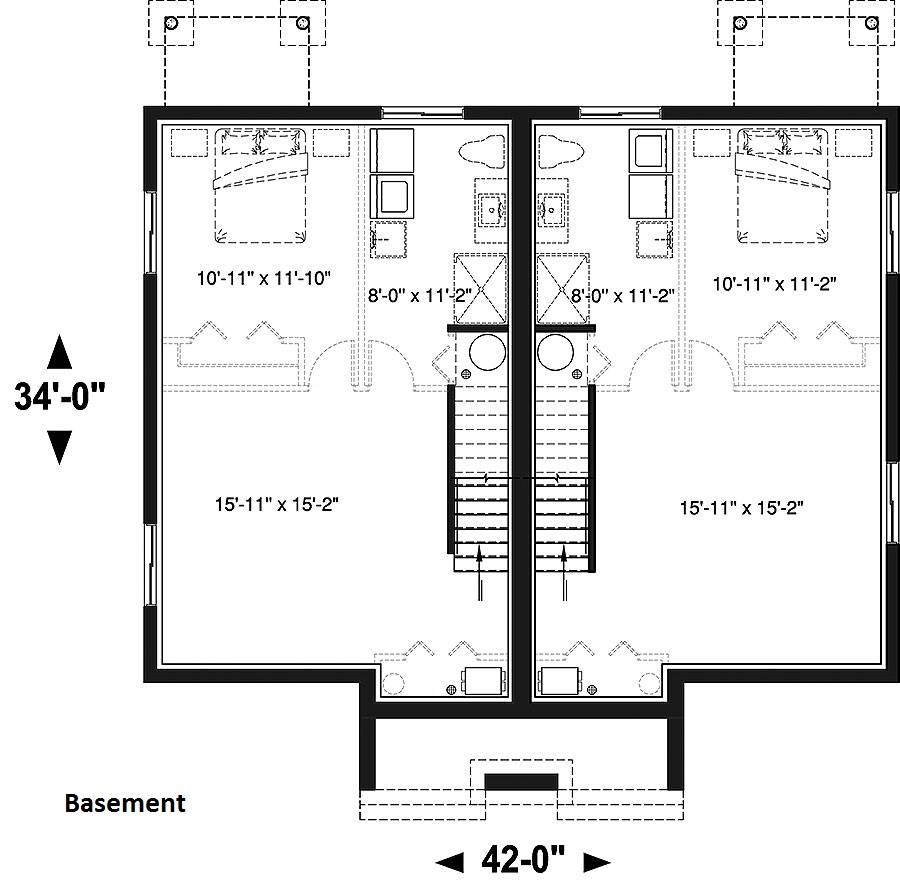
Charny Starter Modern Style Duplex House, Plan 6264

 
 

Sq Ft
2,760 FT²

Beds
3

Baths
1.5

Stories
2

Garage
0

Depth
34'

Width
42'
On Sale
$1,942.25
$2,285.00
© copyright by designer
 View All 6 Images | Photographs may reflect modified home
Sq Ft
2,760 FT²
Beds
3
Baths
1.5
Stories
2
Garage
0
Depth
34'
Width
42'
 
Click to Zoom In on Floor Plan
© copyright by designer
 
 

About This Plan

Trendy modern two-story duplex house plan with plenty of natural light! The sheltered balconies at the front, as well as a coat closet from the outset to comfort. The living room and the dining room are in open concept and receive a lot of natural light thanks to the size and the number of windows in this area. The kitchen has a central island and convenient pantry, and it adjoins a half bathroom. Access to the basement is located near the kitchen, and the laundry room is in the basement. The three bedrooms are located upstairs, which is convenient for families with young children. The master bedroom has a walk-in closet. Two secondary rooms are of similar size and each have a closet. The family bathroom has a separate bath and shower. The plan comes with an unfinished daylight basement but many other foundation options are available.  

See All Plan Options
 

FEATURES & DETAILS

Kitchen features
Kitchen Island
Walk-in Pantry
Bedroom features
His and Hers Primary Closets
Primary Bdrm Upstairs
Walk-in Closet
Exterior features
Covered Front Porch
Deck
Foundation Options
Basement
Crawlspace
Slab
Lot Options
Suited for narrow lot
Additional features
Dining Room
Family Room
Foyer
Open Floor Plan
Unfinished Space
5,520 Ft
2
Total Structure
2,760 Ft
2
Unit Heated
1,380 Ft
2
1st Floor
1,380 Ft
2
2nd Floor
13,802 Ft
2
Basement
3
Bedrooms
1.5
Bathrooms
0
Garage
2
Stories
42' 0"
Width
34' 0"
Depth
27' 6"
Height
8' 0"
Main Floor Ceiling
8' 0"
Upper Floor Ceiling
2x6
Framing
Truss
Roof Framing
Duplex
Dwelling Number

Unheated Living Space
362 Ft
2
Porch
 

Plan Package Options

 Select Plan Package
 Need To Reverse Plan? (Optional)
  Select Foundation Option
  Add-Ons (Optional)
INCLUDED WITH YOUR PURCHASE

Free Ground shipping in the U.S.

FREE

Home Building & Product Ideas Organizer

Sub Total
$0
Free Shipping
Please allow 3-5 business days for delivery of this plan Please check our PDFs NOW collection for plans that can be downloaded and received immediately or live chat us to help you find a similar plan available now.
QUESTIONS OR NEED HELP ORDERING? LIVE CHAT OR CALL US AT 866-214-2242
Plan Packages

Each set of construction documents typically includes detailed, dimensioned floor plans, basic electric layouts, cross sections, roof details, cabinet layouts, and elevations, as well as general IRC specifications. Please refer to the ARCHITECT or DESIGNER’S PLAN DETAILS link above the floor plan on any plan page to determine the specific details for each plan. Our house plans contain virtually all of the information required to construct your home. The typical plan set does not include plumbing, HVAC drawings, or engineering stamps due to the wide variety of specific needs, local codes, and climatic conditions. These details and specifications are easily obtained from your builder, contractors, and/or local engineers.

BEST PRICE GUARANTEE

Find the same house plan (modifications included!) and package for less on another site, show us the URL and we'll give you the difference plus an additional 10% back.

100% SATISFACTION GUARANTEE

We offer a one-time, 30-day exchange policy for unused, printed plan packages in the event you aren't satisfied with your first selection.

 
 

Plan 6264  Back to plan page

Loading...