Get discounts,
promos, see our
newest plans
and more!
+ 15% off any plan
See terms opt out anytime


No Thanks

Thanks for
signing up!


Use Code:

SIGNUP15

And save 15% off any plan!

Check your email for details.

CLOSE
Search Plans
Customer Reviews
     
15% off ALL House Plans Sitewide
15% off ALL House Plans Sitewide
15% off ALL House Plans Sitewide

Code: HONOR
Sale ends midnight 5/31/2026 PST

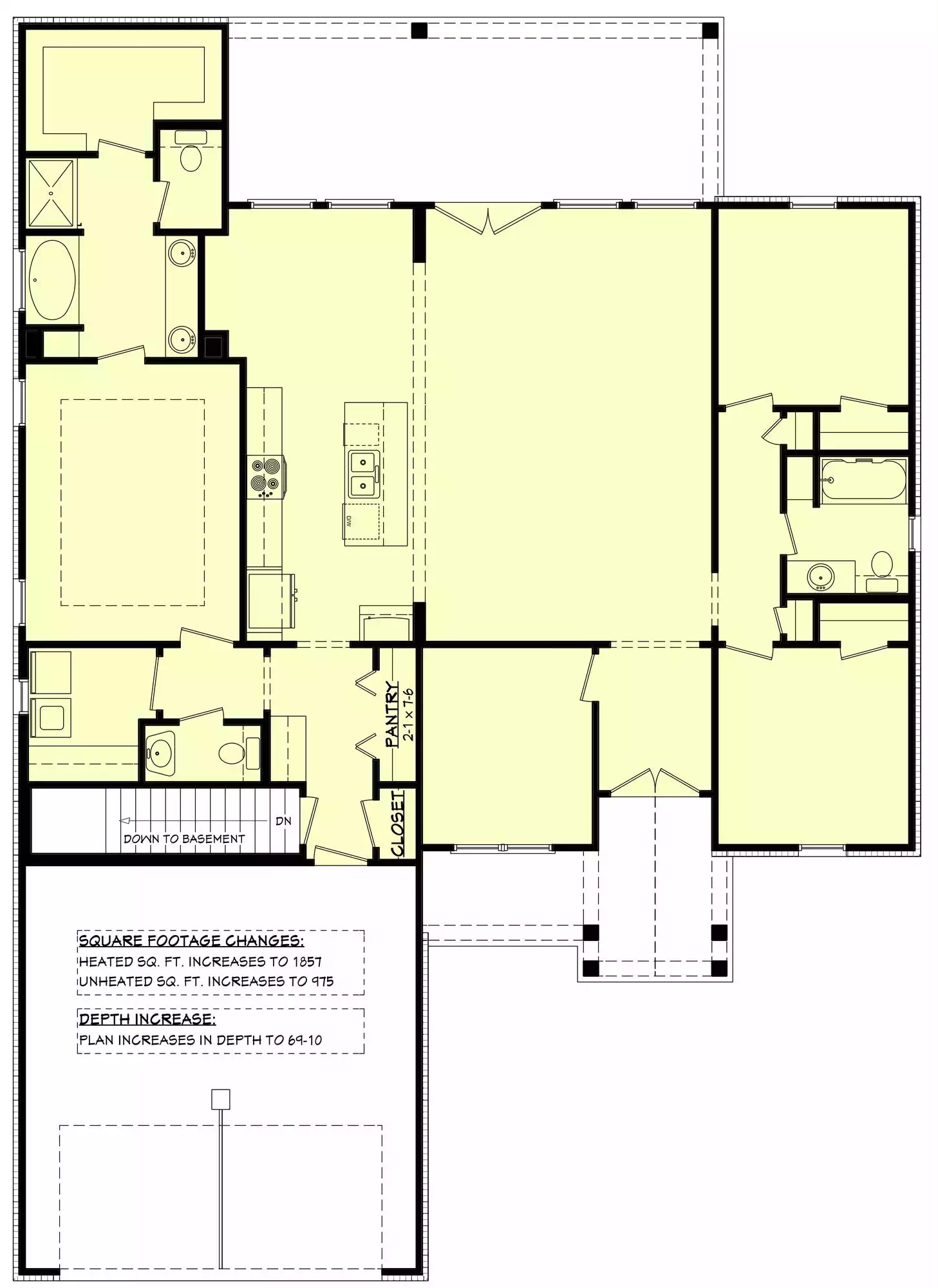
Goldrick | 3 Bedroom Modern Farmhouse Style House, Plan 10521

 
 

Sq Ft
1,828 FT²

Beds
3

Baths
2.5

Stories
1

Garage
2

Depth
65' 6"

Width
50'
On Sale
$1,185.75
$1,395.00
© copyright by designer
 View All 8 Images | Photographs may reflect modified home
Sq Ft
1,828 FT²
Beds
3
Baths
2.5
Stories
1
Garage
2
Depth
65' 6"
Width
50'
 
Click to Zoom In on Floor Plan
© copyright by designer
 
 

About This Plan

The Goldrick house plan is a thoughtfully designed 1,828 sq. ft. modern farmhouse that seamlessly blends style and functionality. This single-story layout includes 3 bedrooms and 2.5 bathrooms, featuring a primary suite with a luxurious bath and walk-in closet. The heart of the home boasts a spacious great room with a cozy fireplace, flowing effortlessly into the kitchen and dining area to create an open and inviting living space. The kitchen is equipped with a large island with seating, dual sinks, and a walk-in pantry, enhancing its practicality. A dedicated home office near the entrance provides a private space for work or study. The split-bedroom design ensures privacy, with two additional bedrooms sharing a well-appointed bathroom on the opposite side of the home. Both front and rear covered porches offer inviting outdoor spaces, perfect for relaxation or entertaining. With its modern farmhouse charm and efficient layout, the Goldrick plan caters to those seeking a stylish yet functional home.
 

See All Plan Options
 

FEATURES & DETAILS

Kitchen features
Kitchen Island
L-Shaped
Pantry
Peninsula / Eating Bar
Bedroom features
Double Vanity Sink
Primary Bdrm Main Floor
Separate Tub and Shower
Split Bedrooms
Walk-in Closet
Exterior features
Covered Front Porch
Covered Rear Porch
Additional features
Dining Room
Foyer
Great Room
Home Office
Laundry 1st Fl
Mud Room
Open Floor Plan
Garage Location
Front
Garage Options
Attached
Front-entry
2,734 Ft
2
Total Structure
1,828 Ft
2
Total Heated
1,828 Ft
2
1st Floor
3
Bedrooms
2.5
Bathrooms
2
Garage
1
Stories
50' 0"
Width
65' 6"
Depth
25' 0"
Height
9' 0"
Main Floor Ceiling
10' 0"
Living/Great Room Ceiling
10' 0"
Primary Ceiling
2x4
Framing
Stick
Roof Framing
8/12
Primary Roof Pitch
12/12
Secondary Roof Pitch
3.5/12
Teritary Roof Pitch
Single
Dwelling Number

Unheated Living Space
513 Ft
2
Garage
120 Ft
2
Front Porch
273 Ft
2
Rear Porch
 

Plan Package Options

 Select Plan Package
 Need To Reverse Plan? (Optional)
  Select Foundation Option
  Add-Ons (Optional)
INCLUDED WITH YOUR PURCHASE

Free Ground shipping in the U.S.

FREE

Home Building & Product Ideas Organizer

Sub Total
$0
Free Shipping
QUESTIONS OR NEED HELP ORDERING? LIVE CHAT OR CALL US AT 866-214-2242
Plan Packages

Each set of construction documents typically includes detailed, dimensioned floor plans, basic electric layouts, cross sections, roof details, cabinet layouts, and elevations, as well as general IRC specifications. Please refer to the ARCHITECT or DESIGNER’S PLAN DETAILS link above the floor plan on any plan page to determine the specific details for each plan. Our house plans contain virtually all of the information required to construct your home. The typical plan set does not include plumbing, HVAC drawings, or engineering stamps due to the wide variety of specific needs, local codes, and climatic conditions. These details and specifications are easily obtained from your builder, contractors, and/or local engineers.

BEST PRICE GUARANTEE

Find the same house plan (modifications included!) and package for less on another site, show us the URL and we'll give you the difference plus an additional 10% back.

100% SATISFACTION GUARANTEE

We offer a one-time, 30-day exchange policy for unused, printed plan packages in the event you aren't satisfied with your first selection.

 
 

Plan 10521  Back to plan page

Loading...