Get discounts,
promos, see our
newest plans
and more!
+ 15% off any plan
See terms opt out anytime


No Thanks

Thanks for
signing up!


Use Code:

SIGNUP15

And save 15% off any plan!

Check your email for details.

CLOSE
Search Plans
Customer Reviews
     
15% off ALL House Plans Sitewide
15% off ALL House Plans Sitewide
15% off ALL House Plans Sitewide

Code: SAVE15
Sale ends midnight 4/22/2026 PST

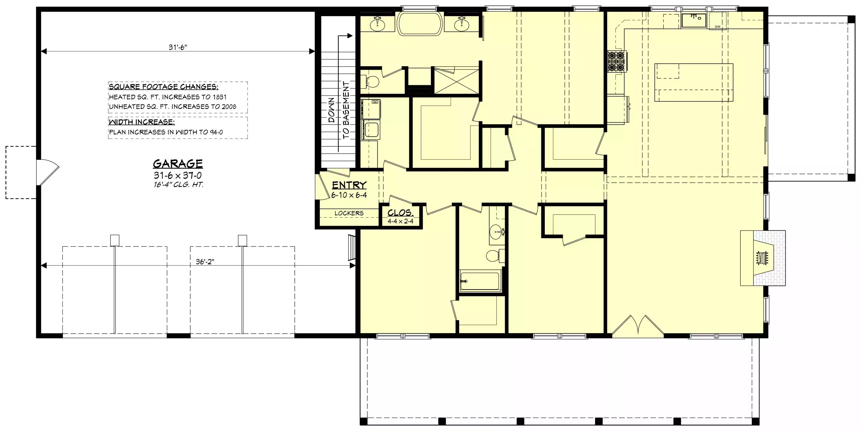
Magnolia Bluffs | 3 Bedroom Barndominium Style House, Plan 10564

 
 

Sq Ft
1,800 FT²

Beds
3

Baths
2

Stories
1

Garage
2

Depth
48'

Width
90'
On Sale
$1,185.75
$1,395.00
© copyright by designer
 View All 16 Images | Photographs may reflect modified home | Video Tour
Sq Ft
1,800 FT²
Beds
3
Baths
2
Stories
1
Garage
2
Depth
48'
Width
90'
 

 
Click to Zoom In on Floor Plan
© copyright by designer
 
 

About This Plan

The Magnolia Bluffs house plan is a thoughtfully designed 1,800 sq. ft. barndominium-style modern farmhouse that combines rustic charm with contemporary amenities. This single-story layout includes 3 bedrooms and 2 bathrooms, featuring a private primary suite with a spacious walk-in closet and en-suite bathroom. The heart of the home boasts an open-concept great room with 16-foot ceilings and a wood-burning fireplace, seamlessly flowing into the dining area and kitchen, creating an inviting living space. The kitchen is equipped with a large island and a walk-in pantry, enhancing its functionality. An oversized 2-car garage offers ample storage and includes wall-mounted ladder access to an attic storage area above the main living space. With its barndominium aesthetics and efficient layout, the Magnolia Bluffs plan caters to those seeking a stylish yet practical home.

To see inside a similar barndominium, check out the 3-D video of House Plan 6693! It includes great finishing and furnishing ideas that you can bring to a design like this. 

See All Plan Options
 

FEATURES & DETAILS

Kitchen features
Kitchen Island
L-Shaped
Pantry
Peninsula / Eating Bar
Walk-in Pantry
Bedroom features
Double Vanity Sink
Family Style
Primary Bdrm Main Floor
Separate Tub and Shower
Walk-in Closet
Exterior features
Covered Front Porch
Outdoor Living Space
Lot Options
Suited for view lot
Additional features
Dining Room
Fireplace
Great Room
Laundry 1st Fl
Mud Room
Open Floor Plan
Vaulted Ceilings
Vaulted Great Room/Living
Vaulted Kitchen
Garage Location
Side
Garage Options
Attached
Front-entry
3,685 Ft
2
Total Structure
1,800 Ft
2
Total Heated
1,800 Ft
2
1st Floor
3
Bedrooms
2
Bathrooms
2
Garage
1
Stories
90' 0"
Width
48' 0"
Depth
30' 0"
Height
10' 0"
Main Floor Ceiling
16' 0"
Living/Great Room Ceiling
10' 0"
Primary Ceiling
2x6
Framing
Combination
Roof Framing
8/12
Primary Roof Pitch
2/12
Secondary Roof Pitch
Single
Dwelling Number
None
Bonus Access

Unheated Living Space
1,241 Ft
2
Garage
458 Ft
2
Front Porch
190 Ft
2
Rear Porch
 

Plan Package Options

 Select Plan Package
 Need To Reverse Plan? (Optional)
  Select Foundation Option
  Add-Ons (Optional)
INCLUDED WITH YOUR PURCHASE

Free Ground shipping in the U.S.

FREE

Home Building & Product Ideas Organizer

Sub Total
$0
Free Shipping
QUESTIONS OR NEED HELP ORDERING? LIVE CHAT OR CALL US AT 866-214-2242
Plan Packages

Each set of construction documents typically includes detailed, dimensioned floor plans, basic electric layouts, cross sections, roof details, cabinet layouts, and elevations, as well as general IRC specifications. Please refer to the ARCHITECT or DESIGNER’S PLAN DETAILS link above the floor plan on any plan page to determine the specific details for each plan. Our house plans contain virtually all of the information required to construct your home. The typical plan set does not include plumbing, HVAC drawings, or engineering stamps due to the wide variety of specific needs, local codes, and climatic conditions. These details and specifications are easily obtained from your builder, contractors, and/or local engineers.

BEST PRICE GUARANTEE

Find the same house plan (modifications included!) and package for less on another site, show us the URL and we'll give you the difference plus an additional 10% back.

100% SATISFACTION GUARANTEE

We offer a one-time, 30-day exchange policy for unused, printed plan packages in the event you aren't satisfied with your first selection.

 
 

Plan 10564  Back to plan page

Loading...