Get discounts,
promos, see our
newest plans
and more!
+ 15% off any plan
See terms opt out anytime


No Thanks

Thanks for
signing up!


Use Code:

SIGNUP15

And save 15% off any plan!

Check your email for details.

CLOSE
Search Plans
Customer Reviews
     
15% off ALL House Plans Sitewide
15% off ALL House Plans Sitewide
15% off ALL House Plans Sitewide

Code: SAVE15
Sale ends midnight 4/22/2026 PST

Riverwood | 4 Bedroom Luxury Prairie Modern Style House, Plan 10546

 
 

Sq Ft
3,978 FT²

Beds
4

Baths
3.5

Stories
2

Garage
3

Depth
67' 6"

Width
70' 6"
On Sale
$1,785.00
$2,100.00
© copyright by designer
 View All 5 Images | Photographs may reflect modified home
Sq Ft
3,978 FT²
Beds
4
Baths
3.5
Stories
2
Garage
3
Depth
67' 6"
Width
70' 6"
 
Click to Zoom In on Floor Plan
© copyright by designer
 
 

About This Plan

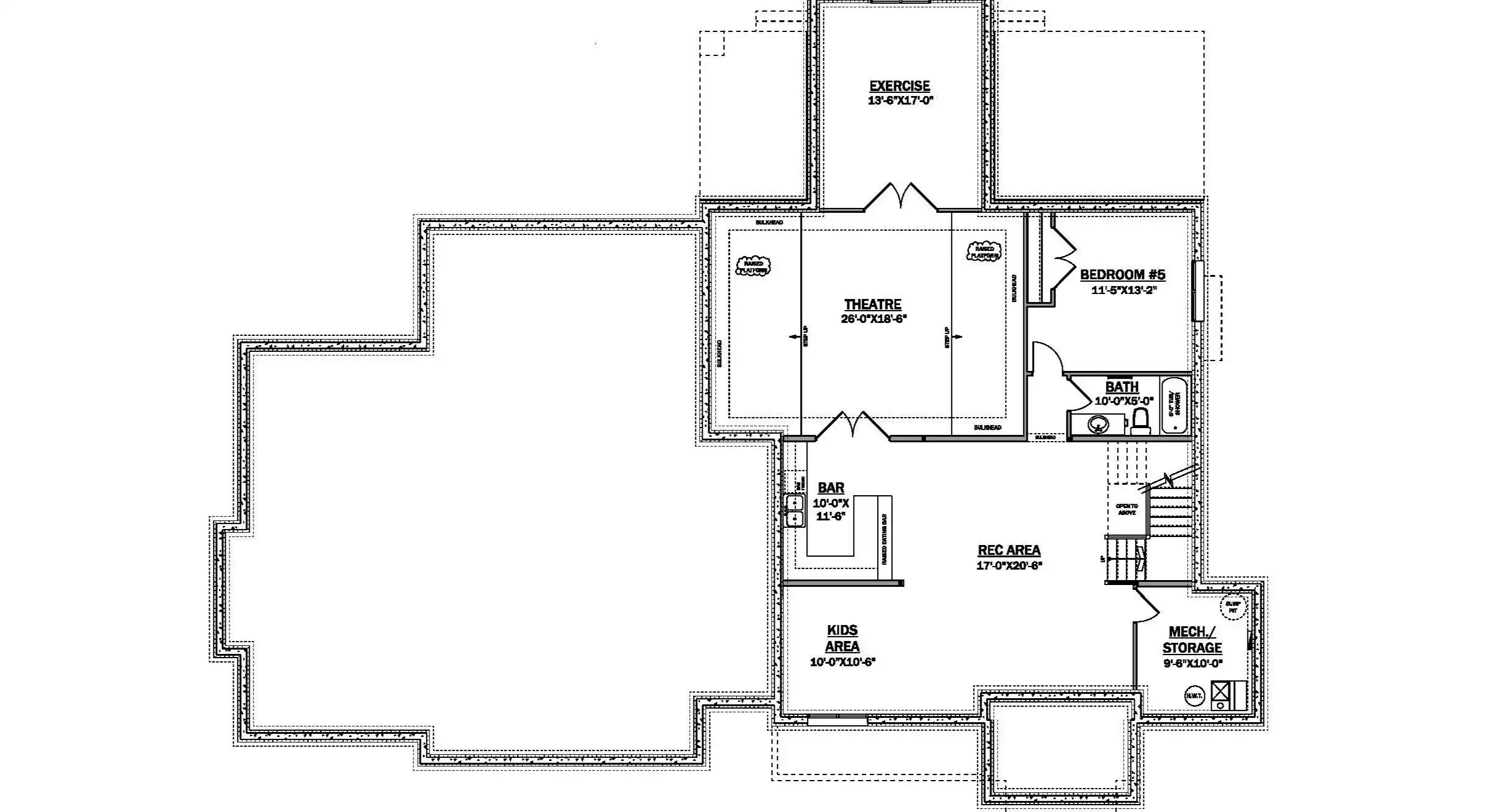
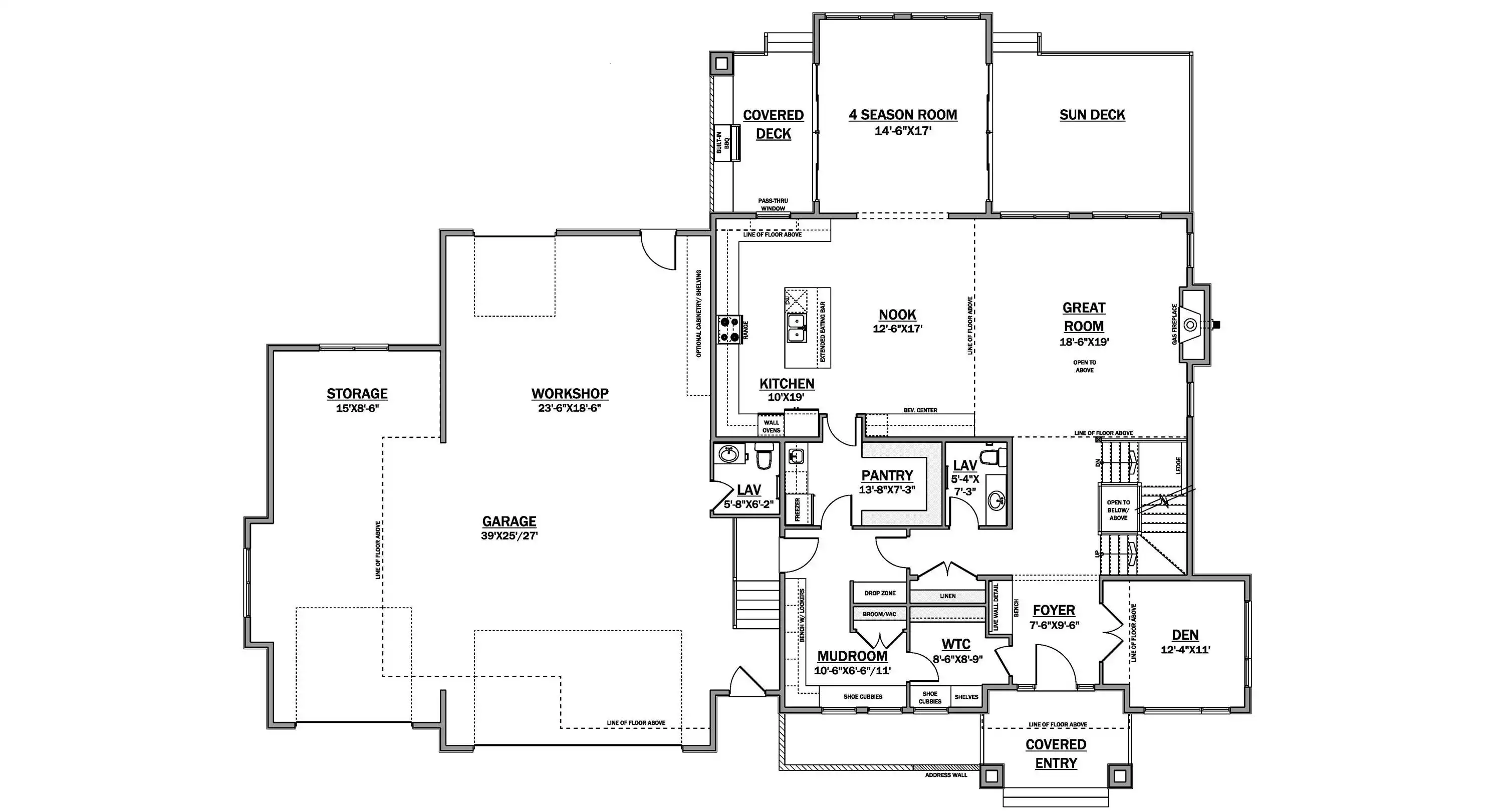
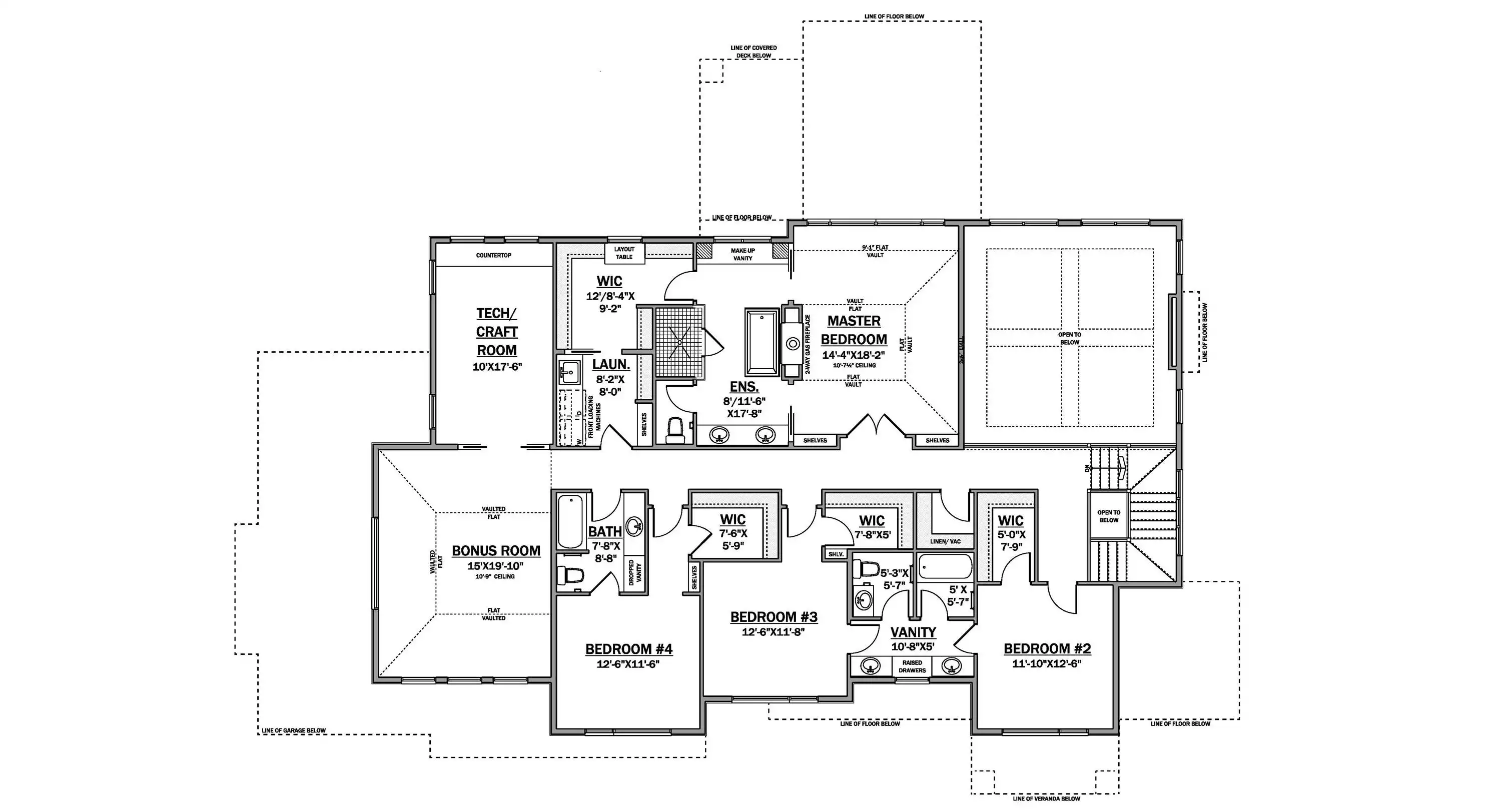
If you're looking for a grand home with Prairie modern aesthetics and tons of space to work with, House Plan 10546 has you covered. This amazing design features 3,978 square feet across two stories, plus the basement foundation can be finished for more. The house is only part of spacious picture, though--look at that garage! What looks like a standard three-car garage from the street actually extends the full depth of the house to offer room for tandem parking, storage, and/or a workshop. It even has its own powder room! As for the interior, a foyer flanked by the den and a walk-through closet to the mudroom welcomes you inside. Continue beyond the powder room and staircase to find the living spaces, complete with a U-shaped island kitchen overlooking the dining area adjacent and the two-story living area across the room. Make sure not to miss the sizeable walk-through pantry--again, connecting to the mudroom for grocery offloading convenience--or the sunny four-season room that invites you to soak in the rays. The four-season room has a sundeck on one side and a covered deck with an outdoor kitchen on the other; open up the walls of patio doors for a seamless indoor-outdoor experience! All the bedrooms are placed upstairs. The primary suite has rear views, a hip-vaulted bedroom with a fireplace, a luxe five-piece bathroom, and a huge walk-in closet that connects directly to the laundry room. The other bedrooms have front views--two in a Jack-and-Jill layout and the other a suite with a bathroom that also has hall access. There's also a bonus room that connects to a craft room at the end of the hall! And if you choose to finish the basement as outlined, you can add another bedroom and bathroom, a theater, an exercise room, a bar, and rec space to this already outstanding design. 

See All Plan Options
 

FEATURES & DETAILS

Kitchen features
Kitchen Island
U-Shaped
Walk-in Pantry
Bedroom features
Double Vanity Sink
Family Style
Guest Suite
Primary Bdrm Upstairs
Separate Tub and Shower
Walk-in Closet
Exterior features
Covered Front Porch
Covered Rear Porch
Deck
Outdoor Kitchen
Outdoor Living Space
Screened Porch/Sunroom
Additional features
Bonus Room
Fireplace
Foyer
Great Room
Home Office
Laundry 2nd Fl
Mud Room
Open Floor Plan
Rec Room
Storage Space
Vaulted Ceilings
Vaulted Great Room/Living
Vaulted Primary
Workshop
Garage Location
Front
Garage Options
Attached
Front-entry
Oversized
Rear-entry
7,320 Ft
2
Total Structure
3,978 Ft
2
Total Heated
1,730 Ft
2
1st Floor
2,248 Ft
2
2nd Floor
1,620 Ft
2
Lower Floor
4
Bedrooms
3.5
Bathrooms
3
Garage
2
Stories
70' 6"
Width
67' 6"
Depth
28' 3"
Height
10' 1"
Main Floor Ceiling
9' 1"
Upper Floor Ceiling
9' 4"
Lower Floor Ceiling
2x6
Framing
Truss
Roof Framing
8/12
Primary Roof Pitch
Single
Dwelling Number
2nd Floor
Bonus Access

Unheated Living Space
1,722 Ft
2
Garage
 

Plan Package Options

 Select Plan Package
 Need To Reverse Plan? (Optional)
  Select Foundation Option
  Add-Ons (Optional)
INCLUDED WITH YOUR PURCHASE

Free Ground shipping in the U.S.

FREE

Home Building & Product Ideas Organizer

Sub Total
$0
Free Shipping
QUESTIONS OR NEED HELP ORDERING? LIVE CHAT OR CALL US AT 866-214-2242
Plan Packages

Each set of construction documents typically includes detailed, dimensioned floor plans, basic electric layouts, cross sections, roof details, cabinet layouts, and elevations, as well as general IRC specifications. Please refer to the ARCHITECT or DESIGNER’S PLAN DETAILS link above the floor plan on any plan page to determine the specific details for each plan. Our house plans contain virtually all of the information required to construct your home. The typical plan set does not include plumbing, HVAC drawings, or engineering stamps due to the wide variety of specific needs, local codes, and climatic conditions. These details and specifications are easily obtained from your builder, contractors, and/or local engineers.

BEST PRICE GUARANTEE

Find the same house plan (modifications included!) and package for less on another site, show us the URL and we'll give you the difference plus an additional 10% back.

100% SATISFACTION GUARANTEE

We offer a one-time, 30-day exchange policy for unused, printed plan packages in the event you aren't satisfied with your first selection.

 
 

Plan 10546  Back to plan page

Loading...