Get discounts,
promos, see our
newest plans
and more!
+ 15% off any plan
See terms opt out anytime


No Thanks

Thanks for
signing up!


Use Code:

SIGNUP15

And save 15% off any plan!

Check your email for details.

CLOSE
Search Plans
Customer Reviews
     

Ancaster | 4 Bedroom Modern Style House, Plan 10525

 
 

Sq Ft
3,841 FT²

Beds
4

Baths
3.5

Stories
2

Garage
2

Depth
50'

Width
33'
From
$1,900.00
© copyright by designer
 View All 9 Images | Photographs may reflect modified home
Sq Ft
3,841 FT²
Beds
4
Baths
3.5
Stories
2
Garage
2
Depth
50'
Width
33'
 
Click to Zoom In on Floor Plan
© copyright by designer
 
 

About This Plan

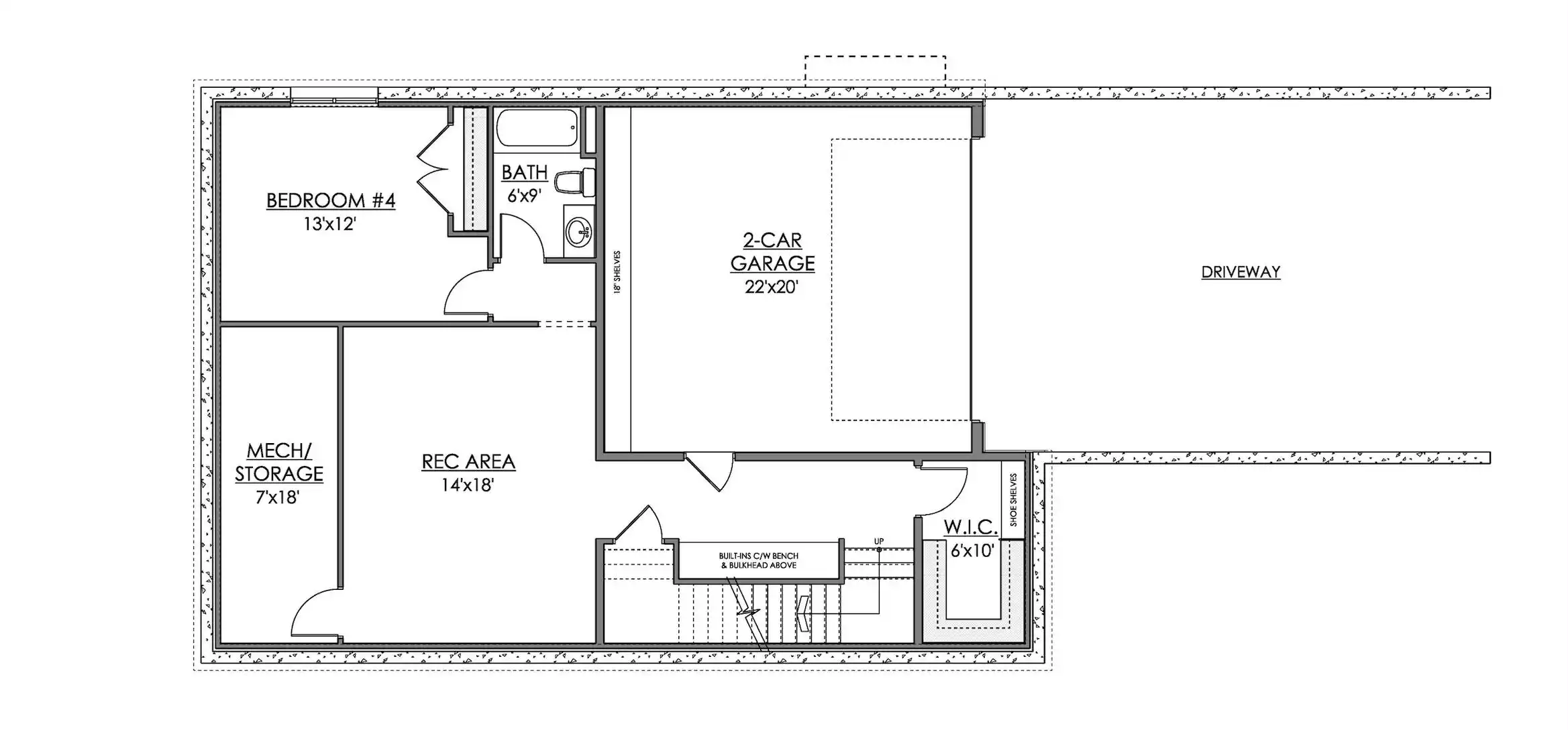
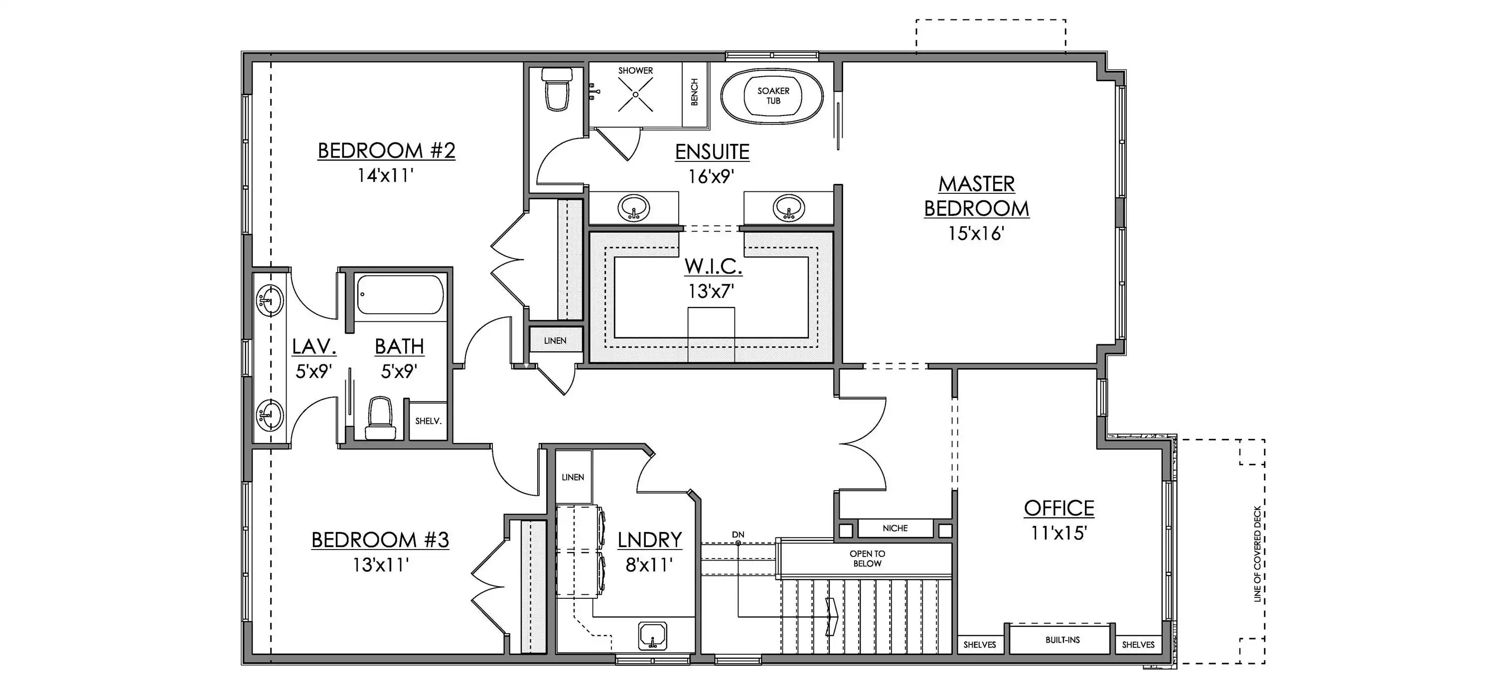
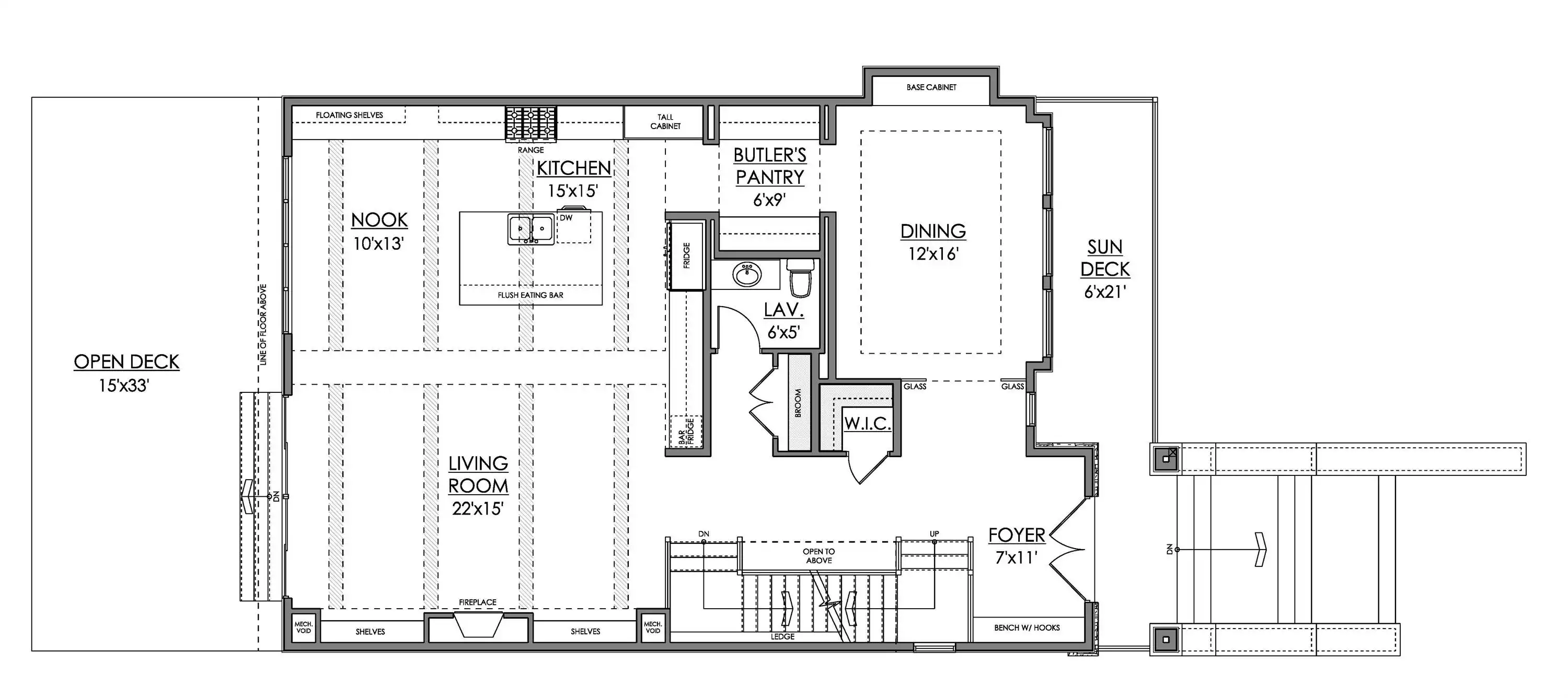
Ancaster is a striking contemporary home with a bold stone-accented exterior and sleek modern lines. Offering 2,841 square feet, this two-story layout includes 4 bedrooms, 3.5 baths, and a 2-car garage. The main floor boasts an expansive open layout featuring built-in shelving, a cozy fireplace, and a stylish L-shaped kitchen with a large island, nook, and a walk-through butler’s pantry leading to a formal dining room—perfect for entertaining. Upstairs, you'll find three bedrooms, a home office, and laundry, while the basement adds flexibility with a fourth bedroom, rec area, and extra storage space. 

See All Plan Options
 

FEATURES & DETAILS

Kitchen features
Butler's Pantry
Kitchen Island
L-Shaped
Nook / Breakfast Area
Peninsula / Eating Bar
Walk-in Pantry
Bedroom features
Double Vanity Sink
Primary Bdrm Upstairs
Separate Tub and Shower
Walk-in Closet
Exterior features
Covered Front Porch
Deck
Outdoor Living Space
Lot Options
Suited for narrow lot
Suited for view lot
Additional features
Dining Room
Fireplace
Formal LR
Foyer
Home Office
Laundry 2nd Fl
Mud Room
Open Floor Plan
Rec Room
Storage Space
Garage Location
Under
Garage Options
Attached
Front-entry
3,841 Ft
2
Total Heated
1,537 Ft
2
1st Floor
1,492 Ft
2
2nd Floor
811 Ft
2
Lower Floor
4
Bedrooms
3.5
Bathrooms
2
Garage
2
Stories
33' 0"
Width
50' 0"
Depth
28' 4"
Height
10' 1"
Main Floor Ceiling
8' 1"
Upper Floor Ceiling
9' 0"
Lower Floor Ceiling
2x6
Framing
Truss
Roof Framing
12/12
Primary Roof Pitch
Single
Dwelling Number
None
Bonus Access

Unheated Living Space
450 Ft
2
Garage
 

Plan Package Options

 Select Plan Package
$1,900
PDF Single Build

Digital plans emailed to you in PDF format that allows for printing copies and sharing electronically with contractors, subs, decorators, and more. This package includes a license to build the home one time.

$1,900
$2,600
CAD + PDF Single Build

CAD files are a complete set of construction drawings delivered electronically. They can be used for any type of modification—including major design changes and engineering—and include a release granting permission to modify the plan. Most CAD plan orders are emailed the same or next business day.
 
This package also comes with a PDF set of plans and a copyright release for making modifications and printing unlimited copies.
 
CAD files are provided in .dwg format. For details on the specific CAD program used, please refer to the PLAN DETAILS section located above the floor plan on each plan’s page.

$2,600
$3,100
CAD + PDF Unlimited Build
States N/A: CADUNLIMITEDBUILD

CAD files are a complete set of construction drawings delivered electronically. They can be used for any type of modification—including major design changes and engineering—and include a release granting permission to modify the plan. Most CAD plan orders are emailed the same or next business day.
 
This package also comes with a PDF set of plans and a multi-use building license, granting permission to construct the home an unlimited number of times, along with a copyright release for making modifications and printing unlimited copies.
 
CAD files are provided in .dwg format. For details on the specific CAD program used, please refer to the PLAN DETAILS section located above the floor plan on each plan’s page.

$3,100
 Need To Reverse Plan? (Optional)
$250
Readable Reverse

Reverse house plans with readable text and dimensions 

$250
  Select Foundation Option
  Add-Ons (Optional)
INCLUDED WITH YOUR PURCHASE

Free Ground shipping in the Continental U.S.

FREE

Design consultation with the architect or designer to discuss your plan

Home Building & Product Ideas Organizer

Sub Total
$0
Free Shipping
QUESTIONS OR NEED HELP ORDERING? LIVE CHAT OR CALL US AT 866-214-2242
Plan Packages

Each set of construction documents includes detailed, dimensioned floor plans, basic electric layouts, cross sections, roof details, cabinet layouts and elevations, as well as general IRC specifications. They contain virtually all of the information required to construct your home. The typical plan set does not include any plumbing, HVAC drawings, or engineering stamps due to the wide variety of specific needs, local codes, and climatic conditions. These details and specifications are easily obtained from your builder, contractors, and/or local engineers.

BEST PRICE GUARANTEE

find the same house plan (modifications included!) and package for less on another site, show us the URL and we'll give you the difference plus an additional 5% back.

100% SATISFACTION GUARANTEE

We offer a one-time, 30-day exchange policy for unused, non-electronic plan packages in the event you aren't satisfied with your first selection.

 
 

Plan 10525  Back to plan page

Loading...