Get discounts,
promos, see our
newest plans
and more!
+ 15% off any plan
See terms opt out anytime


No Thanks

Thanks for
signing up!


Use Code:

SIGNUP15

And save 15% off any plan!

Check your email for details.

CLOSE
Search Plans
Customer Reviews
     
15% off ALL House Plans Sitewide
15% off ALL House Plans Sitewide
15% off ALL House Plans Sitewide

Code: HONOR
Sale ends midnight 5/29/2026 PST

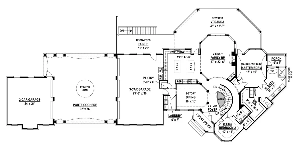
Lady Violet Luxury 4 Bedroom French Country Style House, Plan 1981

 
 

Sq Ft
3,027 FT²

Beds
4

Baths
4

Stories
2

Garage
5

Depth
68'

Width
143'
On Sale
$1,440.75
$1,695.00
© copyright by designer
 View All 7 Images | Photographs may reflect modified home
Sq Ft
3,027 FT²
Beds
4
Baths
4
Stories
2
Garage
5
Depth
68'
Width
143'
 
Click to Zoom In on Floor Plan
© copyright by designer
 
 

About This Plan

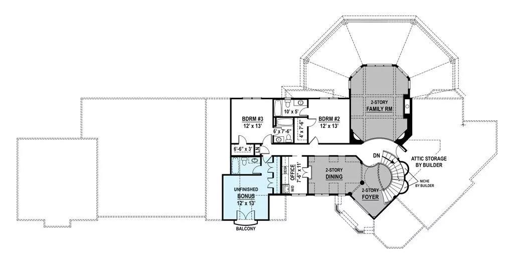
This stunning 4-bedroom French Country house plan boasts a spacious 3,027 square feet of living space. The exterior features a charming blend of brick and stonework, with a prominent turret and porte cochere adding to the curb appeal. Inside, the home's open floor plan is perfect for entertaining and everyday living. The foyer leads into a spacious two story great room, complete with a cozy fireplace, which flows into the two story dining room and kitchen. The kitchen features a large island and plenty of counter space, making it perfect for the home chef or for hosting dinner parties. The master suite features a vaulted barrel ceiling, large walk-in closet and a spa-like master bath with a soaking tub, dual vanities, and a separate shower. The upper level includes three additional bedrooms, two full baths and a spacious loft area. The outdoor living spaces are just as impressive as the interior, with a covered veranda and an expansive porch, providing the perfect spots for relaxing or entertaining. For extra living space, a finished walkout basement is available. 

See All Plan Options
 

FEATURES & DETAILS

Kitchen features
Kitchen Island
Pantry
U-Shaped
Bedroom features
Double Vanity Sink
Primary Bdrm Main Floor
Separate Tub and Shower
Walk-in Closet
Exterior features
Covered Front Porch
Covered Rear Porch
Outdoor Living Space
Rear Porch
Lot Options
Suited for sloping lot
Suited for view lot
Additional features
2 Story Volume
Bonus Room
Dining Room
Family Room
Fireplace
Foyer
Home Office
Laundry 1st Fl
Laundry 2nd Fl
Unfinished Space
Vaulted Ceilings
Vaulted Great Room/Living
Vaulted Primary
Garage Location
Side
Garage Options
Attached
Porte-cochere
6,839 Ft
2
Total Structure
3,027 Ft
2
Total Heated
2,219 Ft
2
1st Floor
808 Ft
2
2nd Floor
2,126 Ft
2
Lower Floor
1,195 Ft
2
Porte Cochere
71 Ft
2
Master Porch
4
Bedrooms
4
Bathrooms
5
Garage
2
Stories
143'
Width
68'
Depth
38'
Height
10' 0"
Main Floor Ceiling
9' 0"
Upper Floor Ceiling
9' 0"
Lower Floor Ceiling
2x4
Framing
Stick
Roof Framing
12/12
Primary Roof Pitch
Single
Dwelling Number
2nd Floor
Bonus Access

Unheated Living Space
1,463 Ft
2
Garage
81 Ft
2
Porch
709 Ft
2
Patio
293 Ft
2
Bonus Room
 

Plan Package Options

 Select Plan Package
 Need To Reverse Plan? (Optional)
  Select Foundation Option
  Add-Ons (Optional)
INCLUDED WITH YOUR PURCHASE

Free Ground shipping in the U.S.

FREE

Home Building & Product Ideas Organizer

Sub Total
$0
Free Shipping
QUESTIONS OR NEED HELP ORDERING? LIVE CHAT OR CALL US AT 866-214-2242
Plan Packages

Each set of construction documents typically includes detailed, dimensioned floor plans, basic electric layouts, cross sections, roof details, cabinet layouts, and elevations, as well as general IRC specifications. Please refer to the ARCHITECT or DESIGNER’S PLAN DETAILS link above the floor plan on any plan page to determine the specific details for each plan. Our house plans contain virtually all of the information required to construct your home. The typical plan set does not include plumbing, HVAC drawings, or engineering stamps due to the wide variety of specific needs, local codes, and climatic conditions. These details and specifications are easily obtained from your builder, contractors, and/or local engineers.

BEST PRICE GUARANTEE

Find the same house plan (modifications included!) and package for less on another site, show us the URL and we'll give you the difference plus an additional 10% back.

100% SATISFACTION GUARANTEE

We offer a one-time, 30-day exchange policy for unused, printed plan packages in the event you aren't satisfied with your first selection.

 
 

Plan 1981  Back to plan page

Loading...