Get discounts,
promos, see our
newest plans
and more!
+ 15% off any plan
See terms opt out anytime


No Thanks

Thanks for
signing up!


Use Code:

SIGNUP15

And save 15% off any plan!

Check your email for details.

CLOSE
Search Plans
Customer Reviews
     

Laura Lane | 3 Car Garage Farmhouse Style House, Plan 12294

 
 

Sq Ft
512 FT²

Beds
1

Baths
1

Stories
1

Garage
3

Depth
27'

Width
42'
From
$795.00
© copyright by designer
 View All 7 Images | Photographs may reflect modified home
Sq Ft
512 FT²
Beds
1
Baths
1
Stories
1
Garage
3
Depth
27'
Width
42'
 
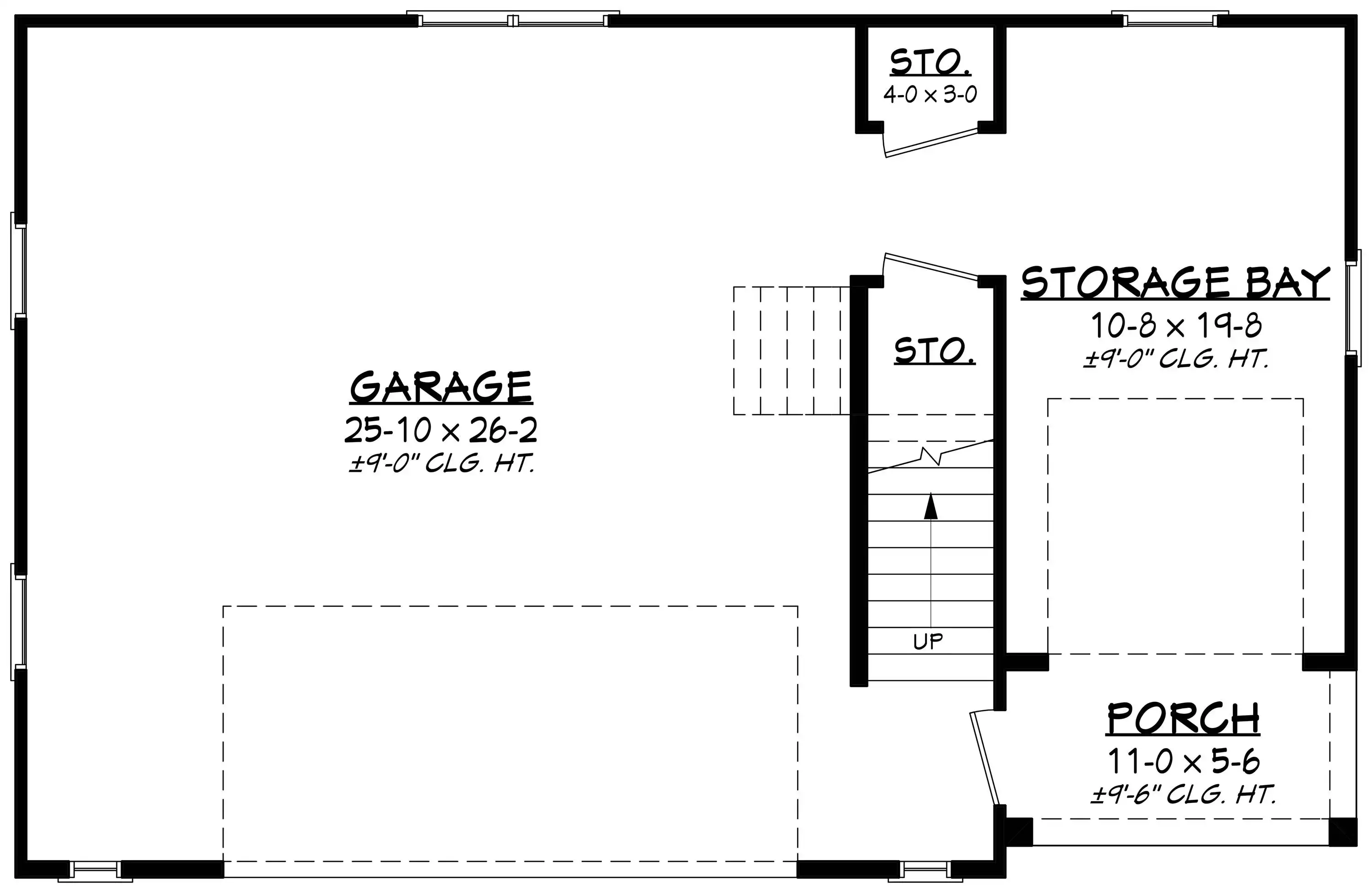
Click to Zoom In on Floor Plan
© copyright by designer
 
 

About This Plan

This 512 square feet, 1 story garage apartment plan offers 1 bedroom and 1 bath in a smart and efficient open floor plan. Located above a spacious 3 car front-entry garage, the heated living area is positioned on the second floor for privacy and flexibility. The layout includes an open living space that easily accommodates a sitting area and kitchenette, creating a comfortable environment for guests, rental use, or multigenerational living. The primary bedroom is situated upstairs and provides convenient access to a full bath. A bonus room adds versatility for a home office, hobby area, or additional storage. The covered front porch enhances the exterior with welcoming curb appeal, while generous garage space below offers practical storage and parking. 

See All Plan Options
 

FEATURES & DETAILS

Bedroom features
Primary Bdrm Upstairs
Exterior features
Covered Front Porch
Lot Options
Suited for corner lot
Additional features
Bonus Room
Open Floor Plan
Storage Space
Garage Location
Front
Garage Options
Attached
Front-entry
1,046 Ft
2
Total Structure
512 Ft
2
Total Heated
1,046 Ft
2
1st Floor
512 Ft
2
2nd Floor
1
Bedrooms
1
Bathrooms
3
Garage
1
Stories
42' 0"
Width
27' 0"
Depth
25' 0"
Height
9' 0"
Main Floor Ceiling
8' 0"
Upper Floor Ceiling
2x4
Framing
Stick
Roof Framing
12/12
Primary Roof Pitch
3/12
Secondary Roof Pitch
Garage
Dwelling Number
2nd Floor
Bonus Access

Unheated Living Space
1,046 Ft
2
Garage
61 Ft
2
Front Porch
 

Plan Package Options

 Select Plan Package
 Need To Reverse Plan? (Optional)
  Select Foundation Option
  Add-Ons (Optional)
INCLUDED WITH YOUR PURCHASE

Free Ground shipping in the U.S.

FREE

Home Building & Product Ideas Organizer

Sub Total
$0
Free Shipping
QUESTIONS OR NEED HELP ORDERING? LIVE CHAT OR CALL US AT 866-214-2242
Plan Packages

Each set of construction documents includes detailed, dimensioned floor plans, basic electric layouts, cross sections, roof details, cabinet layouts and elevations, as well as general IRC specifications. They contain virtually all of the information required to construct your home. The typical plan set does not include any plumbing, HVAC drawings, or engineering stamps due to the wide variety of specific needs, local codes, and climatic conditions. These details and specifications are easily obtained from your builder, contractors, and/or local engineers.

BEST PRICE GUARANTEE

Find the same house plan (modifications included!) and package for less on another site, show us the URL and we'll give you the difference plus an additional 10% back.

100% SATISFACTION GUARANTEE

We offer a one-time, 30-day exchange policy for unused, printed plan packages in the event you aren't satisfied with your first selection.

 
 

Plan 12294  Back to plan page

Loading...