Get discounts,
promos, see our
newest plans
and more!
+ 15% off any plan
See terms opt out anytime


No Thanks

Thanks for
signing up!


Use Code:

SIGNUP15

And save 15% off any plan!

Check your email for details.

CLOSE
Search Plans
Customer Reviews
     
15% off ALL House Plans Sitewide
15% off ALL House Plans Sitewide
15% off ALL House Plans Sitewide

Code: SAVE15
Sale ends midnight 4/19/2026 PST

Carolina Walkout Basement Farmhouse Style House, Plan 10158

 
 

Sq Ft
3,759 FT²

Beds
6

Baths
2.5

Stories
2

Garage
2

Depth
42' 6"

Width
64' 2"
On Sale
$2,108.00
$2,480.00
© copyright by designer
 View All 14 Images | Photographs may reflect modified home
Sq Ft
3,759 FT²
Beds
6
Baths
2.5
Stories
2
Garage
2
Depth
42' 6"
Width
64' 2"
 
Click to Zoom In on Floor Plan
© copyright by designer
 
 

About This Plan

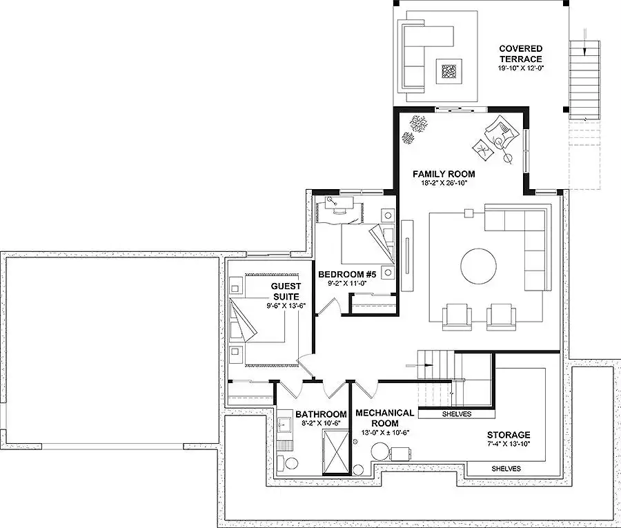
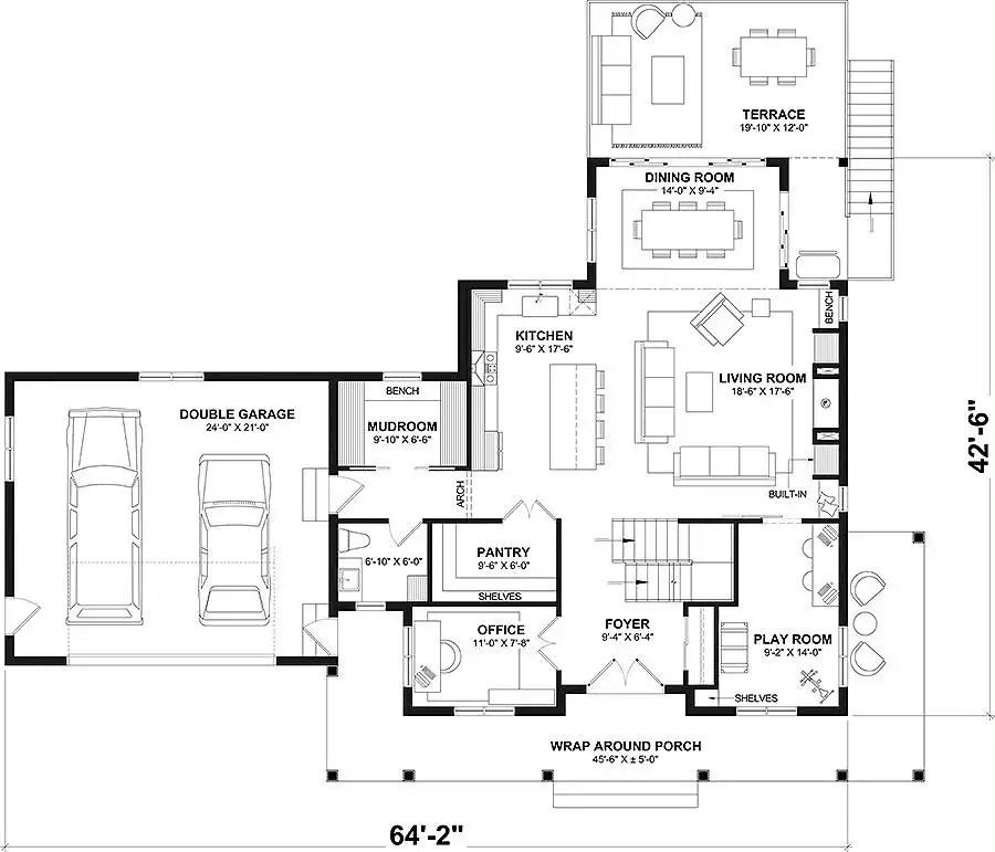
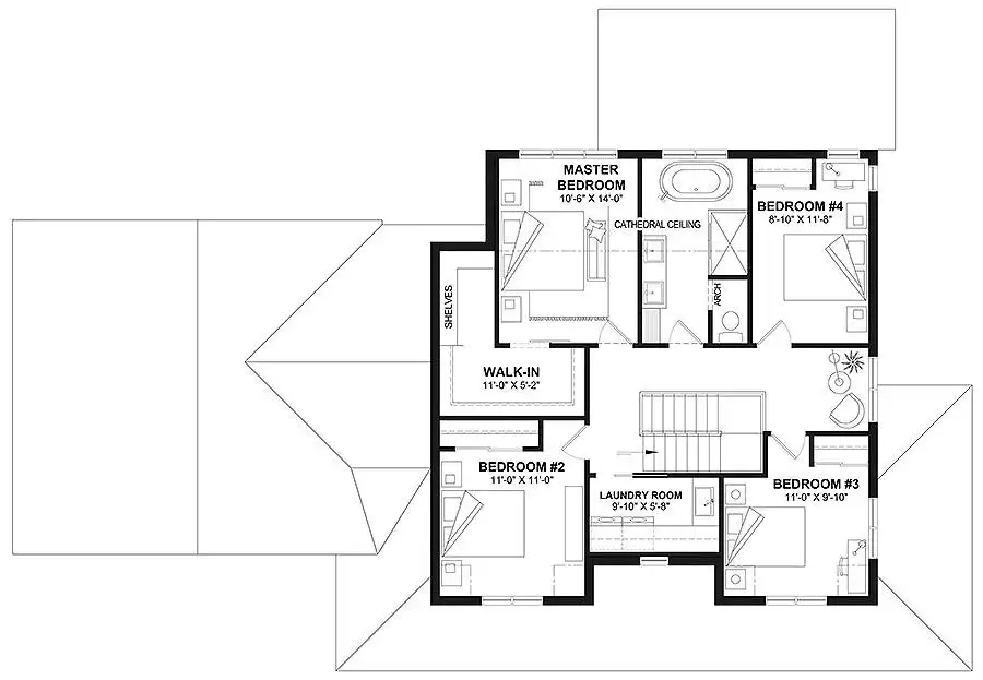
If you need a farmhouse with plenty of room to spread out, give House Plan 10158 your consideration! Boasting 3,759 square feet across two stories plus the finished walkout basement, this impressive home provides ample accommodations for large families. Step inside the main level and the foyer is flanked by a coat closet and the office. Farther inside, the hallway that connects to the garage includes the walk-in pantry, mudroom, and powder room. The open-concept living areas visually combine the island kitchen, sunny dining room, and living room with a fireplace. Make sure not to miss the playroom hidden behind the barn door in the corner of the living room! Upstairs, the vaulted primary bedroom shares a five-piece hall bath with three additional bedrooms. The laundry room is also located on this level for convenience. Head down to the basement and there's a family room, two more bedrooms, and another full bath. That gives a total of six bedrooms and two-and-a-half bathrooms. What a thoughtful design on every level!  

See All Plan Options
 

FEATURES & DETAILS

Kitchen features
Kitchen Island
L-Shaped
Walk-in Pantry
Bedroom features
Double Vanity Sink
Family Style
Guest Suite
Primary Bdrm Upstairs
Nursery Room
Separate Tub and Shower
Split Bedrooms
Walk-in Closet
Exterior features
Covered Front Porch
Deck
Outdoor Living Space
Wraparound Porch
Lot Options
Suited for sloping lot
Additional features
Arches
Dining Room
Family Room
Fireplace
Foyer
Great Room
Home Office
Laundry 2nd Fl
Mud Room
Open Floor Plan
Vaulted Primary
Garage Location
Side
Garage Options
Attached
Front-entry
4,831 Ft
2
Total Structure
3,759 Ft
2
Total Heated
1,324 Ft
2
1st Floor
1,111 Ft
2
2nd Floor
1,324 Ft
2
Lower Floor
6
Bedrooms
2.5
Bathrooms
2
Garage
2
Stories
64' 2"
Width
42' 6"
Depth
31' 5"
Height
9' 0"
Main Floor Ceiling
8' 0"
Upper Floor Ceiling
8' 0"
Lower Floor Ceiling
8' 0"
Living/Great Room Ceiling
9' 0"
Foyer Ceiling
11' 8"
Primary Ceiling
2x6
Framing
Truss
Roof Framing
Single
Dwelling Number

Unheated Living Space
566 Ft
2
Garage
228 Ft
2
Front Porch
279 Ft
2
Rear Porch
 

Plan Package Options

 Select Plan Package
 Need To Reverse Plan? (Optional)
  Select Foundation Option
  Add-Ons (Optional)
INCLUDED WITH YOUR PURCHASE

Free Ground shipping in the U.S.

FREE

Home Building & Product Ideas Organizer

Sub Total
$0
Free Shipping
Please allow 3-5 business days for delivery of this plan Please check our PDFs NOW collection for plans that can be downloaded and received immediately or live chat us to help you find a similar plan available now.
QUESTIONS OR NEED HELP ORDERING? LIVE CHAT OR CALL US AT 866-214-2242
Plan Packages

Each set of construction documents includes detailed, dimensioned floor plans, basic electric layouts, cross sections, roof details, cabinet layouts and elevations, as well as general IRC specifications. They contain virtually all of the information required to construct your home. The typical plan set does not include any plumbing, HVAC drawings, or engineering stamps due to the wide variety of specific needs, local codes, and climatic conditions. These details and specifications are easily obtained from your builder, contractors, and/or local engineers.

BEST PRICE GUARANTEE

Find the same house plan (modifications included!) and package for less on another site, show us the URL and we'll give you the difference plus an additional 10% back.

100% SATISFACTION GUARANTEE

We offer a one-time, 30-day exchange policy for unused, printed plan packages in the event you aren't satisfied with your first selection.

 
 

Plan 10158  Back to plan page

Loading...