Get discounts,
promos, see our
newest plans
and more!
+ 15% off any plan
See terms opt out anytime


No Thanks

Thanks for
signing up!


Use Code:

SIGNUP15

And save 15% off any plan!

Check your email for details.

CLOSE
Search Plans
Customer Reviews
     
15% off ALL House Plans Sitewide
15% off ALL House Plans Sitewide
15% off ALL House Plans Sitewide

Code: SAVE15
Sale ends midnight 4/22/2026 PST

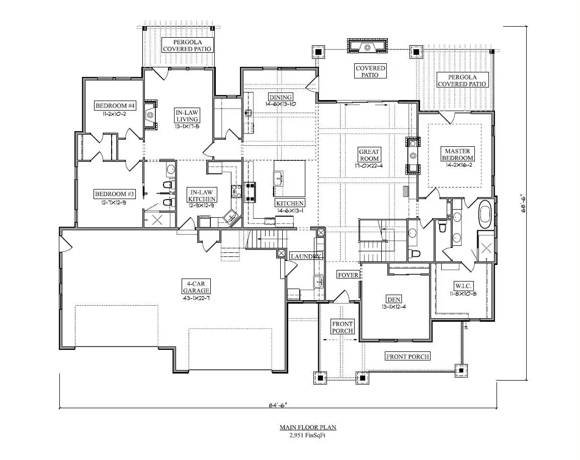
Timberleaf Crossing | 4 Bedroom Craftsman Style House, Plan 11474

 
 

Sq Ft
3,359 FT²

Beds
4

Baths
3.5

Stories
2

Garage
4

Depth
68' 6"

Width
84' 6"
On Sale
$1,870.00
$2,200.00
© copyright by designer
 View All 5 Images | Photographs may reflect modified home
Sq Ft
3,359 FT²
Beds
4
Baths
3.5
Stories
2
Garage
4
Depth
68' 6"
Width
84' 6"
 
Click to Zoom In on Floor Plan
© copyright by designer
 
 

About This Plan

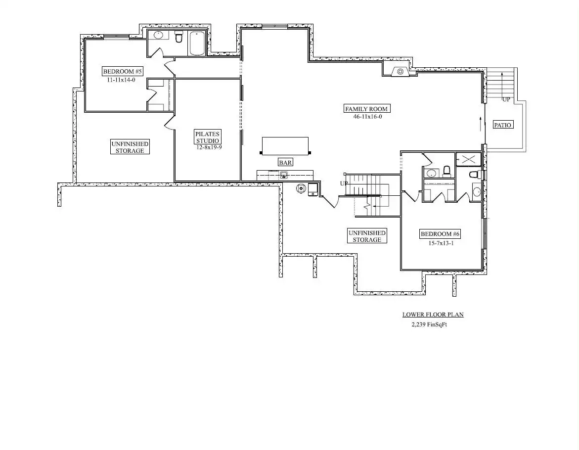
With 3,359 square feet of heated living space, this home combines Craftsman detail with modern farmhouse charm. A welcoming covered front porch opens to a foyer and great room with a cozy fireplace and an easy flow into the dining room and kitchen. The kitchen features a large island, peninsula bar, and butler’s pantry, perfect for entertaining and everyday living. The primary suite is located on the main floor with a luxurious bath that includes a soaking tub, separate shower, and walk-in closet. A guest or in-law suite is also on the first level, offering comfort and privacy. Upstairs, you’ll find additional bedrooms and flexible spaces for family or work. With a covered rear porch and abundant storage, this home balances warmth, functionality, and style. 

See All Plan Options
 

FEATURES & DETAILS

Kitchen features
Butler's Pantry
Kitchen Island
L-Shaped
Peninsula / Eating Bar
Bedroom features
Double Vanity Sink
Guest Suite
Primary Bdrm Main Floor
Separate Tub and Shower
Split Bedrooms
Walk-in Closet
Exterior features
Covered Front Porch
Covered Rear Porch
Lot Options
Suited for corner lot
Additional features
Dining Room
Family Room
Fireplace
Foyer
Great Room
Home Office
In-law Suite
Laundry 1st Fl
Mud Room
Open Floor Plan
Rec Room
Storage Space
Unfinished Space
Garage Location
Front
Garage Options
Attached
Front-entry
3,359 Ft
2
Total Heated
2,951 Ft
2
1st Floor
408 Ft
2
2nd Floor
2,239 Ft
2
Lower Floor
710 Ft
2
Lower Level Unfinished
750 Ft
2
Deck/Porch Unfinished
4
Bedrooms
3.5
Bathrooms
4
Garage
2
Stories
84' 6"
Width
68' 6"
Depth
27' 5"
Height
10' 0"
Main Floor Ceiling
7' 0"
Upper Floor Ceiling
10' 0"
Lower Floor Ceiling
2x6
Framing
9/12
Primary Roof Pitch
12/12
Secondary Roof Pitch
Single
Dwelling Number

Unheated Living Space
1,108 Ft
2
Garage
750 Ft
2
Porch
 

Plan Package Options

 Select Plan Package
 Need To Reverse Plan? (Optional)
  Select Foundation Option
  Add-Ons (Optional)
INCLUDED WITH YOUR PURCHASE

Free Ground shipping in the U.S.

FREE

Home Building & Product Ideas Organizer

Sub Total
$0
Free Shipping
QUESTIONS OR NEED HELP ORDERING? LIVE CHAT OR CALL US AT 866-214-2242
Plan Packages

Each set of construction documents typically includes detailed, dimensioned floor plans, basic electric layouts, cross sections, roof details, cabinet layouts, and elevations, as well as general IRC specifications. Please refer to the ARCHITECT or DESIGNER’S PLAN DETAILS link above the floor plan on any plan page to determine the specific details for each plan. Our house plans contain virtually all of the information required to construct your home. The typical plan set does not include plumbing, HVAC drawings, or engineering stamps due to the wide variety of specific needs, local codes, and climatic conditions. These details and specifications are easily obtained from your builder, contractors, and/or local engineers.

BEST PRICE GUARANTEE

Find the same house plan (modifications included!) and package for less on another site, show us the URL and we'll give you the difference plus an additional 10% back.

100% SATISFACTION GUARANTEE

We offer a one-time, 30-day exchange policy for unused, printed plan packages in the event you aren't satisfied with your first selection.

 
 

Plan 11474  Back to plan page

Loading...