Get discounts,
promos, see our
newest plans
and more!
+ 15% off any plan
See terms opt out anytime


No Thanks

Thanks for
signing up!


Use Code:

SIGNUP15

And save 15% off any plan!

Check your email for details.

CLOSE
Search Plans
Customer Reviews
     
15% off ALL House Plans Sitewide
15% off ALL House Plans Sitewide
15% off ALL House Plans Sitewide

Code: HONOR
Sale ends midnight 5/29/2026 PST

Idaho Drive | 2 Bedroom Barndominium Style House, Plan 12351

 
 

Sq Ft
2,692 FT²

Beds
2

Baths
2.5

Stories
2

Garage
3

Depth
68'

Width
90'
On Sale
$1,232.50
$1,450.00
© copyright by designer
 View All 19 Images | Photographs may reflect modified home
Sq Ft
2,692 FT²
Beds
2
Baths
2.5
Stories
2
Garage
3
Depth
68'
Width
90'
 
Click to Zoom In on Floor Plan
© copyright by designer
 
 

About This Plan

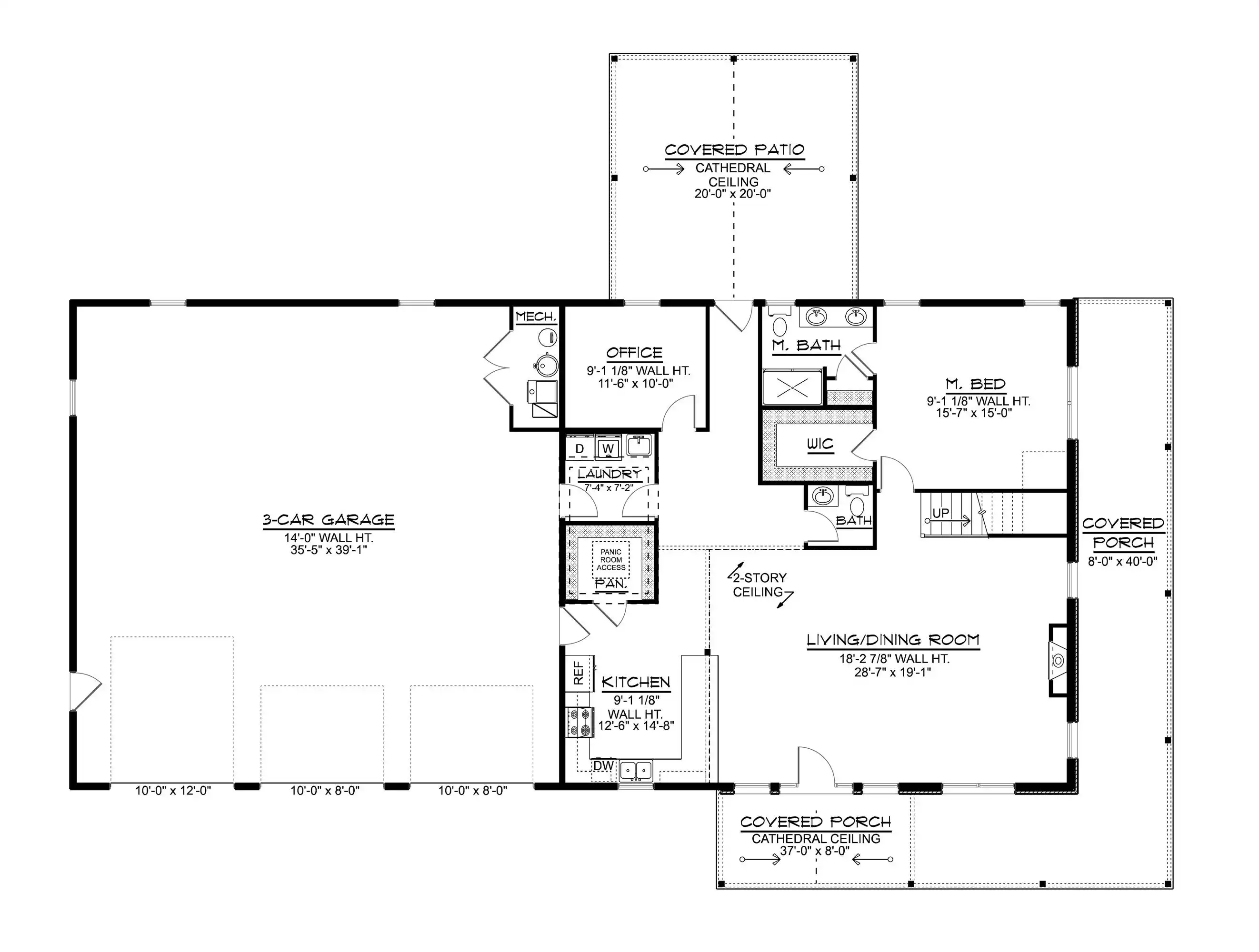
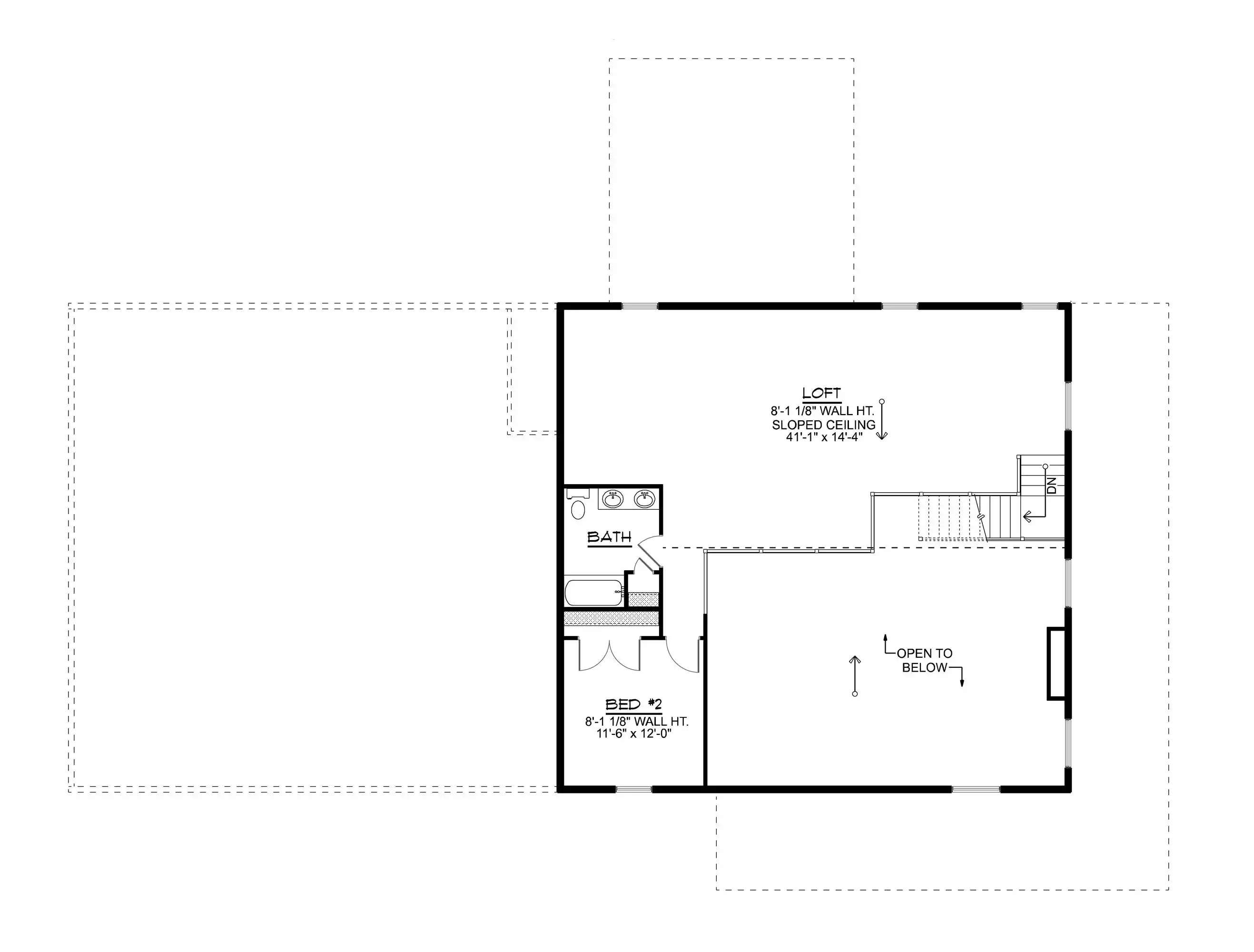
This 2,692 square foot home offers 2 bedrooms and 2.5 bathrooms in a spacious two story layout with generous indoor and outdoor living. The main floor opens into an airy central living space where a fireplace creates warmth and anchors the open floor plan. The kitchen features a U-shaped layout with a peninsula eating bar and walk-in pantry, offering practical workspace and easy connection to nearby gathering areas. A dedicated home office and first floor laundry add flexibility and convenience to the main level. The primary suite is located on the main floor and includes a walk-in closet, double vanity sinks, and comfortable privacy away from upstairs living areas. Split bedroom placement helps maintain separation between private spaces and shared rooms. Upstairs, a loft provides additional room for relaxing, reading, or flexible use. A wide wraparound porch, oversized attached 3 car garage, and deck complete this welcoming design. 

See All Plan Options
 

FEATURES & DETAILS

Kitchen features
Peninsula / Eating Bar
U-Shaped
Walk-in Pantry
Bedroom features
Double Vanity Sink
Primary Bdrm Main Floor
Split Bedrooms
Walk-in Closet
Exterior features
Covered Front Porch
Wraparound Porch
Lot Options
Suited for corner lot
Additional features
Fireplace
Home Office
Laundry 1st Fl
Loft / Balcony
Open Floor Plan
Garage Location
Side
Garage Options
Attached
Front-entry
Oversized
5,308 Ft
2
Total Structure
2,692 Ft
2
Total Heated
1,680 Ft
2
1st Floor
1,012 Ft
2
2nd Floor
2
Bedrooms
2.5
Bathrooms
3
Garage
2
Stories
90' 0"
Width
68' 0"
Depth
27' 1"
Height
9' 0"
Main Floor Ceiling
8' 0"
Upper Floor Ceiling
2x6
Framing
Truss
Roof Framing
5/12
Primary Roof Pitch
8/12
Secondary Roof Pitch
Single
Dwelling Number

Unheated Living Space
1,600 Ft
2
Garage
616 Ft
2
Porch
400 Ft
2
Patio
 

Plan Package Options

 Select Plan Package
 Need To Reverse Plan? (Optional)
  Select Foundation Option
  Add-Ons (Optional)
INCLUDED WITH YOUR PURCHASE

Free Ground shipping in the U.S.

FREE

Home Building & Product Ideas Organizer

Sub Total
$0
Free Shipping
QUESTIONS OR NEED HELP ORDERING? LIVE CHAT OR CALL US AT 866-214-2242
Plan Packages

Each set of construction documents typically includes detailed, dimensioned floor plans, basic electric layouts, cross sections, roof details, cabinet layouts, and elevations, as well as general IRC specifications. Please refer to the ARCHITECT or DESIGNER’S PLAN DETAILS link above the floor plan on any plan page to determine the specific details for each plan. Our house plans contain virtually all of the information required to construct your home. The typical plan set does not include plumbing, HVAC drawings, or engineering stamps due to the wide variety of specific needs, local codes, and climatic conditions. These details and specifications are easily obtained from your builder, contractors, and/or local engineers.

BEST PRICE GUARANTEE

Find the same house plan (modifications included!) and package for less on another site, show us the URL and we'll give you the difference plus an additional 10% back.

100% SATISFACTION GUARANTEE

We offer a one-time, 30-day exchange policy for unused, printed plan packages in the event you aren't satisfied with your first selection.

 
 

Plan 12351  Back to plan page

Loading...