Get discounts,
promos, see our
newest plans
and more!
+ 15% off any plan
See terms opt out anytime


No Thanks

Thanks for
signing up!


Use Code:

SIGNUP15

And save 15% off any plan!

Check your email for details.

CLOSE
Search Plans
Customer Reviews
     
America’s Top Home Plans
Trusted House Plans From America's Leading Architects & Designers
20% off ALL House Plans Sitewide

Code: SAVE20
Sale ends midnight 5/13/2026 PST

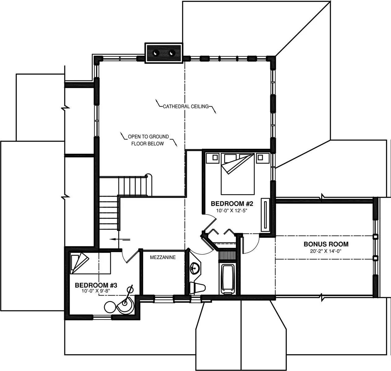
The Wakefield 2 Spacious European Style House, Plan 1191

 
 

Sq Ft
2,111 FT²

Beds
2

Baths
2.5

Stories
2

Garage
2

Depth
53' 2"

Width
56'
From
$1,655.00
© copyright by designer
 View All 8 Images | Photographs may reflect modified home
Sq Ft
2,111 FT²
Beds
2
Baths
2.5
Stories
2
Garage
2
Depth
53' 2"
Width
56'
 
Click to Zoom In on Floor Plan
© copyright by designer
 
 

About This Plan

 Spectacular curb appeal and stunning natural light define this magnificent country style home. With many touches and features of European styles, this 2,111 square foot home is beautiful from top to bottom. A covered front entryway begins the journey in to this home as the front door gives way to a grand foyer as well as a coat closet and half-bathroom. A 2-car garage on the side of the home provides ample space and storage throughout. Beyond the entrance you find the great room and formal dining room, both lined in gorgeous windows that bathe the home in natural light. The open layout provides direct access to the eat-in kitchen, as well as a covered back and side porch. A marvelous sun room is available off of the kitchen and is perfect for opening the many windows and enjoying the breeze on a cool spring day. Off of the grand room you will find a formal sitting room that is great for conversations with guests. The final piece to the first floor is the master suite and its wonderful bathroom and closet spaces. From there the home moves upstairs to the second floor and its second bedroom and full bathroom, as well as a full office space that provides tranquil productivity thanks to its private location within the home. This plan also offers an unfinished basement that is perfect for expanding the livable space and putting your personal touch on this wonderful house plan.

 

See All Plan Options
 

FEATURES & DETAILS

Kitchen features
Country Kitchen
Kitchen Island
Bedroom features
Double Vanity Sink
His and Hers Primary Closets
Primary Bdrm Main Floor
Separate Tub and Shower
Sitting Area
Split Bedrooms
Walk-in Closet
Exterior features
Covered Front Porch
Covered Rear Porch
Front Porch
Screened Porch/Sunroom
Foundation Options
Basement
Crawlspace
Slab
Additional features
2 Story Volume
Dining Room
Exercise Room
Family Room
Fireplace
Foyer
Great Room
Home Office
Laundry 1st Fl
Open Floor Plan
Unfinished Space
Vaulted Ceilings
Workshop
Garage Location
Side
Garage Options
Attached
Side-entry
2,993 Ft
2
Total Structure
2,111 Ft
2
Total Heated
1,545 Ft
2
1st Floor
566 Ft
2
2nd Floor
2
Bedrooms
2.5
Bathrooms
2
Garage
2
Stories
56' 0"
Width
53' 2"
Depth
29' 6"
Height
8' 0"
Main Floor Ceiling
8' 0"
Upper Floor Ceiling
2x6
Framing
Truss
Roof Framing
8
Primary Roof Pitch
8
Secondary Roof Pitch
4
Porch Roof Pitch
Single
Dwelling Number
2nd Floor
Bonus Access

Unheated Living Space
603 Ft
2
Garage
279 Ft
2
Bonus Room
 

Plan Package Options

 Select Plan Package
 Need To Reverse Plan? (Optional)
  Select Foundation Option
  Add-Ons (Optional)
INCLUDED WITH YOUR PURCHASE

Free Ground shipping in the U.S.

FREE

Home Building & Product Ideas Organizer

Sub Total
$0
Free Shipping
Please allow 3-5 business days for delivery of this plan Please check our PDFs NOW collection for plans that can be downloaded and received immediately or live chat us to help you find a similar plan available now.
QUESTIONS OR NEED HELP ORDERING? LIVE CHAT OR CALL US AT 866-214-2242
Plan Packages

Each set of construction documents typically includes detailed, dimensioned floor plans, basic electric layouts, cross sections, roof details, cabinet layouts, and elevations, as well as general IRC specifications. Please refer to the ARCHITECT or DESIGNER’S PLAN DETAILS link above the floor plan on any plan page to determine the specific details for each plan. Our house plans contain virtually all of the information required to construct your home. The typical plan set does not include plumbing, HVAC drawings, or engineering stamps due to the wide variety of specific needs, local codes, and climatic conditions. These details and specifications are easily obtained from your builder, contractors, and/or local engineers.

BEST PRICE GUARANTEE

Find the same house plan (modifications included!) and package for less on another site, show us the URL and we'll give you the difference plus an additional 10% back.

100% SATISFACTION GUARANTEE

We offer a one-time, 30-day exchange policy for unused, printed plan packages in the event you aren't satisfied with your first selection.

 
 

Plan 1191  Back to plan page

Loading...