Get discounts,
promos, see our
newest plans
and more!
+ 15% off any plan
See terms opt out anytime


No Thanks

Thanks for
signing up!


Use Code:

SIGNUP15

And save 15% off any plan!

Check your email for details.

CLOSE
Search Plans
Customer Reviews
     
22% Off House Plans Sitewide Ends Sunday
22% Off House Plans Sitewide Ends Sunday
22% Off House Plans Sitewide Ends Sunday

Code: SAVE22
Sale ends midnight 12/7/2025 PST

Contemporary 211 Modern Contemporary Style House, Plan 7434

 
 

Sq Ft
2,800 FT²

Beds
3

Baths
3

Stories
1

Garage
3

Depth
40' 6"

Width
83'
On Sale
$1,365.00
$1,750.00
© copyright by designer
 View All 5 Images | Photographs may reflect modified home
Sq Ft
2,800 FT²
Beds
3
Baths
3
Stories
1
Garage
3
Depth
40' 6"
Width
83'
 
Click to Zoom In on Floor Plan
© copyright by designer
 
 

About This Plan

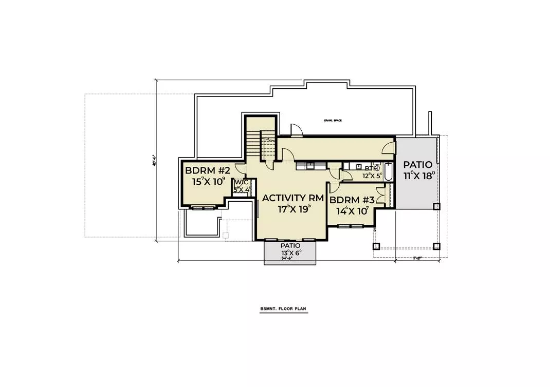
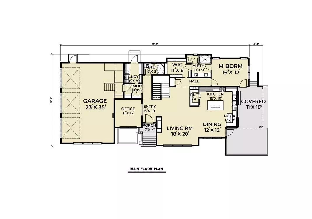
A salute to all that you love about modern homes, this sprawling contemporary plan provides sleek designs paired with exquisite functionality. Sharp edges and mixed design elements of stone, wood, and metal make this 2,800 square foot home a spacious modern masterpiece. Between a main floor and a large basement, this plan provides desired features such as a three car garage and a double-level covered porch and patio area, great for entertaining. Past the covered front porch, you enter in to the vaulted foyer which finds a home office nearby. To your right you begin the journey throughout this home’s living space. An open concept design joins the living room, dining room, and gourmet kitchen together as one seamless space. Access to the two-story deck is available via the dining room. Behind the kitchen is a small hallway that leads to the master. Relax in the spacious shower and get ready for a productive day in the large wardrobe area. Moving downstairs you will find a 323 square foot activity room that can be used for a wide variety of things, as well as two full bedrooms, one with its own walk-in closet! A shared full bathroom is available nearby, as is exterior access to the covered patio. This separation of the bedrooms and living space provides great amounts of privacy for guests and family members alike. 

See All Plan Options
 

FEATURES & DETAILS

Kitchen features
Kitchen Island
Peninsula / Eating Bar
Walk-in Pantry
Bedroom features
Double Vanity Sink
Primary Bdrm Main Floor
Walk-in Closet
Exterior features
Rear Porch
Foundation Options
Basement
Additional features
Dining Room
Fireplace
Great Room
Home Office
Laundry 1st Fl
Mud Room
Open Floor Plan
Rec Room
Garage Location
Side
Garage Options
Attached
Side-entry
3,714 Ft
2
Total Structure
2,800 Ft
2
Total Heated
1,789 Ft
2
1st Floor
1,011 Ft
2
Lower Floor
3
Bedrooms
3
Bathrooms
3
Garage
1
Stories
83' 0"
Width
40' 6"
Depth
28' 6"
Height
9' 0"
Main Floor Ceiling
9' 0"
Upper Floor Ceiling
2x6
Framing
Truss
Roof Framing
2:12
Primary Roof Pitch
Single
Dwelling Number

Unheated Living Space
914 Ft
2
Garage
881 Ft
2
Patio
 

Plan Package Options

 Select Plan Package
Sale: $682
PDF Bid Set
$875

Home plans stamped "NOT FOR CONSTRUCTION" for cost estimating and bidding purposes only; a minimum 5 set plan package must be purchased within 90 days for a license to build plan set; a credit will be applied towards your house plan upgrade

Sale: $682
Sale: $1,365
PDF Single Build
$1,750

Digital plans emailed to you in PDF format that allows for printing copies and sharing electronically with contractors, subs, decorators, and more. This package includes a license to build the home one time.

Sale: $1,365
Sale: $1,716
5 Printed Sets + PDF
$2,200

Digital plan emailed to you in PDF format that allows for printing copies on a home printer or local print shop and sharing with contractors, subs, decorators, and more. PLUS five printed sets shipped and delivered 3-5 business days.

Sale: $1,716
Sale: $1,755
CAD + PDF Single Build
$2,250

CAD files are a complete set of construction drawings delivered electronically. They can be used for any type of modification—including major design changes and engineering—and include a release granting permission to modify the plan. Most CAD plan orders are emailed the same or next business day.
 
This package also comes with a PDF set of plans and a copyright release for making modifications and printing unlimited copies.
 
CAD files are provided in .dwg format. For details on the specific CAD program used, please refer to the PLAN DETAILS section located above the floor plan on each plan’s page.

Sale: $1,755
 Need To Reverse Plan? (Optional)
$195
Readable Reverse

Reverse house plans with readable text and dimensions 

$195
  Select Foundation Option
  Add-Ons (Optional)
INCLUDED WITH YOUR PURCHASE

Free Ground shipping in the Continental U.S.

FREE

Design consultation with the architect or designer to discuss your plan

Home Building & Product Ideas Organizer

Sub Total
$0
Free Shipping
QUESTIONS OR NEED HELP ORDERING? LIVE CHAT OR CALL US AT 866-214-2242
Plan Packages

Each set of construction documents includes detailed, dimensioned floor plans, basic electric layouts, cross sections, roof details, cabinet layouts and elevations, as well as general IRC specifications. They contain virtually all of the information required to construct your home. The typical plan set does not include any plumbing, HVAC drawings, or engineering stamps due to the wide variety of specific needs, local codes, and climatic conditions. These details and specifications are easily obtained from your builder, contractors, and/or local engineers.

BEST PRICE GUARANTEE

find the same house plan (modifications included!) and package for less on another site, show us the URL and we'll give you the difference plus an additional 5% back.

100% SATISFACTION GUARANTEE

We offer a one-time, 30-day exchange policy for unused, non-electronic plan packages in the event you aren't satisfied with your first selection.

 
 

Plan 7434  Back to plan page

Loading...