Get discounts,
promos, see our
newest plans
and more!
+ 15% off any plan
See terms opt out anytime


No Thanks

Thanks for
signing up!


Use Code:

SIGNUP15

And save 15% off any plan!

Check your email for details.

CLOSE
Search Plans
Customer Reviews
     
15% off ALL House Plans Sitewide
15% off ALL House Plans Sitewide
15% off ALL House Plans Sitewide

Code: HONOR
Sale ends midnight 5/31/2026 PST

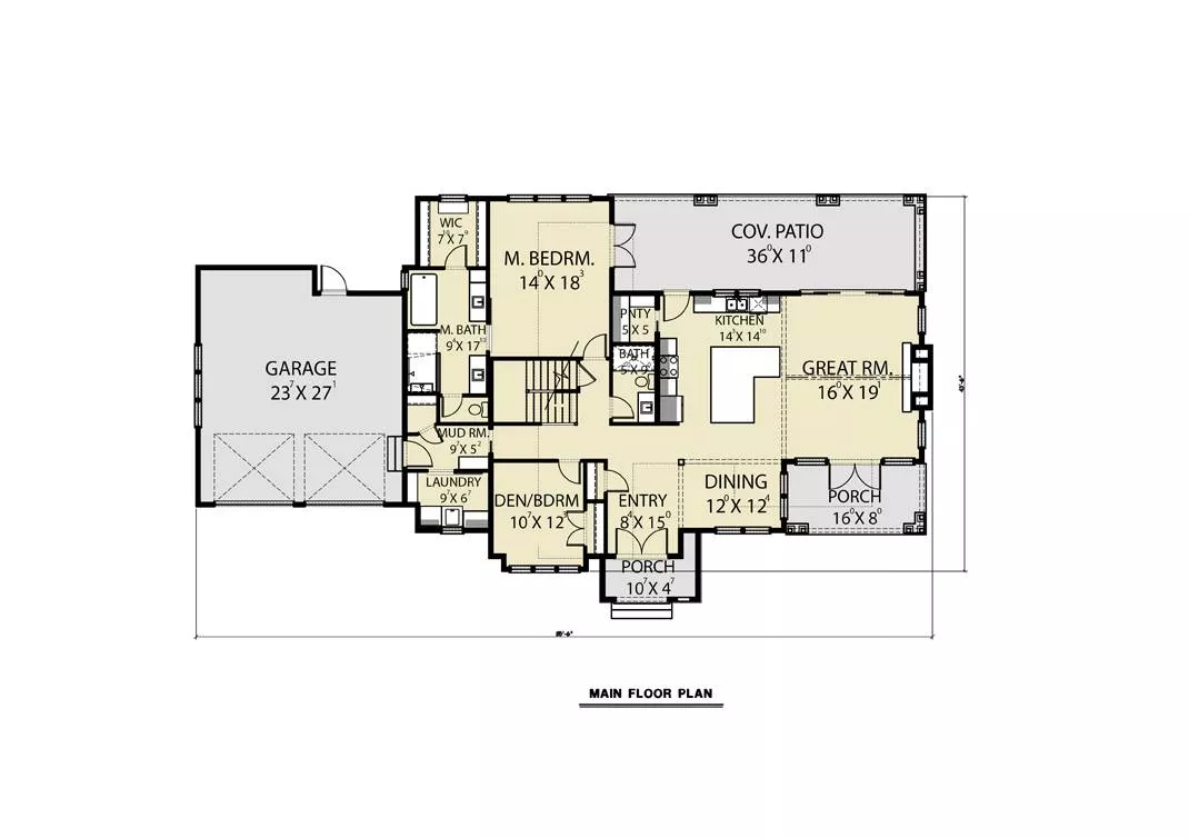
Two Story Flexible Craftsman Style House, Plan 7870

 
 

Sq Ft
2,794 FT²

Beds
4

Baths
3

Stories
2

Garage
1

Depth
47'

Width
61' 6"
On Sale
$1,487.50
$1,750.00
© copyright by designer
 View All 9 Images | Photographs may reflect modified home
Sq Ft
2,794 FT²
Beds
4
Baths
3
Stories
2
Garage
1
Depth
47'
Width
61' 6"
 
Click to Zoom In on Floor Plan
© copyright by designer
 
 

About This Plan

With two floors and a multitude of layout options, this impressive farmhouse style plan has it all. Beginning with it's 2794 square-foot family oriented layout, prepare to be amazed at all that this lovely home has to offer. From it for large bedrooms and three bathrooms to it's totally open and accessible floor plan, it's no wonder that this home is one of our favorites. Just look at the expensive spaces both inside and out. Relax outdoors on your front or your back covered porch. Or go inside and entertain crowds large and small thanks to the combined family room, dining room, and huge island kitchen. And did you notice the ample amount of storage space in common areas like your walk-in pantry? Next move to the conveniently located first floor master suite, complete with its own walk-in closet and dual vanity spa bath. The first floor finishes by offering a private den which can double as an office if you would like. Move upstairs to discover the auxiliary bedrooms along with an open air loft and a cozy reading nook. Finally take note of this home's several Layout options, including a design with an attached garage and a detached garage, perfect for fitting on practically any lot. 

See All Plan Options
 

FEATURES & DETAILS

Kitchen features
Kitchen Island
Walk-in Pantry
Bedroom features
Double Vanity Sink
Primary Bdrm Main Floor
Separate Tub and Shower
Split Bedrooms
Walk-in Closet
Exterior features
Covered Front Porch
Covered Rear Porch
Foundation Options
Crawlspace
Additional features
Dining Room
Fireplace
Great Room
Laundry 1st Fl
Mud Room
Open Floor Plan
Garage Location
Side
Garage Options
Attached
Detached
Front-entry
3,169 Ft
2
Total Structure
2,794 Ft
2
Total Heated
1,888 Ft
2
1st Floor
375 Ft
2
Detached Garage
4
Bedrooms
3
Bathrooms
1
Garage
2
Stories
61' 6"
Width
47' 0"
Depth
27' 11"
Height
9' 0"
Main Floor Ceiling
8' 0"
Upper Floor Ceiling
2x6
Framing
Truss
Roof Framing
13/12
Primary Roof Pitch
10/12
Secondary Roof Pitch
Single
Dwelling Number
2nd Floor
Bonus Access

Unheated Living Space
375 Ft
2
Garage
397 Ft
2
Patio
906 Ft
2
Bonus Room
 

Plan Package Options

 Select Plan Package
 Need To Reverse Plan? (Optional)
  Select Foundation Option
  Add-Ons (Optional)
INCLUDED WITH YOUR PURCHASE

Free Ground shipping in the U.S.

FREE

Home Building & Product Ideas Organizer

Sub Total
$0
Free Shipping
QUESTIONS OR NEED HELP ORDERING? LIVE CHAT OR CALL US AT 866-214-2242
Plan Packages

Each set of construction documents typically includes detailed, dimensioned floor plans, basic electric layouts, cross sections, roof details, cabinet layouts, and elevations, as well as general IRC specifications. Please refer to the ARCHITECT or DESIGNER’S PLAN DETAILS link above the floor plan on any plan page to determine the specific details for each plan. Our house plans contain virtually all of the information required to construct your home. The typical plan set does not include plumbing, HVAC drawings, or engineering stamps due to the wide variety of specific needs, local codes, and climatic conditions. These details and specifications are easily obtained from your builder, contractors, and/or local engineers.

BEST PRICE GUARANTEE

Find the same house plan (modifications included!) and package for less on another site, show us the URL and we'll give you the difference plus an additional 10% back.

100% SATISFACTION GUARANTEE

We offer a one-time, 30-day exchange policy for unused, printed plan packages in the event you aren't satisfied with your first selection.

 
 

Plan 7870  Back to plan page

Loading...