Get discounts,
promos, see our
newest plans
and more!
+ 15% off any plan
See terms opt out anytime


No Thanks

Thanks for
signing up!


Use Code:

SIGNUP15

And save 15% off any plan!

Check your email for details.

CLOSE
Search Plans
Customer Reviews
     
15% Off House Plans Sitewide Ends Sunday

Code: SAVE15
Sale ends midnight 1/11/2026 PST

Sq Ft
1,668 FT²

Beds
3

Baths
2

Stories
1.5

Garage
2

Depth
29' 10"

Width
64' 6"
From
$950.00
EXCLUSIVE PLAN
© copyright by designer
 View All 4 Images | Photographs may reflect modified home
Sq Ft
1,668 FT²
Beds
3
Baths
2
Stories
1.5
Garage
2
Depth
29' 10"
Width
64' 6"
 
Click to Zoom In on Floor Plan
© copyright by designer
 
 

About This Plan

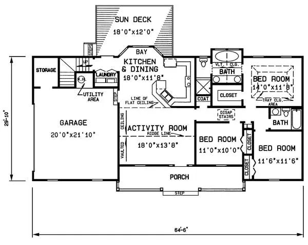
An inviting roof design and wide porch give this home curb appeal. The activity room is vaulted and directly open to the kitchen and dining area. This spacious area encourages relaxed gatherings. A bay window drenches the rooms in sunshine, while the creative angular design of the kitchen counters make the rooms flow together. A snack bar is conveniently placed for quick meals or snacks.
A laundry room is indicated nearby. Stairs up to a bonus room are adjacent. The bonus room allows plenty of optional living space. This room can be finished as the home is constructed or at a later date.
The sleeping wing is secluded for privacy. Two family bed rooms are shown on the front of the house and a master suite on the rear. A central hall bath services the family bed rooms.
The master suite is shown with tray ceiling in the bed room and a vaulted ceiling in the garden bath, which includes a dual vanity. The garden tub is recessed into a bay, giving the lots of light. A luxurious walk-in closet is adjacent.

 

See All Plan Options
 

FEATURES & DETAILS

Kitchen features
Peninsula / Eating Bar
Bedroom features
Walk-in Closet
Exterior features
Covered Front Porch
Deck
Front Porch
Foundation Options
Crawlspace
Slab
Lot Options
Suited for corner lot
Additional features
Great Room
Open Floor Plan
Unfinished Space
Vaulted Ceilings
Workshop
Garage Location
Side
Garage Options
Attached
1,668 Ft
2
Total Heated
1,294 Ft
2
1st Floor
374 Ft
2
2nd Floor
3
Bedrooms
2
Bathrooms
2
Garage
1.5
Stories
64' 6"
Width
29' 10"
Depth
8' 0"
Main Floor Ceiling
8' 0"
Upper Floor Ceiling
2x4
Framing
Stick
Roof Framing
9/12
Primary Roof Pitch
3/12
Secondary Roof Pitch
Single
Dwelling Number
1st Floor
Bonus Access

Unheated Living Space
499 Ft
2
Garage
179 Ft
2
Porch
195 Ft
2
Deck
374 Ft
2
Bonus Room
 

Plan Package Options

 Select Plan Package
$950
PDF Single Build

Digital plans emailed to you in PDF format that allows for printing copies and sharing electronically with contractors, subs, decorators, and more. This package includes a license to build the home one time.

$950
 Need To Reverse Plan? (Optional)
$175
Readable Reverse

Reverse house plans with readable text and dimensions 

$175
  Select Foundation Option
  Add-Ons (Optional)
INCLUDED WITH YOUR PURCHASE

Free Ground shipping in the Continental U.S.

FREE

Home Building & Product Ideas Organizer

Sub Total
$0
Free Shipping
QUESTIONS OR NEED HELP ORDERING? LIVE CHAT OR CALL US AT 866-214-2242
Plan Packages

Each set of construction documents includes detailed, dimensioned floor plans, basic electric layouts, cross sections, roof details, cabinet layouts and elevations, as well as general IRC specifications. They contain virtually all of the information required to construct your home. The typical plan set does not include any plumbing, HVAC drawings, or engineering stamps due to the wide variety of specific needs, local codes, and climatic conditions. These details and specifications are easily obtained from your builder, contractors, and/or local engineers.

BEST PRICE GUARANTEE

Find the same house plan (modifications included!) and package for less on another site, show us the URL and we'll give you the difference plus an additional 5% back.

100% SATISFACTION GUARANTEE

We offer a one-time, 30-day exchange policy for unused, printed plan packages in the event you aren't satisfied with your first selection. Exchanges are subject to a 20% restocking fee.

 
 

Plan 1563  Back to plan page

Loading...